NITAPROW ออกแบบ ‘อาคารดี’ ให้กลายเป็นพื้นที่ที่เกิดจากความคิดและความสัมพันธ์ของนักออกแบบในครอบครัวเดียวกัน
TEXT: KITA THAPANAPHANNITIKUL
PHOTO: KETSIREE WONGWAN
(For English, press here)
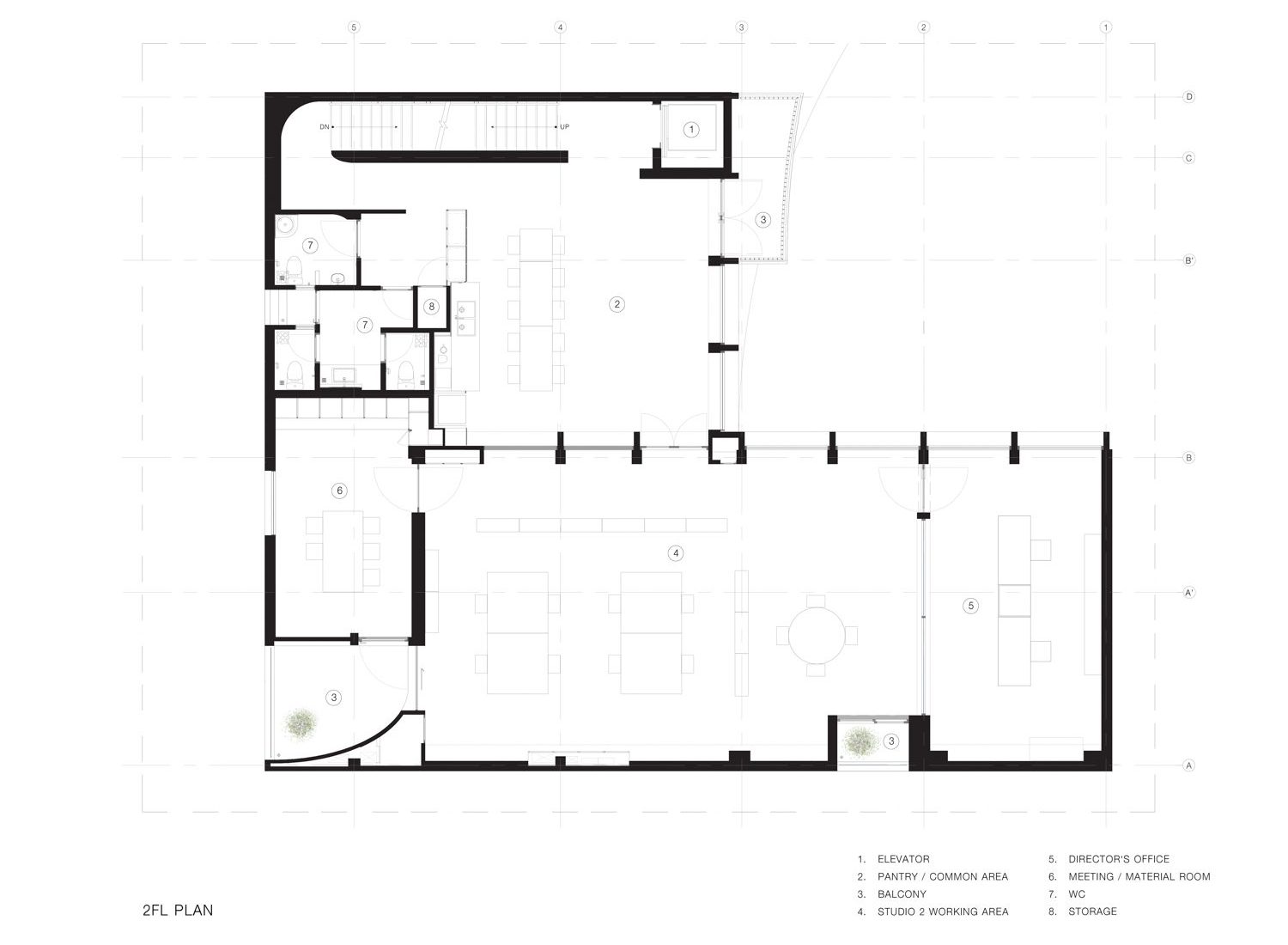
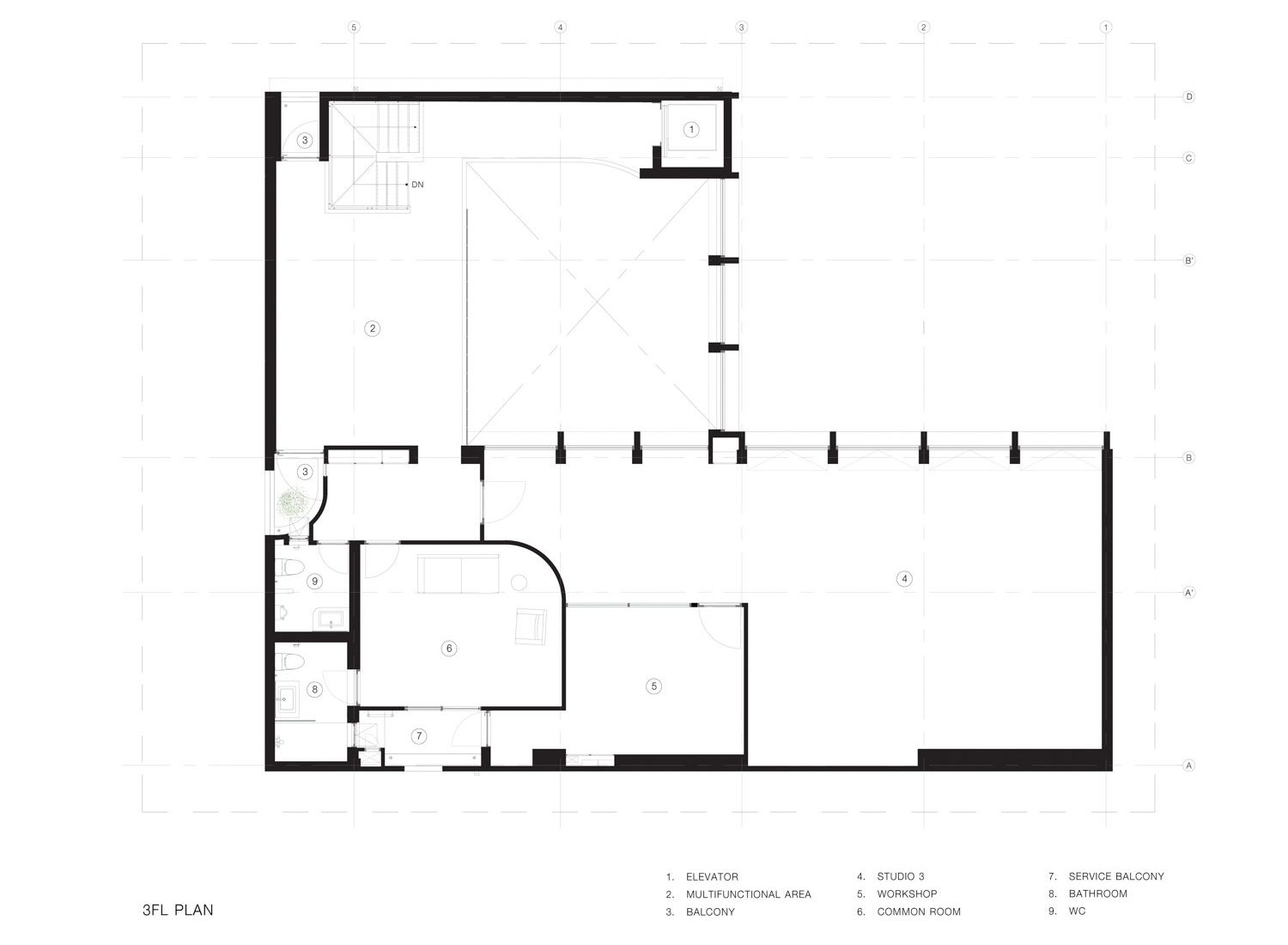
อาคารดี คืออาคารสำนักงาน 3 ชั้น ประกอบด้วยสตูดิโองานสถาปัตยกรรม นิษฐาพราว (NITAPROW) ผู้รับหน้าที่ออกแบบอาคารสตูดิโอออกแบบอุตสาหกรรมของพิชญ (PICHAYA) และสตูดิโอออกแบบเฟอร์นิเจอร์สำหรับสัตว์เลี้ยง (POOOCH & PURRR) ซึ่งทั้งสามสตูดิโอกระจายตัวอยู่บนพื้นที่สามชั้นของอาคารขนาด 900 ตารางเมตร บนถนนพระราม 9 หลังนี้ ที่บนเส้นสายที่ประณีตและเรียบง่ายนั้น ได้ซ่อนเนื้อหาของความหลากหลายและ ‘จุดตัด’ ของความคิดและความเห็นที่แตกต่างของคุณพิชญ พุทธิธรกุล คุณนิษฐา ยุวบูรณ์ คุณพราว พุทธิธรกุล คุณภูมิ พุทธิธรกุล ซึ่งทุกคนล้วนเป็นสมาชิกในครอบครัวเดียวกัน และมีส่วนร่วมในการออกแบบอาคารหลังนี้ขึ้นมาด้วยกัน


ในขั้นแรกของการออกแบบ ทั้ง 4 คนลงความเห็นตรงกันว่างานออกแบบน่าจะเริ่มจากการให้ความสำคัญกับพื้นที่สีเขียว ทำให้การวางผังมีลักษณะเป็นตัว L ที่ล้อมสวนด้านล่างไว้ เพื่อสร้างความปลอดโปร่งและวิวที่ร่มรื่นสบายตา รวมทั้งแสงธรรมชาติให้กับพื้นที่ใช้งานในทุกชั้น โดยในชั้นหนึ่งนั้น พื้นที่ส่วนที่จอดรถและสวนด้านในถูกคั่นด้วยโถงต้อนรับในลักษณะชาน semi-outdoor ที่เปิดรับลมและมุมมองไปสู่สวนด้านหลัง โดยในสวนนี้ยังมีการเก็บรักษาต้นมะม่วงซึ่งเป็นต้นไม้เดิมเอาไว้เพื่อสร้างความร่มรื่นให้กับอาคารทั้งในชั้นหนึ่งและชั้นสองจากทรงพุ่มที่มีความสูง โดยสตูดิโอที่วางตัวขนานไปกับสวนในบริเวณชั้นหนึ่งคือ สตูดิโอออกแบบอุตสาหกรรมของคุณพิชญ ที่มีฝ้าเพดานสูงโปร่ง สอดรับกับการจัดวางพื้นที่ภายในที่เรียบเกลี้ยง ด้วยผนังบานตู้ที่เรียบสนิทซึ่งซ่อนห้องน้ำไว้ภายใน รวบส่วน service และตู้เก็บของทั้งหมดไว้ในตู้ไม้ตะแบกขนาดยาวตลอดผนังฝั่งด้านในสตูดิโอ


โถงต้อนรับส่วนกลางจากชานในชั้นหนึ่งต่อเนื่องขึ้นมายังชั้น 2 ในลักษณะพื้นที่โถง double space ขนาดใหญ่ ซึ่งทำหน้าที่เป็นพื้นที่ส่วนกลางที่ทั้งสามสตูดิโอใช้พักผ่อนและทานข้าวด้วยกัน โดยมีผนังกระจกสูงตลอดความสูงของโถงที่เปิดเข้าหาสวน นำแสงธรรมชาติและลมเข้าสู่พื้นที่ และเปิดมุมมองสู่สวนได้อย่างเต็มที่ พื้นที่โถงชั้น 2 นี้เชื่อมต่อไปยังสตูดิโอ NITAPROW ในชั้นเดียวกัน และเชื่อมต่อขึ้นไปยังสตูดิโองานเฟอร์นิเจอร์สำหรับสัตว์เลี้ยงของภูมิ บนชั้น 3 ที่มีฝ้าเพดานสูงเป็นพิเศษเพื่อรองรับการทำงานเฟอร์นิเจอร์ซึ่งมีเครื่องจักรและชิ้นส่วนของชิ้นงานต่างๆ มากกว่าชั้นอื่นๆ


ลักษณะขององค์ประกอบอาคารที่ดูเรียบง่าย และมีกลิ่นอายที่อบอุ่น จากสเกลขององค์ประกอบและโทนสีนี้ เกิดจากความตั้งใจของสถาปนิกที่หยิบเอาองค์ประกอบแผงบังแดดคอนกรีตทางตั้งและสเกลของวัสดุต่างๆ มาจากบ้านในโครงการหมู่บ้านเสรีที่อาคารหลังนี้ตั้งอยู่ ร่วมกับการจัดองค์ประกอบเข้าด้วยกันของผนัง texture ในโทนสี earth tone เฟรมกระจกที่เปิดเต็มช่องและเปิดช่องบานกระทุ้งสำหรับรับลมในส่วนท่อนล่างที่ไม่บดบังวิว และโดยเฉพาะงานพื้นปูนเปลือยขัดมันและโครงสร้างคอนกรีตเปลือยผิว ซึ่งพื้นผิวแบบหล่อที่สวยงามและงานก่อสร้างอาคารหลังนี้ก็เป็นฝีมือของผู้รับเหมาก่อสร้าง Dee Engineering ซึ่งเป็นทีมงานของธุรกิจครอบครัว และเป็นที่มาของชื่อ อาคาร ‘ดี’ หลังนี้นั่นเอง


ภาพลักษณ์และการออกแบบอาคารที่เรียบร้อยลงตัวนี้เป็นผลงานจากการถกเถียงครั้งแล้วครั้งเล่าในช่วงเวลา 2 ปีเต็มในการออกแบบจากผู้ใช้งานทั้ง 4 คนที่ล้วนเป็นนักออกแบบ คุณนิษฐาเล่าว่าในการออกแบบอาคารหลังนี้เต็มไปด้วยมุมมองที่แตกต่างของแต่ละคน กระบวนการออกแบบอาคารหลังนี้ จึงเป็นการเรียนรู้ร่วมกันของสมาชิกในครอบครัว ผ่านการประณีประนอม และการรับฟังความคิดเห็นซึ่งกันและกัน จึงทำให้อาคารเสร็จสมบูรณ์ขึ้นมาได้



ซึ่ง NITAPROW เลือกที่จะบันทึกเหตุการณ์และช่วงเวลาที่เกิดขึ้นนี้ไว้ ผ่านการออกแบบดีเทลจุดตัดของเส้นตั้งและเส้นนอน ที่เส้นตั้งนั้นโค้งเว้นเลื่อนไหลเข้าหาเส้นนอน เหมือนการเบี่ยงและให้ทางเมื่อถึงทางแยก แทนการเป็นเส้นตรง 2 แกนที่ตัดกันเป็นมุมฉากตามการก่อสร้างทั่วไป โดย mock up ของหัวเสานี้ได้ผ่านกระบวนการขึ้นรูปด้วยการพิมพ์แบบ 3D printing และวัสดุต่างๆ เพื่อทดสอบในสเกลจริง และชิ้น polyurethane ถูกผลิตขึ้นเป็นแบบสำหรับหล่อคอนกรีตในงานก่อสร้างจริงด้วยฝีมือของ คุณพิชญและคุณภูมิ นั่นเอง รอยต่อที่โค้งเบี่ยงนี้เป็นส่วนสำคัญบนอาคาร ที่บันทึกเรื่องราวและการเดินทางของตัวมันเอง และของเจ้าของอาคารทุกคน

ภายในอาคารยังมีรายละเอียดเล็กๆ ที่ผ่านการ customized โดยฝีมือของ คุณพิชญและคุณภูมิ อย่างประณีต ตั้งแต่งานออกแบบดวงโคม ขายึดราวจับบันได ปลั๊กไฟ รางม่านหรือแม้แต่ปุ่มกดประตูลิฟต์ คุณนิษฐากับคุณพราวยังกล่าวกับเราอย่างติดตลกว่าอาคารหลังนี้น่าจะไม่มีวันเสร็จสมบูรณ์ ด้วยความที่ผู้ใช้งานคือนักออกแบบที่อยู่อาศัยเองในทุกๆ วัน จึงทำให้เห็นจุดที่สามารถแก้ไขให้เหมาะสมกับการใช้งานได้ตลอดเวลา ถึงจะเป็นอย่างนั้น เรากลับนึกว่า ‘อาคารดี’ หลังนี้ได้ทำหน้าที่ของมันอย่างเสร็จสมบูรณ์เป็นที่เรียบร้อยแล้ว ทั้งการเป็นสถาปัตยกรรมที่เอื้อต่อสภาพแวดล้อมในการทำงานและข้อจำกัดที่มี รวมไปถึงการเป็นหมุดหมายสำคัญของการทำ ‘งานกลุ่ม’ ครั้งนี้ ที่สมาชิกในครอบครัวทุกคนได้ใช้เวลาร่วมกัน ทั้งในกระบวนการออกแบบ และในชีวิตประจำวันนับจากนี้เป็นต้นไป













