ชวนเดินสำรวจใน My Front Yard โครงการพื้นที่พาณิชย์โดย Architectkidd ที่เปลี่ยนห้างสรรพสินค้าให้กลายเป็นห้องนั่งเล่นกลางแจ้งของชุมชน
TEXT: XAROJ PHRAWONG
PHOTO COURTESY OF ARCHITECTKIDD
(For English, press here)
Charles Areni ศาสตราจารย์ด้านการบริหารจัดการ เอ่ยถึงเป้าหมายของห้างสรรพสินค้าคือ ให้ผู้คนจับจ่ายใช้สอยสิ่งที่ไม่ได้ตั้งใจไว้ ใช้เวลาในพื้นที่แห่งนี้นานขึ้น และเปลี่ยนใจจากแผนเดิม เมื่อลองพิจารณาแนวคิดนี้ ทำให้การออกแบบห้างสรรพสินค้าทั้งแบบ department store หรือแบบ community mall มีวิธีการจัดแปลนให้เอื้อต่อการขาย ทั้งการวางแปลนให้เดินเข้ามาแล้วเห็นหน้าร้านมากที่สุด ทางเดินที่กว้าง วางตำแหน่งร้านที่เป็น anchor ให้อยู่ด้านในสุด

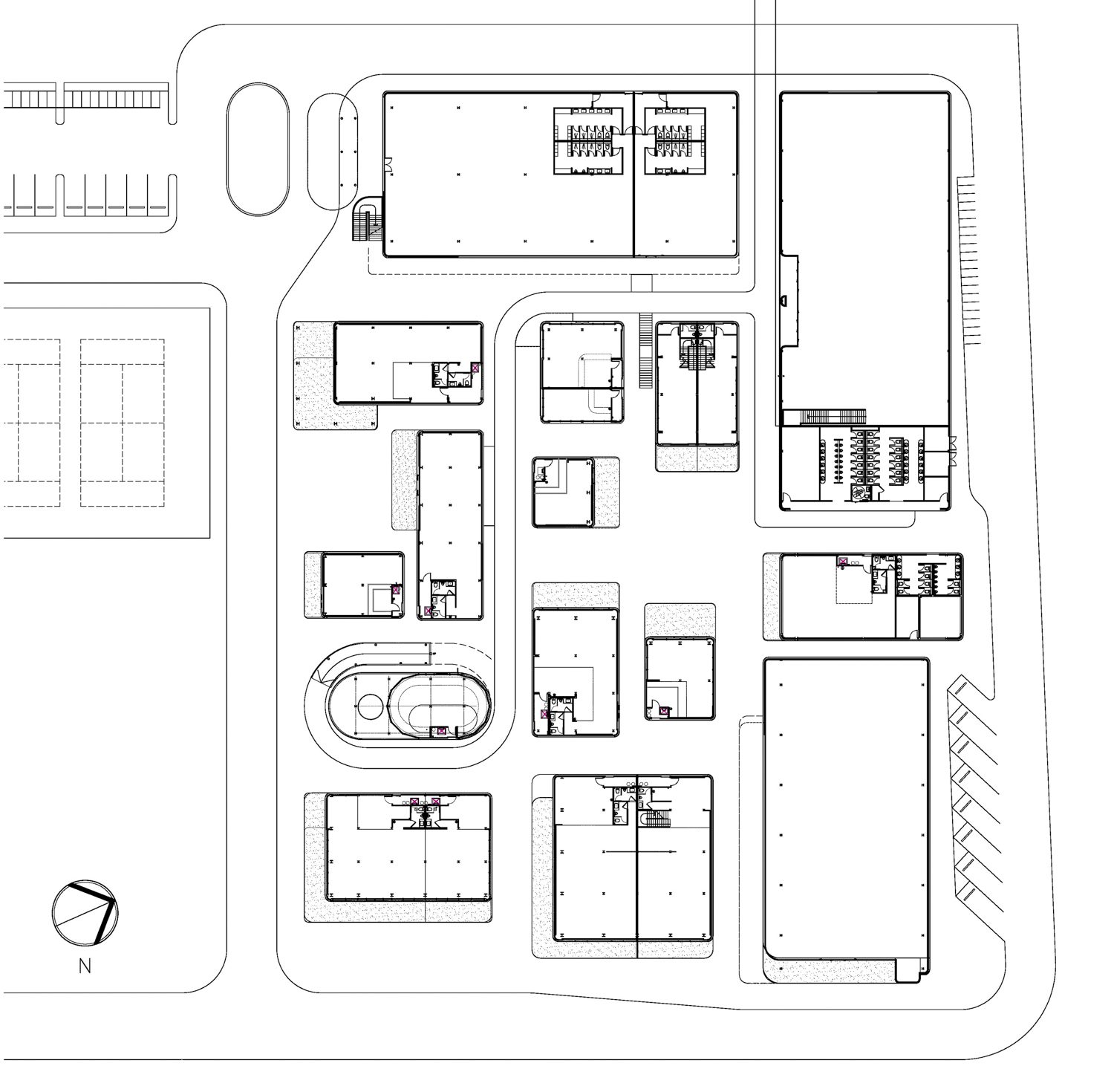
แต่กับโครงการ My Front Yard ออกแบบโดย Architectkidd ได้นำเสนอ community mall ย่านฉลอง จังหวัดภูเก็ต ที่สวนกับแนวทางการออกแบบอาคารพาณิชย์กระแสหลัก เจ้าของโครงการเปรียบเปรยว่างานนี้คือ ‘สวนหน้าบ้าน’ เพราะที่ดินโครงการนี้ตั้งอยู่หน้าบ้านของเจ้าของโครงการเอง สถาปนิกเริ่มต้นการออกแบบด้วยการสำรวจสถาปัตยกรรมพื้นถิ่นของภูเก็ตคือตึกแถวที่มีทางเดินแบบมีหลังคาคลุม ‘หง่อคาขี่’ หรือทางเดิน 5 ฟุต ก่อเกิดร่มเงาตลอดวัน รองรับสภาพอากาศแบบภูเก็ตได้ดี จากนั้นนำมาพัฒนาเป็นแบบนำเสนอแรกในวิธีการกระจายกลุ่มอาคารในแนวเฉียงกับที่ดิน คล้ายกับวางตึกแถวยาวเฉียงขนานกันไป พร้อมกับปล่อยให้เกิดช่องว่างที่เป็นลานเชื่อมระหว่างอาคาร แต่สุดท้ายแล้วแบบแรกนี้ถูกหยุดพัฒนาต่อไป ด้วยการมาถึงของศาสตร์ฮวงจุ้ย

สถาปนิกได้เสนอแบบนำเสนอที่สองที่ได้พัฒนาจนสร้างจริง เริ่มต้นจากการเจรจาของการออกแบบสถาปัตยกรรมและฮวงจุ้ย ด้วยเงื่อนไขที่โครงการนี้ต้องถูกออกแบบให้อยู่ภายในระบบกริดตารางเท่านั้น Architectkidd เลือกที่จะกระจายมวลอาคารออกเป็นยูนิตย่อยๆ 4 รูปแบบคือ A, B, C ที่มีพื้นที่ขาย 60 – 250 ตารางเมตร และแบบ D มีพื้นที่ใหญ่สุด มีพื้นที่ขาย 750 – 1,120 ตารางเมตร ร้านค้าทั้ง 4 แบบ ออกแบบให้กระจายตัว เชื่อมกันด้วยทางเดินแบบสัดส่วนดูกันเอง บนกลุ่มอาคารที่วางด้วยระบบกริดคล้ายผังหมู่บ้านขนาดย่อม สถาปนิกแทรกคอร์ตขนาดเล็กให้เป็น pocket park ของชุมชน สวนหย่อมทางด้านทิศใต้ทำหน้าที่เป็น Morning Court เน้นรองรับกิจกรรมยามเช้า และสวนหย่อมตรงกลางทำหน้าที่เป็น Night Court รองรับกิจกรรมยามค่ำคืน ด้วยบรรยากาศรายรอบด้วยต้นไม้


ภายในโครงการรองรับกิจกรรมพาณิชย์ในรูปแบบพื้นที่ให้เช่า ประกอบด้วยร้านอาหาร ซูเปอร์มาเก็ต คาเฟ่ ร้านเสริมสวย ร้านสัตว์เลี้ยง ร้านค้าทุกยูนิตอยู่ในระบบกริด เชื่อมกันด้วยทางเดินเพื่อให้ร้านค้าแต่ละแบบเข้าด้วยกัน การเชื่อมโยงแต่ละยูนิตมี 2 ระดับ โดยใช้สีกับเส้นทางสัญจรเพื่อแยกระดับ การเชื่อมโยงระดับพื้นชั้น 1 คือ jogging track ทางเดินสีน้ำเงินต่อกันเป็นวง โดยมีทางเดินสีเหลืองเชื่อมโยงจากชั้น 1 ไปยังชั้น 2 ทางเดินนี้ทำหน้าที่เป็นสะพานลอยเชื่อมชั้น 1 เข้ากับดาดฟ้าของ 2 ยูนิตที่มีดาดฟ้า และยังเชื่อมเข้ากับชั้น 2 ที่ยูนิตใหญ่ด้านหลังโครงการเข้าด้วยกัน

จากเงื่อนไขเรื่องฮวงจุ้ย การขึ้นรูปทรงของโครงการมีลักษณะหลั่นลงเป็นขั้นบันไดจากทิศเหนือลงไปยังทิศใต้ เมื่อมองเป็นภาพรวม My Front Yard จะเป็นการชุมนุมกันของกล่องสีขาวหลายขนาด ตัวมันเองสามารถลบคมของสี่เหลี่ยมได้ด้วยการลบมุมทุกก้อน ช่วยให้แสงเงาเกลี่ยที่ขอบอาคาร จนดูลดความแข็งลง

ในยุคที่ห้างสรรพสินค้าพยายามทำตัวเป็น ‘วิหารแห่งการบริโภค’ My Front Yard กลับเลือกที่จะทำตัวราวกับเป็นห้องนั่งเล่นกลางแจ้งของย่านฉลอง เป็นห้องนั่งเล่นในกล่องขาวเรียบแบบไม่ต้องตะโกนแข่งขันกับใคร งานสถาปัตยกรรมชิ้นนี้ชวนให้มองมุมกลับจากความเคยชินว่า พื้นที่พาณิชย์ไม่จำเป็นต้องยัดเยียดเสมอไป เนื้อหาเกิดจากการสร้างโปรแกรมจากไลฟ์สไตล์ของเจ้าของโครงการสู่พื้นที่พาณิชย์แบบเฉพาะตัว แต่มันสามารถดำรงอยู่ได้ด้วยการสร้างบทสนทนาระหว่างผู้ออกแบบ เจ้าของโครงการ และฮวงจุ้ย

