POAR ถ่ายทอดบรรยากาศริมทะเลผ่าน Anya Pattaya ด้วยโครงสร้างหลังคาโค้งขนาดใหญ่ไร้รอยต่อซึ่งกลมกลืนกับบริบทธรรมชาติ
TEXT: NATHATAI TANGCHADAKORN
PHOTO: KUKKONG THIRATHOMRONGKIAT
(For English, press here)
ทริปท่องเที่ยวริมทะเลยังคงเป็นหมุดหมายในใจชาวเมืองและคนไทยที่ต้องการพักผ่อน ด้วยเสน่ห์ของธรรมชาติในแบบฉบับที่แตกต่างจากลมเย็นบนภูเขา แต่ถึงลมทะเลจะแสนเหนอะหนะ กิจกรรมที่เราพึงปรารถนาเสมอมาก็ยังคงเป็นการออกไปรับลมและกลิ่นอายชนิดที่เราหาไม่ได้จากในเมือง บรรยากาศเหล่านี้เองก็เป็นหนึ่งในบริบทของสถาปัตยกรรมนอกเหนือจากกายภาพของพื้นที่หรือเรื่องราวเชิงวัฒนธรรมทั้งหลาย


พัทยาเป็นเมืองท่องเที่ยวหลักของไทย ถ้าพูดถึงบริบท คนก็มักจะนึกไปถึงประเด็นด้านความหลากหลายหรือแสงสีอันฉูดฉาด มีอาคารประเภทต่างๆ ประชันโฉมกันบนถนนเลียบทะเล ร้านอาหาร Anya Pattaya ที่ได้รับการออกแบบโดย POAR นี้ก็เป็นหนึ่งในผู้เข้าแข่งขัน แต่เนื้อหาข้างในนั้นวกกลับมาที่การพยายามปรับเข้าหา ‘บรรยากาศของทะเล’ ควบคู่มากับความโดดเด่นของหลังคาที่โค้งตกลงมาจรดพื้นเป็นทางเข้าคอยดึงดูดผู้ใช้บริการ

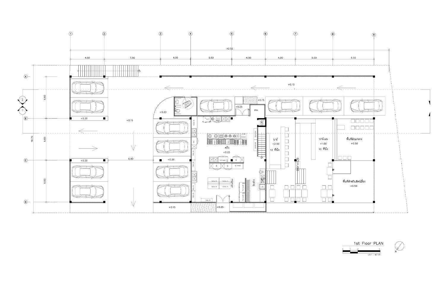
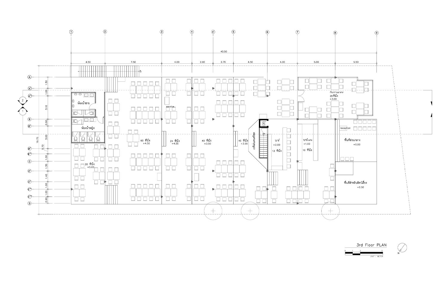
หลังคาผืนใหญ่ซึ่งประกอบขึ้นจากคานหลัก 9 ตัว ปกคลุมทั้งร้านไว้ข้างใต้ ซึ่งหากมองย้อนไปภายใน ความจริงเนื้อหาของอาคารคือความเรียบง่ายสไตล์ POAR ที่ต้องการเก็บรักษาสภาพแวดล้อมที่เอื้อต่อการนั่งรับลมริมทะเลไว้ ผังทรงสี่เหลี่ยมผืนผ้าจึงค่อยๆ ถูกยกขึ้นเป็นขั้นบันได โดยมีที่นั่งกระจายอยู่ตามแต่ละขั้นเพื่อให้พื้นที่ด้านในสุดยังคงสามารถมองเห็นทิวทัศน์ทะเลได้


จากด้านหน้าอาคารที่ติดถนน ผู้ใช้งานจะถูกพาให้มาเจอกับโถงเคาน์เตอร์ต้อนรับเป็นอันดับแรก แล้วจึงไต่ระดับขึ้นไปยังบาร์เครื่องดื่มก่อนจะเข้าสู่โซนรับประทานอาหารเต็มตัว ส่วนครัวที่ถูกซ่อนไว้ด้านล่างเชื่อมต่อกับลานจอดรถด้านหลังทำให้สะดวกต่องานเซอร์วิสต่างๆ ขณะที่อีกทางก็มีบันไดสำหรับเสิร์ฟอาหารแอบอยู่ระหว่างบาร์เครื่องดื่มและเวที สำหรับผู้ใช้บริการที่นำรถมาเองนั้นก็มีทางเข้าจากด้านหลังร้าน โดยมีลักษณะเป็นทางเดินในร่มเลียบด้านข้างอาคาร จึงไม่ต้องกังวลว่าจะต้องเดินจากที่จอดรถมาถึงริมถนนแล้ว ‘ขึ้นบันได’ อีกรอบ
แม้ว่าจะมีแนวคิดหลักเป็นการใช้งานริมทะเล Anya Pattaya ก็ไม่มองข้ามผู้ใช้บริการที่ต้องการความสะดวกสบาย นอกจากพื้นที่ semi-outdoor แล้ว ร้านก็มีห้องติดเครื่องปรับอากาศซึ่งถูกยกลอยอยู่เหนือทางเข้าลานจอดรถด้านหน้าโครงการด้วย โซนนี้ถูกล้อมกรอบด้วยผนังกระจกทั้ง 4 ด้านเพื่อคงความต่อเนื่องของมุมมองและงานตกแต่งภายในที่ใช้ไม้สีอ่อนเป็นหลัก เมื่อมองเผินๆ พื้นที่ใช้งานทั้ง 2 ส่วนจึงแทบกลืนเป็นเนื้อเดียวกัน โดยมีโครงสร้างใต้หลังคาที่แสดงตัวราวกับ layer ของคลื่นน้ำช่วยสร้างความเชื่อมต่ออีกทางหนึ่ง


POAR ออกแบบให้หลังคาทั้งผืนไม่มีรอยต่อสำหรับหลีกเลี่ยงการรั่วซึม การใช้หลังคาผืนใหญ่คลุมพื้นที่เกือบ 800 ตารางเมตรนั้นย่อมต้องคิดถึงการบำรุงรักษา ทว่าสถาปนิกไม่ต้องคิดวิธีแก้ปัญหาใดๆ เพราะพวกเขาเลือกทางที่มีโอกาสเกิดปัญหาน้อยที่สุดตั้งแต่แรก เมมเบอร์ H beam แนวขวางได้รับการดัดโค้งมาจากโรงงาน แปจึงมีตำแหน่งยึดที่แน่นอนและง่ายต่อการก่อสร้าง ยิ่งกว่านั้นโปรเจกต์นี้ยังไม่มีรางน้ำฝน หลังคาซึ่งดูโค้งราวกับไร้กฎเกณฑ์ปราศจากรอยต่อหรือจุดน้ำขัง มีเพียง slope ที่ถูกพิจารณามาเป็นอย่างดีถึงทิศทางไหลของน้ำ และโซ่ที่จะนำพามันให้ไหลลงสู่พื้น


Anya Pattaya เป็นร้านอาหารที่มีโจทย์อันเรียบง่ายอย่างการสร้างความสะดุดตาและน่ามาใช้บริการ แต่โจทย์อันเรียบง่ายที่ว่านี้อาจมีคำตอบได้มากมายขึ้นอยู่กับนักออกแบบแต่ละคน เรามองว่าความพิเศษของที่นี่คือ ‘หลังคา’ ที่ POAR เลือกออกแบบให้เป็นไฮไลต์ของร้านไม่ได้ทำหน้าที่เพียงอย่างเดียว หากแต่ถูกคิดมาเพื่อตอบเรื่องรูปลักษณ์ภายนอก เติมแต่งบรรยากาศการนั่งทานอาหารภายใน พร้อมกับแก้ปัญหา (ที่ยังไม่เกิด) ไปด้วยในคราวเดียว











