บ้านเล็กในเกาะโอกินาวาจาก Studio cochi Architects ที่พลิกความทึบเป็นความสงบในเมืองที่วุ่นวาย
TEXT: PRATCHAYAPOL LERTWICHA
PHOTO: OOKI JINGU
(For English, press here)

เมื่อความสุขคือการอยู่อาศัยอย่างเงียบสงบ แต่ภายนอกรายรอบชิดใกล้ด้วยเพื่อนบ้านข้างเคียง บ้านเลยต้องเป็นเกราะห่อหุ้มให้ชีวิตภายในอยู่ได้อย่างร่มเย็น ‘House in Nishizaki’ บ้านสำหรับคู่รักสามีภรรยาและลูกหนึ่งคนอยู่ในย่านนิชิซากิ (Nishizaki) พื้นที่ถมทะเลพัฒนาใหม่ของเกาะโอกินาวา ประเทศญี่ปุ่น ที่ได้รับการพัฒนาเป็นเขตเมืองครบวงจร มีทั้งพื้นที่อาศัย พื้นที่พาณิชยกรรม การศึกษา อุตสาหกรรม พื้นที่พักอาศัยในละแวกนี้ถูกจัดสรรอยู่บนที่ดินขนาดเล็กจำนวนมาก ส่งผลให้บ้านมีขนาดกะทัดรัด และตั้งแนบชิดกับเพื่อนบ้าน ซึ่ง House in Nishizaki ก็เป็นบ้านหลังหนึ่งในนั้น

นอกจากต้องปะทะกับอาคารเพื่อนบ้านสองฝั่งทางทิศตะวันออกและตะวันตกแล้ว บ้านก็ต้องรับมือกับเสียงรถราที่ถนนใหญ่ทางทิศใต้ Studio cochi Architects สตูดิโอสัญชาติญี่ปุ่นผู้ออกแบบ จึงล้อมกรอบบ้านด้วยผนังคอนกรีตเปลือยผิวทึบ ปกป้องตัวจากสายตาภายนอกและป้องกันความวุ่นวายให้พื้นที่ภายใน มีเพียงทิศเหนือที่หันออกสู่ย่านพักอาศัยอันเงียบสงบเท่านั้นที่ปอกเปลือกชั้นหนึ่งออก เพื่อเปิดรับมุมมองด้านนอก


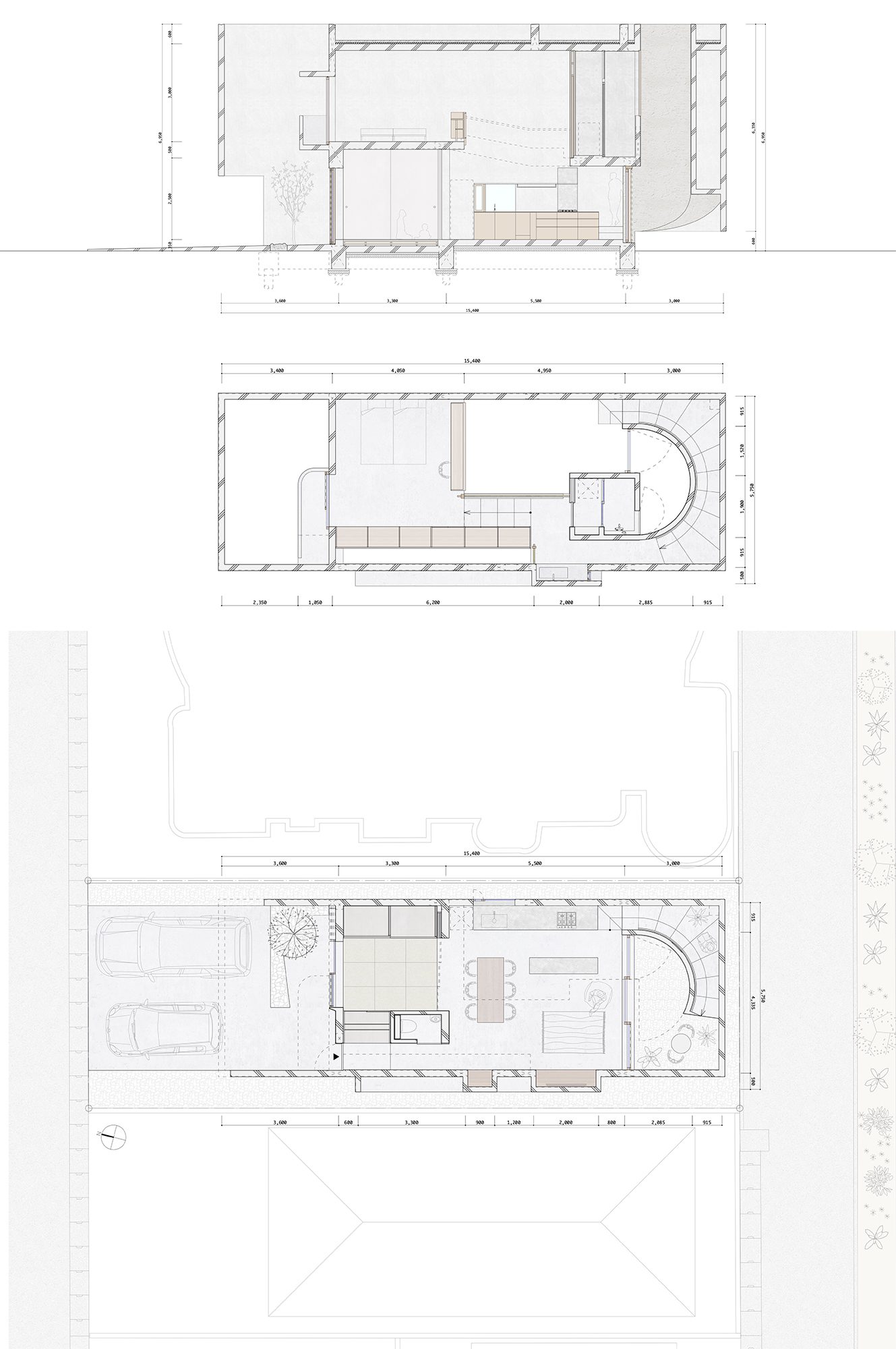
แม้ภายนอกจะทึบตันจนชวนนึกไปว่าข้างในคงมืดมิดอึดอัด แต่ความจริงกลับผิดจากที่คิด บ้านสองชั้นแบ่งชั้นล่างเป็นส่วนต้อนรับที่ประกอบด้วยห้องนั่งเล่นเสื่อทาทามิ ส่วนรับประทานอาหารและครัว ชั้นบนเป็นห้องนอนซึ่งเป็นพื้นที่ส่วนตัว ทั้งสองชั้นเปิดโล่งเชื่อมต่อกัน บ้านขนาดกะทัดรัดจึงไม่คับแคบแออัดแต่โอ่โถงปลอดโปร่ง

ทางทิศเหนือหน้าบ้านมีคอร์ทขนาดย่อมที่วางตัวโอบล้อมกำแพงคอนกรีตที่เป็นพื้นที่เปลี่ยนผ่านจากภายนอกสู่ภายใน ด้านบนเปิดโล่งรับแสงธรรมชาติ ทางทิศใต้ของบ้านก็มีคอร์ทเช่นกัน แต่เป็นคอร์ทขนาดใหญ่ล้อมกำแพงทึบหมดเพื่อปิดกั้นเสียงรังควานจากถนน การเปิดคอร์ททั้งทางทิศเหนือและใต้ นอกจากจะโอบรับแสงธรรมชาติให้ด้านในแล้ว ยังเปิดรับลมให้ไหลผ่าน มอบความเย็นสบายให้พื้นที่ภายใน

บันไดโค้งลอยตัวเหนือคอร์ทเป็นบันไดขนาดใหญ่ที่ออกแบบมาใช้เป็นพื้นที่นั่งเล่นได้ ไม่ใช่แค่ทางผ่าน ความโค้งเว้าของบันไดเสริมแต่งให้บ้านคอนกรีตสี่เหลี่ยมมีชีวิตชีวาขึ้นมา เช่นเดียวกับระนาบของพื้นและห้องยื่นหดวางตัวเหลื่อมกัน ช่องแสงเล็กน้อยในบริเวณต่างๆ ไม่เพียงหยดหยอดความสว่าง เพราะยังคลายความหนักอึ้งของเปลือกคอนกรีตให้เบาบางลง เฟอร์นิเจอร์และ built-in หลากชิ้นออกแบบและสร้างโดยสถาปนิกเอง นอกจากจะเติมแต่งความเป็นมิตรให้บ้าน สถาปนิกบอกว่ายังเป็นการต่อยอดงานหัตถศิลป์ท้องถิ่นอีกเช่นกัน แม้จะโอบล้อมด้วยกรอบทึบเพื่อรักษาความส่วนตัว แต่งานออกแบบที่มีชั้นเชิงก็ทำให้โลกภายในอบอุ่นและมีชีวิตชีวา











