Baan Chamchuri กับแนวคิดการออกแบบบ้านเมืองร้อนที่สอดรับกับธรรมชาติ โดย Anonym Studio
TEXT: XAROJ PHRAWONG
PHOTO: DOF SKY|GROUND
(For English, press here)
Featured Product
ความช้าในเมืองอย่างกรุงเทพมหานครคือความงามรูปแบบหนึ่ง
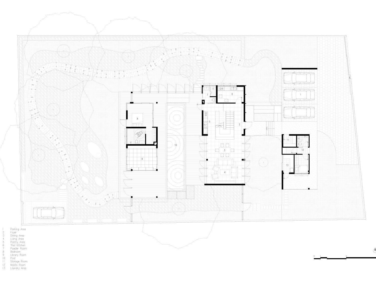
จากความวุ่นวายของถนนใหญ่ สู่ซอยแห่งหนึ่งที่ย่านนวมินทร์ สถาปนิกได้เริ่มออกแบบบ้านหลังหนึ่งในกรุงเทพมหานครสร้างบนผืนที่ดินขนาดราว 1 ไร่ ในปี พ.ศ. 2564 ที่ดินผืนนี้รายล้อมด้วยต้นจามจุรี 6 ต้น และต้นหูกระจง 1 ต้น ในตำแหน่งกระจายไปทั่วที่ดิน ก่อเกิดข้อกำหนดให้เกิดการวางผังที่เป็นโจทย์ให้สถาปนิกหาวิธีการให้สถาปัตยกรรมอยู่ร่วมกับต้นไม้เหล่านี้โดยไม่ต้องโค่นทิ้ง


Anonym Studio คือสถาปนิกผู้ที่ได้รับเลือกให้มาแก้ไขโจทย์นี้ แนวทางการวางผังทำตามการตอบสนองสภาพอากาศแบบเมืองร้อน สถาปนิกแยกกลุ่มอาคารเป็น 3 หลังเพื่อเพิ่มเส้นรอบรูปอาคารให้เกิดระบายอากาศเพิ่มขึ้น และยังแบ่งเป็น 3 ส่วนตามกิจกรรมอีกด้วย ก้อนแรกเป็นส่วนจอดรถอยู่ทางตะวันออกเพื่อรับกับทางเข้าหลัก ส่วนนี้คั่นกับก้อนที่ 2 ด้วยต้นหูกระจงที่เลือกเก็บไว้ ก้อนที่ 2 เป็นเรือนรอง ประกอบไปด้วย พื้นที่พักผ่อน พื้นที่รับประทานอาหาร เรือนนี้มีสเปซสูงพิเศษคือโถงสูงตรงกลางภายใน จากสิ่งคุ้นเคยคือการวางบันไดให้อยู่ชิดผนังด้านใดด้านหนึ่ง สำหรับบ้านที่มีสเปซแบบโถงสูง 2 ชั้น เพื่อแสดงความโอ่โถงของสเปซอย่างชัดเจน แต่หลังนี้เลือกให้บันไดกลายเป็นประติมากรรมกลางบ้านโดยเลือกสอดพื้นที่เตรียมอาหารเข้าไปภายใต้ที่ว่างบันได ก่อนจะลดความแข็งของบันไดด้วยวัสดุปิดผิวลายไม้ที่มีการจัดวางแพทเทิร์นให้สลับกันไปมาอย่างมีพลวัตร


ก้อนที่ 3 ซึ่งเป็นเรือนหลักประกอบไปด้วย ห้องนอนเจ้าของบ้านที่ชั้น 2 และห้องนอนแม่เจ้าของบ้านที่ชั้น 1 สถาปนิกแบ่งมุมมองที่ดีระหว่างเรือนด้วยการแทรกสระว่ายน้ำระหว่างเรือน และยังเปิดช่องแสงไปยังด้านทิศตะวันตกที่รายรอบด้วยต้นจามจุรี แม้ว่าห้องนอนของบ้านนี้จะเป็นส่วนที่ประชันกับแสงแดดจากทิศตะวันตก แต่แสงแดดที่จะทอดผ่านเข้ามาในบ้านก็ได้ถูกกรองผ่านต้นจามจุรีที่สูงเลยหลังคา ทำให้แสงมีความนุ่มนวลพร้อมไปกับดึงปรากฏการณ์ธรรมชาติเข้ามาสังสรรค์สเปซภายในอีกเช่นกัน ทำให้เรือนนี้มีทัศนียภาพที่ดีที่สุด จากการดึงธรรมชาติสีเขียว ความว่าง ความสงบ ผ่านเข้ามาทางองค์ประกอบสถาปัตยกรรม


วัสดุที่สถาปนิกเลือกใช้เป็นคอนกรีตเปลือยในส่วนโครงสร้าง และหลังคา ส่วนท้องพื้นกลายเป็นฝ้าคอนกรีตเปลือย ตำแหน่งการวางไม้แบบหล่อคอนกรีตถูกออกแบบอย่างประณีต รูปแบบการวางแพทเทิร์นเป็นไปอย่างมีจังหวะสม่ำเสมอ กลายเป็นฝ้าเพดานที่งามด้วยความง่ายจากการเก็บรายละเอียด หากผนังส่วนไหนที่ไม่ได้เป็นคอนกรีตเปลือยจะใช้ผนังฉาบวัสดุผิวบางให้มีความกลมกลืนเป็นเนื้อเดียวกัน เมื่อมองภาพรวมจากภายนอกของบ้านทั้ง 3 ก้อน จะเป็นสีเทาจากวัสดุหลัก ตัดความแข็งของคอนกรีตเปลือยด้วยวัสดุรองคือวงกบประตูหน้าต่างลายไม้ ซึ่งเป็นวัสดุที่มีความอ่อนในตัวเองอันช่วยเน้นให้บ้านมีความสมดุลของจังหวะที่มีความขัดแย้งของตัววัสดุหลักและรอง

หากมองภาพรวม งานนี้จะแตกต่างจากงานก่อนของ Anonym Studio ที่มีการลองใช้วัสดุที่คุ้นเคยมาสร้างภาพจำใหม่ แต่กับหลังนี้ย้อนไปสู่เรื่องราวของพื้นฐาน มันเป็นงานที่ปล่อยให้ความว่างกลายเป็นของมีราคา และให้ความสำคัญกับความงามที่เน้นไปที่เรื่องของจังหวะ พร้อมทั้งเลือกที่จะปิดบางส่วนอย่างเช่นการใช้ผนังทึบทิศใต้เพื่อหลบเสียงรบกวนจากกิจกรรมรอบบ้านในขณะที่ผนังนั้นก็กลับสร้างมุมมองที่ดีขึ้นภายในที่ดินของตัวเอง

พงศ์ภัทร เอื้อสังคมเศรษฐ์ Director จาก Anonym Studio ได้บอกเล่าว่าอะไรคือความงาม
“คงเป็นความสมดุลของภาพรวมที่มาบรรจบกันจากเรื่องของสัดส่วน ที่สุดท้ายเรามองเข้าไปแล้วเข้าใจเองว่าสวย เปรียบเทียบก็เหมือนกับเห็นความสวยจากทิวทัศน์ที่เราไม่จำไม่ต้องลงรายละเอียดว่าสวยยังไง”











