ตึกแถวเก่า 50 ปี ที่เปลี่ยนพื้นที่ความทรงจำให้กลายเป็นบ้านร่วมสมัยของครอบครัวใหญ่
TEXT: BHUMIBHAT PROMBOOT
PHOTO: RUNGKIT CHAROENWAT
(For English, press here)
บ้านหลังใหม่ของครอบครัวที่ใช้เป็นที่พบปะ พูดคุย และทานอาหารกันในช่วงสุดสัปดาห์ ตึกแถวอายุ 50 ปี ที่เคยเป็นที่อยู่อาศัยในวัยเด็กของกิตติชนม์ ภูเกียรติก้อง ผู้ออกแบบและเจ้าของบ้าน ที่ต้องการรีโนเวทบ้านหลังเดิมใหม่ เพื่อรองรับการขยายตัวของครอบครัวที่ทั้งพ่อแม่ พี่น้อง ต่างแยกย้ายกันไปอยู่ต่างที่กัน โดยต้องการให้รูปแบบและพื้นที่ใช้งานในบ้านที่จะออกแบบใหม่นี้ เป็นตัวแทนที่สามารถให้สมาชิกแต่ละคนภายในบ้านได้หวนย้อนนึกถึงภาพความทรงจำในอดีตของพื้นที่ต่างๆ ได้ แม้จะถูกแทนที่และเพิ่มเติมด้วย พื้นที่ใหม่ วัสดุใหม่ หรือแม้แต่ผู้คนหรือสมาชิกใหม่ๆ ในครอบครัวก็ตาม


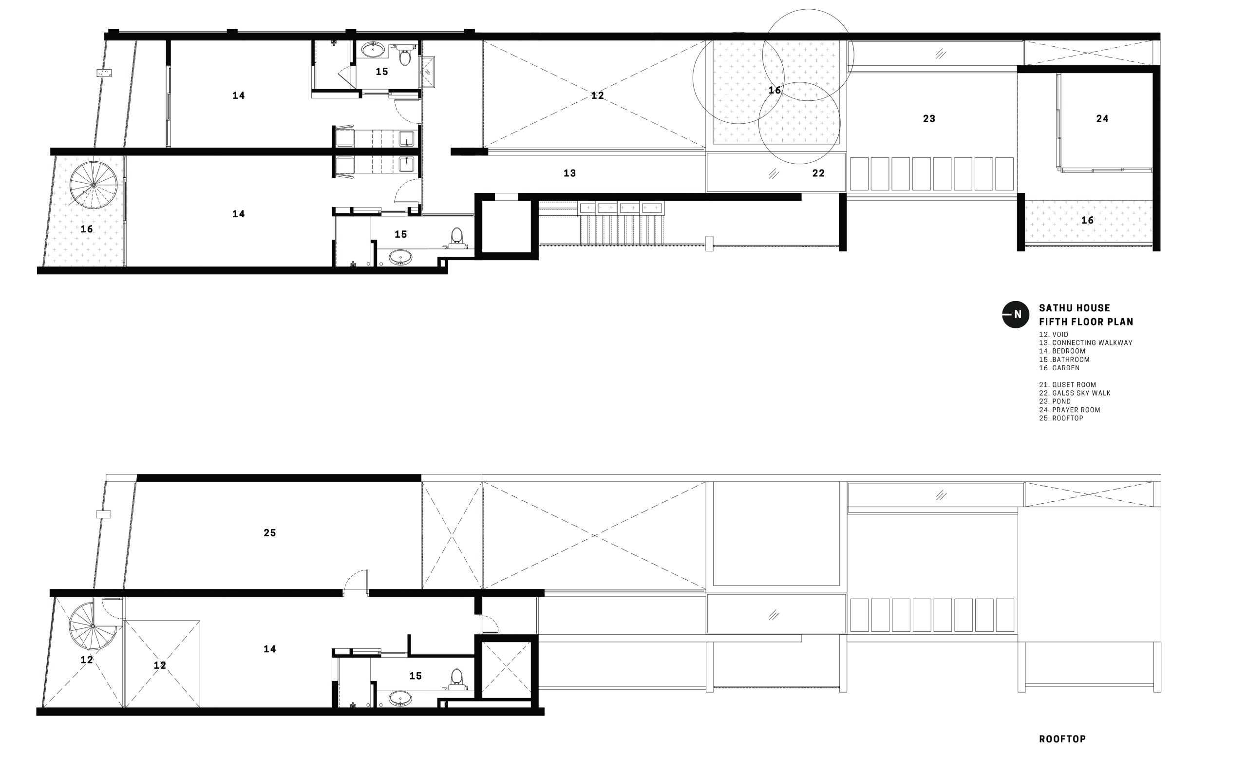
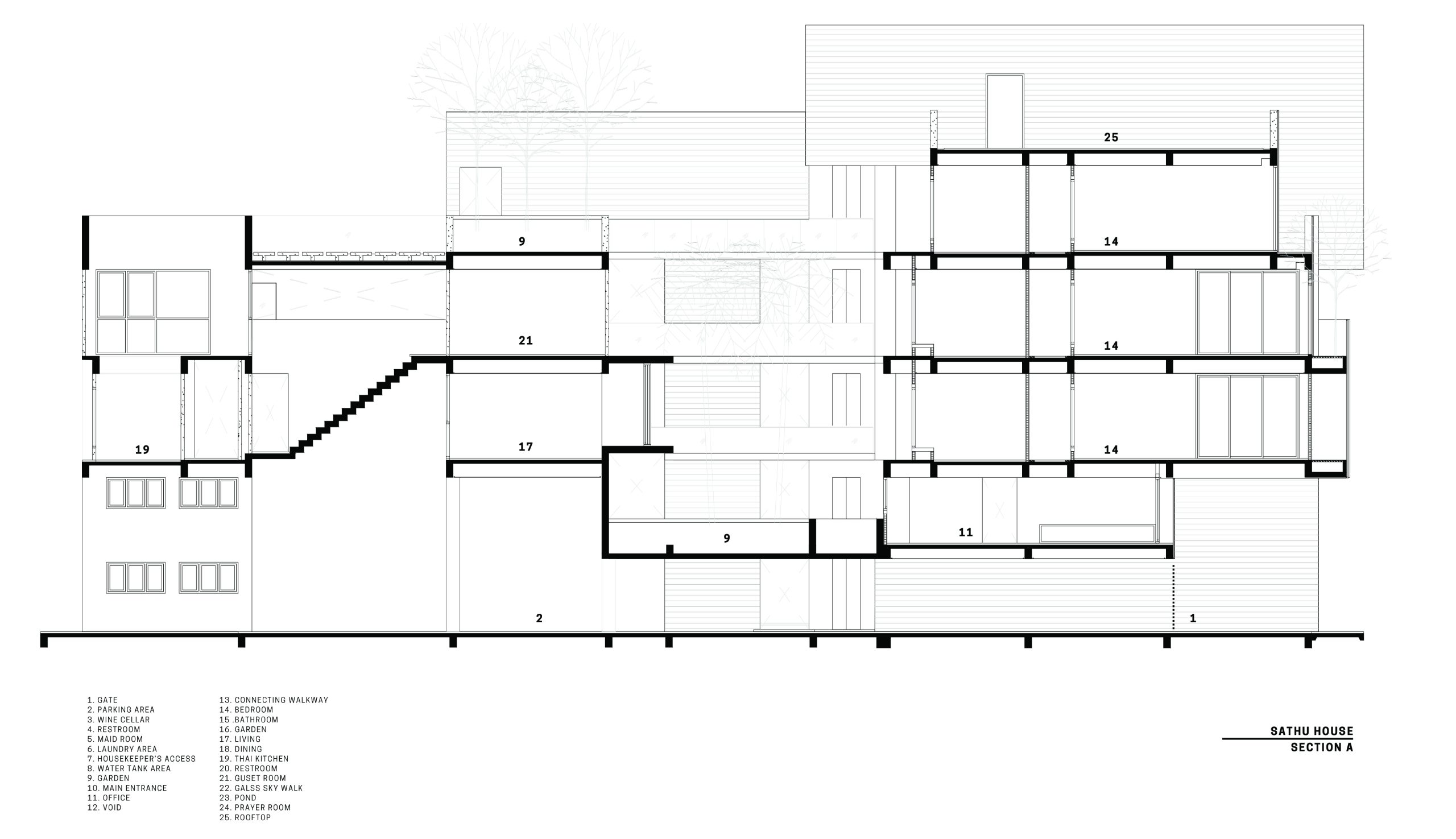
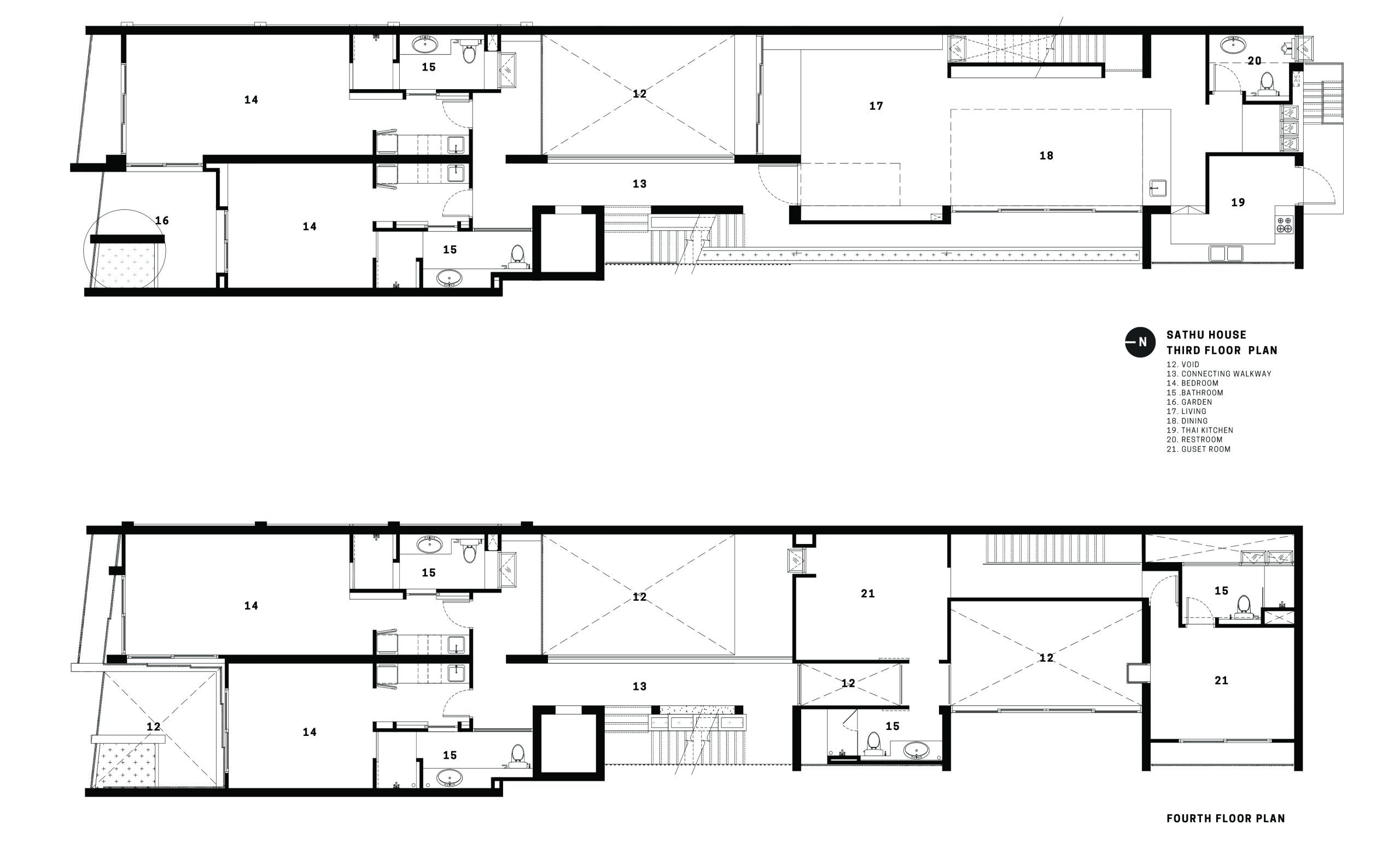
“พื้นที่ตรงนี้เป็นห้องนอนเดิม ตรงนี้เป็นที่หน้าต่างที่ไว้นั่งชมวิวขอบชานพักบันได ตรงส่วนนี้เป็นพื้นที่โรงงานทำกระเป๋าหนังและตรงนี้เป็นส่วนหลังบ้านที่เอาไว้สำหรับเตะฟุตบอลกับคนงานตอนเด็ก” คือสิ่งแรกที่ทางกิตติชนม์ ได้เริ่มเล่าที่มาที่ไปของบ้านเดิมที่ตัวเองเคยอยู่อาศัยในวัยเด็กให้ฟัง ก่อนที่จะถูกรีโนเวทเป็นโครงการ SATHU HOUSE ที่เป็นอาคารพักอาศัย ประกอบไปด้วย 9 ห้องนอน 1 ห้องนั่งเล่นและทานอาหารด้วยกัน 14 ห้องน้ำ ห้องแม่บ้านอีก 3 ห้อง 1 สำนักงานและห้องเก็บไวน์ (Wine Cellar) ที่อยู่ทางชั้นล่างสุดและติดกับทางด้านหน้าของตัวอาคาร และสามารถจอดรถภายในบ้านได้ถึง 8 คัน



โดยอาคารที่ถูกรีโนเวทใหม่นี้จะถูกแบ่งพื้นที่ออกเป็นจำนวน 5 ชั้น โดยเก็บโครงสร้างเก่าไว้และออกแบบใหม่ทั้งหมด มีการเพิ่มฟังก์ชัน โครงสร้างและวัสดุชิ้นใหม่เข้ามาเพิ่มจากของเดิม ตามความต้องการใช้งานพื้นที่ที่มากขึ้นตามจำนวนสมาชิกครอบครัวที่เพิ่มขึ้น โดย SATHU HOUSE มีแนวคิดในการออกแบบที่ต้องการแบ่งโซนพื้นที่สำหรับครอบครัว โซนสำหรับรับแขก และโซนแม่บ้านให้แยกออกจากกันเพื่อความเป็นส่วนตัวและการง่ายต่อการจัดการดูแล โดยออกแบบให้ใช้ทางเข้าออกที่แยกกันและมีการใช้คอร์ทที่มีการเปิดโล่งคั่นกลางระหว่างพื้นที่ของสองโซนนี้ไว้


ภาพแรกของ SATHU HOUSE ที่มองเห็นและรู้สึกได้ชัดเลยคือ รูปแบบและพื้นที่ภายในอาคารหลังจากที่ได้มีการรีโนเวทแล้วคือการเป็นอาคารบ้านแถวที่มีลักษณะที่โปร่งโล่งและทุกห้องต่างๆ จะได้รับแสงธรรมชาติอย่างทั่วถึง ไล่ตั้งแต่ห้องนอน ห้องนั่งเล่น จนถึงห้องน้ำบางห้องก็มีส่วนที่หลังคาเปิดโล่งเพื่อรับแสงธรรมชาติได้เช่นกัน ซึ่งทางผู้ออกแบบได้มีการใช้งานช่องเปิดที่หลากหลายรูปแบบ ทั้งช่องเปิดจากทางหลังคา ด้านข้าง รวมถึงพื้น ซึ่งแสงธรรมชาติสามารถผ่านจากหลังคาลงมาถึงโรงรถชั้นล่าง หรือส่วนที่เป็นบันไดที่ติดกับพื้นที่ข้างเคียงก็มีการใช้บล็อกแก้ว เพื่อให้เป็นช่องแสงแต่ก็ทำให้พื้นที่ส่วนนี้มีความเป็นส่วนตัวได้ในคราวเดียวกัน


ทางผู้ออกแบบยังได้มีการใช้ช่องเปิดจากทางด้านบน ในพื้นที่เช่นส่วนทางเดินที่เชื่อมต่อไปยังโซนต่างๆ โดยเป็นทั้งรูปแบบของช่องแสงทางหลังคาที่ใช้วัสดุเป็นกระจกเทมเปอร์แบบหนาพิเศษ ที่สามารถเดินขึ้นไปใช้งานด้านบนหลังคาได้ในชั้นดาดฟ้า
และส่วนที่ถือเป็นจุดสำคัญในการเปิดรับแสงธรรมชาติมากที่สุดก็คือ การเปิดพื้นที่คอร์ทตรงกลางบ้าน ที่เริ่มตั้งแต่ชั้นที่สองเป็นต้นไปจนทะลุถึงพื้นที่ภายนอก โดยคอร์ทกลางส่วนนี้ที่ทำหน้าที่แบ่งและเชื่อมต่อโซนอาศัยทั้งสองโซนไว้ด้วยกัน ทำให้แสงธรรมชาติจากภายนอกส่องเข้ามาในพื้นที่ภายในทั้งสองโซนอย่างทั่วถึง ซึ่งส่งผลให้พื้นที่ใช้งานภายในดูไม่ทึบตัน ยังเป็นการช่วยระบายความร้อนภายในบ้านและถ่ายเทอากาศให้หมุนเวียนได้มากอีกด้วย


แม้ภาพจำของอาคารบ้านแถวหรือตึกแถวดั้งเดิมที่มักจะดูมืดทึบและแสงสว่างส่องเข้าถึงได้น้อย แต่โครงการ SATHU HOUSE ได้ทำแก้ปัญหาและข้อจำกัดเดิมของอาคารตึกแถว โดยทำการรื้อองค์ประกอบใหม่ในหลายๆ ส่วนด้วยกัน ทั้งการเจาะช่อง ทุบผนังเก่าเพื่อเปิดช่องว่างต่างๆ หรือการปรับและตัดแต่งโครงสร้างรับน้ำหนักของพื้นที่เดิม ที่เป็นข้อจำกัดของการใช้งานเดิมออกไป โดยเป็นการท้าทายระบบโครงสร้างดั้งเดิมและผสานโครงสร้างใหม่เข้าไปเพื่อให้เกิดการใช้งานพื้นที่ที่ตอบโจทย์ความต้องการให้มากที่สุด

การมองเห็นซึ่งกันและกันของแต่ละห้อง ก็เป็นอีกโจทย์หนึ่งที่ทางผู้ออกแบบให้รูปแบบและวัสดุอาคารสามารถมองเห็นทะลุกันได้ ทั้งแนวตั้งและแนวนอน จากพื้นที่หนึ่งสู่พื้นที่หนึ่ง เพื่อให้เกิดปฏิสัมพันธ์กันระหว่างผู้ใช้งานในแต่ละช่วงกิจกรรมและเวลาที่ต่างกันไป เพื่อรองรับความหลากหลายและความต้องการของครอบครัวที่ต่างกันไป ทำให้การเลือกใช้วัสดุใน SATHU HOUSE จึงต้องมองหาวัสดุพื้นฐานที่สามารถดูแลได้ง่ายและราคาถูก เนื่องด้วยงบประมาณจำกัด จึงใช้วัสดุหลักเพียงแค่ไม่กี่ชนิดเป็นวัสดุหลัก ผนังคอนกรีตแบบหล่อในที่ ฝ้าไม้เทียม พื้นขัดมัน จึงเป็นวัสดุหลักที่ทางผู้ออกแบบเลือกมาใช้งานในโครงการนี้ โดยวัสดุอย่างคอนกรีตหล่อในที่จะให้อารมณ์ความรู้สึกที่เป็นสัจจะทางวัสดุ มีความดิบของพื้นผิว สัมผัสที่ไม่เรียบ และดูแลรักษาง่าย

แต่ในทางหนึ่งวัสดุคอนกรีตหล่อในที่ที่ใช้ไม้เทียม (WPC) มาเป็นแบบในการหล่อคอนกรีตเพื่อให้มีผิวสัมผัสเป็นลายเกรนของไม้ ก็สื่อถึงนัยยะของบ้านเดิมของครอบครัวที่เป็นทั้งที่อยู่อาศัยและโรงงานภายในพื้นที่เดียวกัน ที่มีทั้งความดิบจากการใช้งานพื้นที่เป็นโรงงาน ที่มีเครื่องจักรขนาดเล็ก อุปกรณ์และวัสดุต่างๆ กระจายตามจุดต่างๆ ของพื้นที่ และยังใช้เป็นที่อยู่อาศัยในพื้นที่เดียวกันโดยสะท้อนผ่านวัสดุอย่างไม้เทียม ที่ถูกนำมาใช้เป็นอีกองค์ประกอบหลักทั้งเป็นตัวแบบหล่อคอนกรีต façade ระแนงไม้เทียมด้านหน้าของตัวบ้านและใช้เป็นส่วนฝ้าเพดานภายใน นอกเหนือจากการจัดการดูแลที่ง่ายและมีความคงทน ตัวไม้เทียมก็ยังทำให้อารมณ์และความรู้สึกในการใช้งานตัว SATHU HOUSE ให้มีความอบอุ่น สบายตา และช่วยลดทอนความดิบของตัวผนังคอนกรีตได้อีกทางหนึ่ง



ลำแสงธรรมชาติที่ตกกระทบบนผนังคอนกรีตในหลายๆ ส่วนของบ้าน เปรียบเสมือนเป็นภาพวาดระหว่างธรรมชาติกับสถาปัตยกรรม ที่กำลังทำให้ภาพความทรงจำใหม่ๆ ได้เกิดขึ้น โดยเกิดจากการใช้งานพื้นที่ผ่านกิจกรรมหรือปฏิสัมพันธ์ต่างๆ ในครอบครัวและเพื่อนฝูง


ตัว SATHU HOUSE เองจึงเหมือนเป็นตัวแทนของการเริ่มต้นและการเติบโตของครอบครัวในอีกช่วงเวลาหรือในอีกเจเนอเรชั่น ทั้งหลานๆ ที่มาวิ่งเล่น เพื่อนฝูง พี่น้องที่มาพูดคุย ทานอาหาร ดื่มไวน์ เป็นภาพของชีวิตใหม่ที่ กำลังห้อมล้อมพื้นที่แห่งความทรงจำเก่าและกิจกรรมเดิมของคนในรุ่นพ่อแม่เอาไว้ สนามฟุตบอลหลังบ้านที่กลายเป็นพื้นที่ของโซนนั่งเล่น เป็นห้องทานอาหารและรับแขก พื้นที่เล่นว่าวบนดาดฟ้าที่กำลังกลายเป็นสวนบนหลังคาและห้องพระ การเปลี่ยนผ่านต่างๆ นี้ ทำให้เห็นการเติบโตของครอบครัวจากรุ่นปู่ย่ากับรุ่นพ่อแม่ ได้ส่งต่อสู่รุ่นหลานๆ ที่ตัวสถาปัตยกรรมเองนั้น ยังคงสะท้อนรากและความสัมพันธ์ของครอบครัว ผ่านตัวกลางเชิงพื้นที่และความทรงจำอย่าง SATHU HOUSE ที่จะเป็นจุดนัดพบและเชื่อมต่อกัน ระหว่างวัยสู่วัย ระหว่างรุ่นสู่รุ่น ที่จะเป็นการส่งต่อและสร้างความทรงจำใหม่ๆ ร่วมกันอีกครั้ง












