Athita Pool Villa and Spa ผลงานการออกแบบโดย Studio Miti ที่ตีความแนวคิดเรื่อง ‘ข่วง’ แห่งล้านนา ผ่านวัสดุไม้และอิฐ ทำให้สถาปัตยกรรมกลมกลืนกับเมืองเก่าเชียงแสนได้อย่างสงบและร่วมสมัย
TEXT: MONTHON PAOAROON
PHOTO: SPACESHIFT STUDIO
(For English, press here)
ถ้าพูดถึงเมืองเก่าเชียงแสน จังหวัดเชียงราย หลายคนคงเคยได้ยินไม่ก็คงเคยไปเยือนโดยเฉพาะเมื่อปีที่แล้ว พื้นที่เชียงแสนก็เป็นหนึ่งในพื้นที่หลักของเทศกาลศิลปะ Thailand Biennale, Chiang Rai 2023 ที่เหมือนประตูเปิดพื้นที่ให้คนรู้จักเมืองนี้มากขึ้น แต่จริงๆ แล้วไม่ใช่แค่เทศกาลศิลปะอย่างเดียว ปัจจัยหลายอย่างทำให้เมืองที่เคยเงียบสงบค่อยๆ เปลี่ยนแปลงกลายเป็นจุดหมายปลายทาง โรงแรมและที่พักหลายแห่งในเมืองเริ่มปรับตัวเพื่อต้อนรับผู้มาเยือน และถ้าพูดถึงโรงแรมที่เพิ่งสร้างเสร็จไม่นาน แต่โดดเด่นและมีเอกลักษณ์ของเชียงแสน ก็คงต้องนึกถึง Athita Hidden Court โรงแรมที่เปิดดำเนินการมาแล้วกว่า 5 ปี และด้วยความสำเร็จของเฟสแรก Athita ยังได้ขยายเพิ่มส่วนวิลล่าและสปา ซึ่งเพิ่งสร้างเสร็จไม่นาน

ในวันที่เราเดินทางไปเชียงแสนเพื่อเข้าไปเยี่ยมชมส่วนต่อขยายวิลล่าและสปาโชคดีที่วันนั้นเราได้เจอและพูดคุยกับทางเจ้าของโครงการ นันทกาญจ์ ลิ้มเจริญ และหลังจากนั้นไม่กี่วันที่เชียงใหม่ก็เป็นจังหวะที่ เผดิมเกียรติ สุขกันต์ สถาปนิกจาก Studio Miti กลับมาบ้านที่เชียงใหม่พอดี แม้เราจะเน้นพูดคุยกับทั้งสองท่านกันถึงส่วนต่อขยายเป็นหลัก แต่คงจะดีไม่น้อยถ้าได้ฟังเรื่องเล่าของโรงแรมนี้ตั้งแต่แรกอีกครั้งเชื่อมโยงถึงปัจจุบันเพื่อให้เห็นมุมมองที่ครอบคลุมทั้งจากเจ้าของโครงการและผู้ออกแบบ

Part 1: คุยกับเจ้าของ
art4d: อันดับแรก ทำไมถึงเป็น Studio Miti
Nanthakarn Limjarean: ก่อนจะทำ เราตั้งใจมองหาสถาปนิกที่เข้าใจวัฒนธรรมทางเหนือ เก่งงานไม้ งานอิฐ และดูเรื่องของการรักษ์โลกประหยัดพลังงาน ซึ่งทาง Studio Miti เองที่พื้นเพเป็นคนเชียงใหม่ก็ตอบโจทย์ในทุกข้อ และเราก็ไปพักที่ที่ Studio Miti ออกแบบหลายๆ ที่มาแล้ว ทั้งบ้านมะขาม ทั้งบ้านสวนจันทิตา ซึ่งเรารู้สึกว่าชอบมาก เลยอยากได้แบบนี้เลย

art4d: โครงการมีที่มาที่ไปอย่างไร
NL: แรกเริ่มเราอยากทำ homestay ก่อน เพื่อให้คนที่มาสัมผัสกับท้องถิ่น พอ homestay มันเล็กเกินไปก็เลยขอเป็นโรงแรม พอเกือบเสร็จแล้วเจอโควิดไปเลยสองปีเต็มๆ ทำให้เราต้องมาเปิดร้านอาหารแทน หลังจากนั้นรัฐบาลก็เริ่มช่วยเหลือโปรโมชั่นต่างๆ ทำให้เราเริ่มมีลูกค้าเข้ามาพักมากขึ้น ซึ่งเราก็เริ่มสังเกตว่าส่วนใหญ่ลูกค้าจะมากันเป็นครอบครัว ในขณะที่ห้องพักของเราจะเป็นห้องเดี่ยว อีกอย่างคือโรงแรมไม้ถ้าเด็กวิ่งจะเสียงดัง เราเลยตั้งใจอยากทำเป็นวิลล่าขึ้นมา เป็นวิลล่าสองแบบคือแบบสามห้องนอนกับแบบสองห้องนอน

art4d: ก่อนเริ่มออกแบบ มีการอธิบายความต้องการของเรากับสถาปนิกอย่างไร
NL: ลูกค้าเราจะเข้ามาเรื่อยๆ ไม่ใช่กลุ่มลูกค้าที่เที่ยวตามฤดูกาลขนาดนั้น เราเลยบอกทางสถาปนิกว่า อยากให้ลูกค้าที่มาพักเหมือนมาพักบ้านเชียงแสนของเค้าเองอีกหลังนึง บางครั้งเรามีลูกค้ามาพักกับเรา 3–5 วัน เราอยากให้เขาใช้เวลาอย่างเงียบสงบอยู่ที่นี่ แต่ในขณะเดียวกันก็มีความสะดวกสบาย มีสระว่ายน้ำ มีครัวสำหรับการทำอาหาร มีเครื่องซักผ้าให้ ให้เค้าพักผ่อนได้จริงๆ
อีกจุดหนึ่งคือเราอยากได้ร้านขายของที่ระลึกเพิ่มเติม ลูกค้ามาพักก็อยากได้ของที่ระลึกกลับบ้าน และก็สปาพี่อยากได้สปาเล็กๆ แต่มีความครบเครื่อง เพื่อให้เวลาลูกค้ามาพักเค้าเหนื่อยจากการเดินทางก็สามารถมาใช้สปาได้
art4d: เห็นวัสดุก่อสร้างหลักของโรงแรมเป็นไม้ คุณรวบรวมไม้จากที่ไหน
NL: รอบแรกเราไปซื้อบ้านไม้สักมาเป็นหลัง แล้วตอนรื้อไม้เสียหายเยอะได้ไม้จากการรื้อมาแค่ 25% จากทั้งหลัง ซึ่งทำให้ต้นทุนไม้สูงมาก ทีนี้พอเรารู้ว่าต้นทุนไม้ที่เราซื้อเป็นหลังมามันสูง เฟสนี้เราก็เลยไปติดต่อโรงทำไม้ที่เค้าไปรื้อบ้านมาอีกทีนึง ซึ่งด้วยความที่เราใช้ไม้ค่อนข้างเยอะก็ปรากฏว่าไม้ที่รวบรวมมาแค่ในอำเภอเชียงแสนไม่พอ ดังนั้นเราเลยตะเวนไปทั่วโรงไม้ในเชียงรายเพื่อค่อยๆ เก็บไม้มาทำวิลล่า

art4d: ในมุมมองเจ้าของประทับใจอะไรในโครงการนี้เป็นพิเศษ?
NL: เรารู้สึกประทับใจการที่ช่างท้องถิ่นมาทำตามแบบของสถาปนิกซึ่งไม่ง่ายนัก ทำให้ช่างได้เรียนรู้พวกดีเทลไม้ที่ทาง Studio Miti เอามาซึ่งสามารถเอาไปต่อยอดในการทำบ้านไม้หลังอื่นๆ ในเชียงแสนให้สวยขึ้นได้ เราเองก็ได้มีส่วนร่วมในการคุมการก่อสร้างเองด้วย มันเลยเป็นการทำงานที่ผสมผสานหลายๆ ฝ่ายเข้าด้วยกัน

อีกอันนึงที่เราดีใจเมื่อเรามาอยู่ที่นี่ก็คือ โรงแรมเชียงแสนหลายๆ ที่ก็ปรับตัวดีขึ้นตาม ซึ่งเราก็คิดว่าดีกับชาวบ้านรอบๆ พอกลางคืนคนเชียงแสนขับรถผ่านมาเห็นโรงแรมเราเล็กๆ ที่เปิดไฟสวย แล้วคนพื้นที่ก็ยังชอบเราด้วย

Part 2: คุยกับสถาปนิก
art4d: เริ่มต้นการออกแบบโครงการนี้อย่างไร
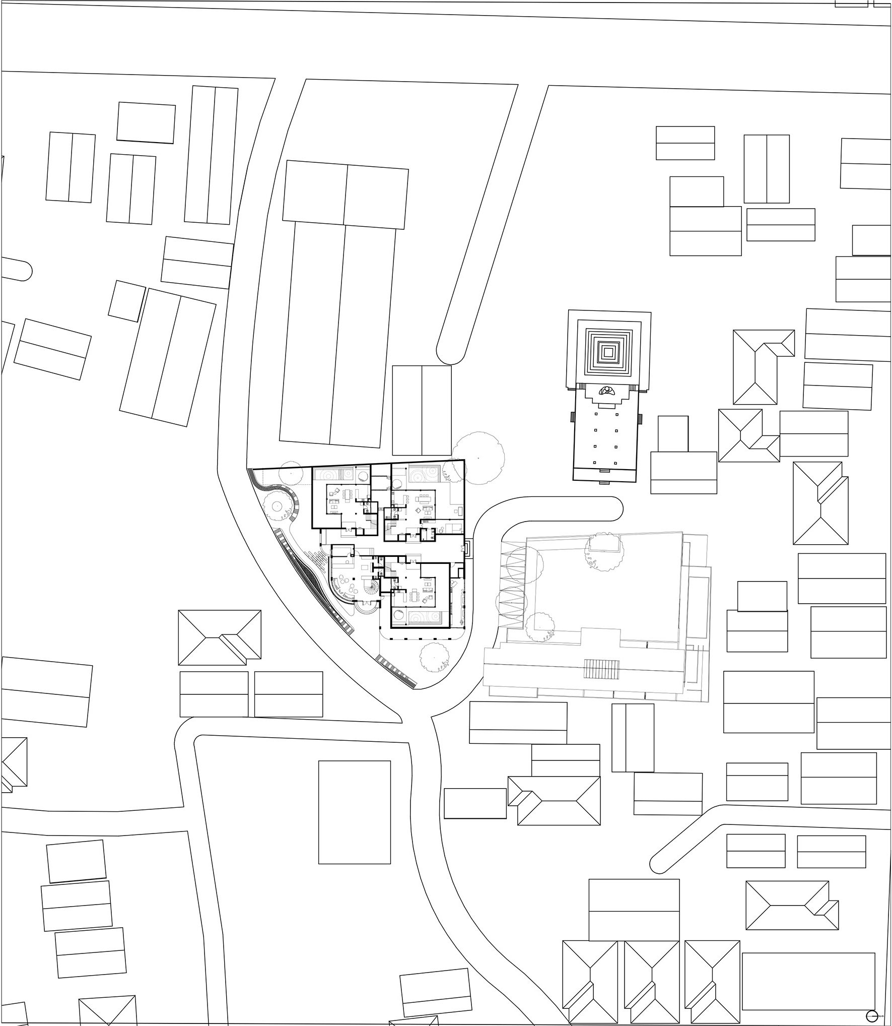
Padirmkiat Sukkan: ตั้งแต่ตอนเลือกสถานที่ เจ้าของพาไปดูที่ 2–3 ที่ ตรงนี้เป็นที่แรกที่เราไปดู ซึ่งเราก็จิ้มเลยว่าตรงนี้แหละ ตรงอื่นไม่ต้องไปดูแล้วเพราะเรารู้ว่ามันเหมาะสมที่สุด ย้อนกลับไปตอนที่เรียนป.โทเราเคยศึกษาเรื่อง ‘ข่วง’ ซึ่งเป็นพื้นที่ว่างซึ่งเป็น public space ของคนล้านนา โดยที่เมืองยุคนั้นเขามีการใช้ข่วงในการจัดการพื้นที่ มีข่วงบ้าน ข่วงวัด หรือก็คือลานบ้าน ลานวัด

ตอนที่เรามาดูที่ครั้งแรก เราเดินทางเข้ามาในที่ดินจากถนน แต่พอเข้ามาสิ่งที่เจอกลับเป็นพื้นที่หลังวัดที่ตั้งอยู่ติดกัน เราเลยเข้าใจว่าพื้นที่เหล่านี้ที่อยู่ในตัวที่ดินวัดมันคือ ‘ข่วง’ ของวัด เราเลยคุยกับเจ้าของว่า ขอเอาอาคารออกห่างจากวัดให้มากที่สุดเพื่อเปิดที่ว่างหรือเอาข่วงวัดเดิมกลับมาให้คนภายนอกมาไหว้พระได้
จากนั้นเราค่อยล้อมที่ว่างของอาคารใหม่ให้กลายเป็น ‘ข่วง’ บ้าน เป็น court ที่อยู่ภายใน ก่อนจะย่อยขนาดของ court ลงไปอีกแต่ละห้องพัก จาก court ขนาดใหญ่ย่อยลงไปเป็น court ขนาดเล็ก อีกอันที่สำคัญคือเราพยายามคุมความสูงของอาคารไม่ให้เกินองค์พระเพื่อให้เหมาะสมกับบริบทด้วย


art4d: จากโจทย์ของเจ้าของพัฒนาสู่การออกแบบเฟสใหม่อย่างไร
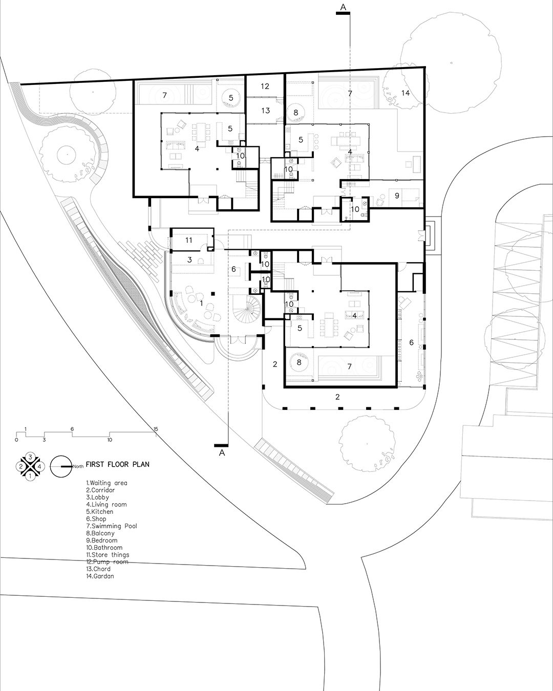
PS: เราเริ่มจากการจัดการพื้นที่ใช้งานในผังก่อน พื้นที่ส่วนสำคัญที่เขาอยากให้เพิ่มขึ้นมาคือพูลวิลล่าและสปา แต่พอเราวางดูจริงๆ พูลวิลล่ามันมีการใช้งานที่เสียงดังอึกทึก โดยเฉพาะส่วนสระว่ายน้ำ เราเลยตั้งใจแยกสระว่ายน้ำของแต่ละยูนิตออกจากกันให้ไกลที่สุด คือไปอยู่ที่แต่ละมุมของที่ดินเลยพอจัดไปจัดมามันก็เลยกระจายกันเป็นกากบาท และที่ดินมันเป็นหัวโค้งสามเหลี่ยมพอดี เราเลยว่างตรงหัวโค้งนั้นให้เป็นล็อบบี้และสปาในชั้นสอง
ส่วนสปานี้ตอนแรกลังเลว่าเราควรจะ follow แนวคิดความเงียบจากการปิดล้อม hidden court ของ Athita อาคารเดิมดีรึเปล่า แต่ส่วนนี้มันติดถนนรู้สึกว่ามันยากที่จะทำกำแพงปกปิด เลยตัดสินใจว่าถ้ามันต้องเห็นก็ต้องเห็น เราเลยจัดการพื้นส่วนนี้ด้วยการทำผนังอิฐโค้งรับมุมมองจากถนน พร้อมกับทำทางเดินเข้าให้เหมือนตรอกเพื่อสร้างความเชื่อมต่อกับพื้นที่ภายนอก คล้ายๆ กับสามารถเดินหลงเข้ามาเจอกับบ้านหลังเล็กๆ 3 หลังภายใน



วัสดุในส่วนสปาปกติเราเคยเห็นแต่การก่ออิฐในแนวตั้ง แต่เราไม่เคยเห็นอิฐก้อน เราเลยอยากให้มันเกิด space อิฐที่ถูกคว้านข้างในออก เพราะถ้าเราใช้รูปทรงทรงกระบอก เวลาเราอยู่ที่ถนนเราจะรู้สึกว่ามันใหญ่ เราก็เลยอยากให้มันมีความรู้สึกที่เล็กลงเพื่อให้คนข้างนอกรู้สึกว่ามันเข้ากับเมืองหน่อย ซึ่งในด้านหน้า เราได้เพิ่มกำแพงที่เป็น landscape เข้ามาทีหลังที่ช่วยบังไม่ให้เห็นคนเห็นถนนในระดับสายตา เห็นแค่อิฐกับต้นไม้

ส่วนบ้านคิดเหมือนทำบ้านปกติ เราคิดบ้านแยกหลัง แต่ละหลังมี court ของตัวเองและเชื่อมพื้นที่สระว่ายน้ำเข้ามาที่ตัวห้องให้แยกจากกันไม่ออก รวมถึงมีการใช้วัสดุข้างนอกข้างในที่เหมือนกัน โดยที่ชั้นสองซึ่งเป็นพื้นที่ส่วนตัวเพื่อเปิดให้เห็นบรรยากาศภายนอก ส่วนชั้นล่างเป็นพื้นที่ใช้สอยที่กลมกลืนไปกับผนังอิฐในภาพรวมของโครงการ

art4d: เล่าเรื่องที่มาการใช้วัสดุไม้กับอิฐให้เราฟังหน่อย
PS: เราจะสังเกตว่าในเชียงแสน พวกโบราณสถาน วัด ที่เป็นอาคารสาธารณะนั้นส่วนใหญ่จะก่อสร้างด้วยอิฐ ในขณะที่บ้านคนทั่วไปเป็นไม้ มันเลยเป็นนิยามคล้ายๆ ว่า วัสดุอิฐเป็น ‘สาธารณะ’ ไม้เป็น ‘ส่วนตัว’ เราใช้วัสดุไม้เป็นหลักตั้งแต่อาคารแรก โดยเฉพาะกับพื้นไม้ชั้น 2 ก็ติดตั้งด้วยตงไม้ ซึ่งการที่เดินพื้นไม้แล้วมันลั่นนั่นเป็นความตั้งใจของเรา
เราอยู่หน้าวัด มันจึงมีบริบทของความนอบน้อมบางอย่าง การที่พื้นไม้มีเสียงดังเองก็ทำให้แขกที่มาพักนั้นช้าลงทั้งการกระทำและความคิด ค่อยๆ เดินบนพื้นไม้ เงียบและสงบขึ้นเพื่อเคารพกับบริบทแต่เราก็โดนแขกตำหนิเรื่องนี้ไม่น้อย (หัวเราะ)


art4d: ในมุมมองของสถาปนิกประทับใจอะไรในโครงการนี้เป็นพิเศษ?
PS: บางครั้งก่อนที่งานจะเสร็จเราก็ไม่แน่ใจว่ามันดีหรือเปล่า แต่ผลออกมาคือเรารู้สึกว่าของจริงมันสวยกว่าที่คิด ซึ่งมันก็เป็นผลจากการศึกษามันเป็นปี มันชวนให้เราคิดถึงหลายอย่างที่ใช้เหมือนกัน เช่น วิธีการใช้ court หรือข่วงในงาน หรือการเลือกวัสดุที่เหมาะกับ


ถ้าจะให้เครดิตอีกคนคือ ภาครัฐท้องถิ่น อบต. พอตอนยื่นแบบไป เขาชมมาก เขาบอกอยากเห็นงานดีๆ แบบนี้อีก ขอให้ทำเยอะๆ ได้ไหม พอ Athita สร้างเสร็จ คนมาท่องเที่ยวเยอะขึ้น เมืองเชียงแสนมันเหมือนถูกเปิด มันเป็นเคสที่น่าสนใจ จาก homestay ในตอนแรก กลายเป็นโปรเจกต์ที่มีผลกับเมือง

เรานึกขอบคุณทั้งสถาปนิกและเจ้าของโครงการที่มาเล่าเรื่องราวทั้งหมดให้ฟัง ทำให้เราเห็นที่มาที่ไปของโรงแรมตั้งแต่แรกและตอบคำถามที่เราสงสัยในหลายมุมมอง ว่าทำไมที่นี่เป็นโรงแรมขนาดเล็กแต่กลับมีฟังก์ชันทุกอย่างครบ ความตั้งใจออกแบบให้เข้ากับบริบท การทำงานกับคนท้องถิ่น และจังหวะเวลาของโครงการกับการที่เมืองถูกเปิดจนเกิดการเปลี่ยนแปลง
มีประโยคระหว่างการพูดคุยกับเผดิมเกียรติ ที่เล่าความรู้สึกตอนทำงานโปรเจกต์นี้กับเรา ซึ่งเรารู้สึกว่ามันอธิบายความรู้สึกลงตัวของ Athita ได้ดีว่า “ทุกอย่างมันพอดิบพอดี และมาพร้อมๆ กัน”


























