Dersyn Studio ออกแบบ Crane Couple บ้านที่ถอดโจทย์ครอบครัวหลายวัยออกมาเป็นผังตัว L ล้อมคอร์ทยาร์ด สร้างสมดุลระหว่างการอยู่ร่วมกันและการแยกพื้นที่ได้อย่างลงตัว
TEXT: NATHATAI TANGCHADAKORN
PHOTO: NANTIYA BUSABONG
(For English, press here)
Featured Product
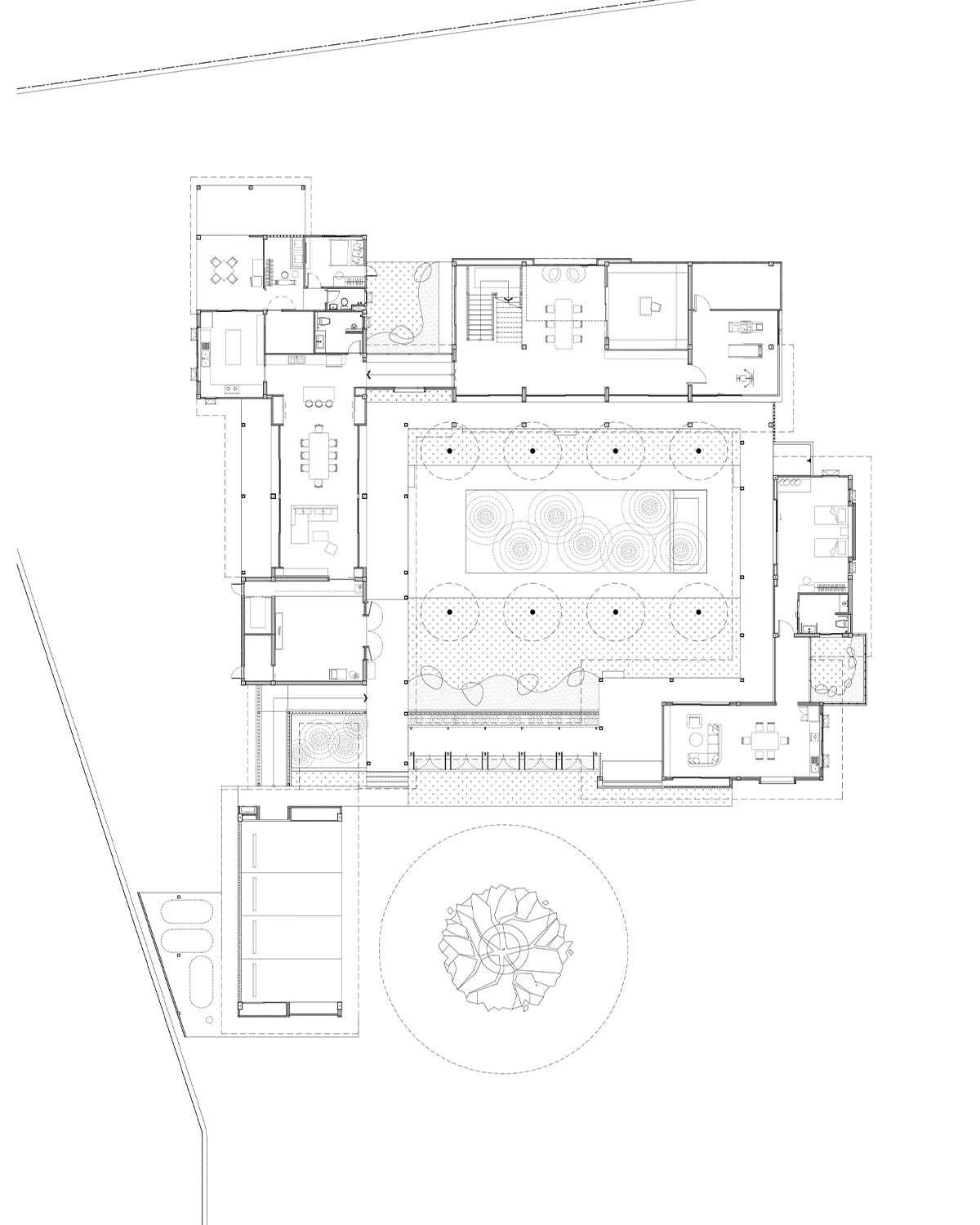
บ้านเป็นสถาปัตยกรรมที่สร้างขึ้นมาเพื่อผู้อยู่อาศัย และบ้านหลังใหญ่ก็ไม่เคยมีผู้อยู่อาศัยคนเดียว การผสมผสานโจทย์แต่ละด้านเข้าด้วยกันให้กลมกล่อมจึงเป็นหน้าที่ของสถาปนิกเสมอ เช่นเดียวกับ Crane Couple บ้านขนาด 1,665 ตารางเมตร โดย Dersyn Studio ที่ตั้งอยู่ในจังหวัดบุรีรัมย์หลังนี้ ซึ่งมีจุดเริ่มต้นเป็นการออกแบบบ้านในฐานะพื้นที่ที่หลอมรวมชีวิตของเด็ก คนวัยทำงาน และคนแก่เข้าด้วยกัน

ผู้ใช้งานของบ้านหลังนี้ประกอบด้วยสามีภรรยา ลูกชายสองคน และอาโกวหนึ่งคนซึ่งเป็นญาติสนิทที่เจ้าของบ้านเคารพนับถือ บ้านหลังนี้จึงต้องมีพื้นที่สำหรับคนทุกวัยอย่างที่กล่าวไปข้างต้น ขณะเดียวกันแต่ละส่วนก็ยังต้องการความเป็นส่วนตัว การวางผังบ้านได้คลี่คลายออกเป็นสองส่วน ส่วนแรกคืออาคาร 2 ชั้นสำหรับครอบครัวพ่อแม่ลูก อีกส่วนคืออาคารชั้นเดียวของอาโกวที่เดินขึ้นลงบันไดไม่สะดวกแล้ว โดยทั้งสองส่วนมีรูปร่างเป็นตัว L ประกบคอร์ทยาร์ดและสระว่ายน้ำตรงกลางเป็นรูปสี่เหลี่ยม

คอนเซ็ปต์ของโปรเจกต์นี้คือ ‘Inside-out, Outside-in’ นอกจากความเป็นส่วนตัวจากการแยกโซน บ้านต้องสร้างความเชื่อมต่อทางสายตาและเข้าถึงง่ายเพื่อให้ผู้สูงอายุใช้ชีวิตได้อย่างปลอดภัย ห้องนอนของอาโกว แม้จะอยู่คนละฟากฝั่งกับพื้นที่อยู่อาศัยของพ่อแม่ลูก แต่ก็สามารถมองทะลุผ่านถึงกันตามแนวสระว่ายน้ำที่เปิดโล่ง อย่างไรก็ตาม พื้นที่ใช้ชีวิตประจำวันของอาโกวอย่างครัวและห้องนั่งเล่นนั้นได้แอบซ่อนตัวอยู่หลังแนวไม้โปร่ง เวลากลางวันทั้งครอบครัวจึงแยกย้ายกันใช้ชีวิตได้แบบสบายใจ


เมื่อมองอีกมุม คอนเซ็ปต์นี้ก็หมายถึงการเชื่อมต่อผู้ใช้งานเข้ากับสภาพแวดล้อมได้ด้วย Crane Couple มีคอร์ทส่วนตัวเล็กๆ คอยสอดแทรกอยู่เป็นระยะ ซึ่งช่วยเพิ่มระยะห่างระหว่างพื้นที่แต่ละฟังก์ชัน คอร์ทเหล่านี้ควบคู่มากับคอริดอร์ semi-outdoor และชานนั่งเล่นรอบบ้าน โดยจะเห็นว่าพื้นที่ตัวประกอบเหล่านี้ส่งผลต่อช่องเปิดของบ้านโดยตรง หน้าต่างและผนังกระจกบานใหญ่ของชั้นหนึ่งหลบอยู่ใต้ร่มเงาชายคา เปิดรับแสงธรรมชาติและทิวทัศน์อย่างเต็มที่ กลับกันช่องเปิดบนชั้นสองนั้นมีเพียงเท่าที่จำเป็น ห้องที่ต้องการแสงก็ถูกออกแบบให้มีระแนงไม้ปกคลุมให้ไม่ร้อนจัด



อีกความพิเศษหลังนี้คือรูปลักษณ์สไตล์ญี่ปุ่น ซึ่งทั้งเจ้าของบ้านชาวไทยและภรรยาชาวไต้หวันมีความชื่นชอบตรงกัน สไตล์นี้จึงกลายมาเป็นทิศทางหลักในการออกแบบบ้าน ไม้และสีขาวที่เป็นสองตัวเอกหลักจับคู่ได้ความสงบที่มาพร้อมความอบอุ่น นอกจากนี้ Dersyn Studio ยังเติมแต่งการใช้งานบ้านทั้งหลังด้วยสเกลการใช้งานพื้นที่แบบญี่ปุ่นในบางจังหวะ Crane Couple ที่มองจากภายในดูใหญ่โต ความจริงแล้วถูกคิดถึงทั้งสุขภาวะและความพอดีในการใช้งาน ยกเว้นห้องโถงรับแขกหลักที่ผลักฝ้าขึ้นไปสูงถึง 5.5 เมตร เพื่อเป็นไฮไลต์ของบ้านสำหรับคนนอก

เนื่องจากผู้อยู่อาศัยมีทั้งเด็กและผู้สูงอายุ วัสดุภายในและจุดที่ต้องมีการสัมผัสทั้งหมดถูกเลือกให้เป็นไม้จริงหรือวัสดุที่มีค่าการปนเปื้อนของสารเคมีต่ำ ส่วนจุดที่มนุษย์เข้าไม่ถึงก็ใช้วัสดุที่ง่ายต่อการดูแลรักษา โดยเฉพาะพื้นที่ของอาโกวนั้นแทบไม่มีพื้นต่างระดับและมีการติดตั้งราวจับตลอดแนว เป็นการคิดเผื่ออนาคตถัดจากนี้ไปอีกขั้น เพราะนับจากวันที่เริ่มออกแบบ ก่อสร้าง จนสร้างเสร็จ สุขภาพและกาลเวลาไม่เคยรอใคร ผู้ใช้งานที่วันนี้เดินเองได้ วันหนึ่งพื้นที่ที่สะดวกสำหรับวีลแชร์ก็อาจจำเป็น



Crane Couple มีองค์ประกอบมากมายที่เกิดขึ้นตามความต้องการของเจ้าของบ้าน ไม่ว่าจะเป็นห้องสำหรับต่อและโชว์โมเดล ห้องครัวและห้องรับประทานอาหารหลายแห่ง เพราะทั้งภรรยาและอาโกวต่างก็ชอบทำอาหาร ที่สำคัญคือบ้านหลังนี้ไม่เคยขาดแคลนพื้นที่ที่เปิดโอกาสให้คนในบ้านใกล้ชิดกับธรรมชาติ สิ่งเหล่านี้อยู่ด้วยกันอย่างกลมกลืนในขอบเขตของตัวเอง ภายใต้กรอบของรูปลักษณ์ภายนอกที่สวยงาม ทั้งพอดีและดีพอ










