MVRDV นำเสนออาคารในฐานะสื่อกลางแห่งเรื่องเล่าที่เชื่อมโยงผู้คนเข้ากับอดีต ปัจจุบัน อนาคตของท่าเรือที่ใหญ่ที่สุดในยุโรปอีกครั้ง
TEXT: PRATCHAYAPOL LERTWICHA
PHOTO: OSSIP VAN DUIVENBODE
(For English, press here)
“เวลาที่คุณอยู่อาศัยใน Rotterdam ท่าเรือจะอยู่ลิบๆ ตรงขอบฟ้า มันอยู่ตรงนั้นและหลายคนแทบไม่รู้ว่าเกิดอะไรขึ้นในนั้นบ้าง” Winy Maas ผู้ร่วมก่อตั้งสตูดิโอสถาปัตยกรรม MVRDV เขียนถึงโปรเจกต์ ‘Portlantis’ ศูนย์บริการท่องเที่ยวและนิทรรศการใน Port of Rotterdam ที่ MVRDV ร่วมออกแบบในเว็บไซต์ของสตูดิโอ “Portlantis ช่วยให้ผู้คนได้สืบเสาะพบเห็นว่ามีอะไรเปลี่ยนแปลงในท่าเรือ รู้ว่ามันเกี่ยวข้องกับเมืองอย่างไร ส่งผลกับชีวิตของพวกเขาในเมืองอย่างไร มันทำหน้าที่ได้อย่างมีประสิทธิภาพมาก เหมือนเป็นเครื่องจักรของการเล่าเรื่อง (a machine for storytelling)”

Port of Rotterdam นับเป็นท่าเรือที่ใหญ่ที่สุดของยุโรป และเป็นศูนย์กลางด้านโลจิสติกส์และอุตสาหกรรมที่สำคัญ แต่อาจเป็นเพราะท่าเรืออยู่ไกลจากตัวเมืองกว่า 40 กิโลเมตร จนมองเห็นได้เพียงลิบๆ ชาวเมืองจึงไม่อาจรับรู้ถึงบทบาทและความสำคัญ Portlantis จึงถูกสร้างขึ้นมาเพื่อลดระยะห่างระหว่างผู้คนกับท่าเรือ เปิดให้เห็นว่าท่าเรือมีอะไรเกิดขึ้นข้างในมีผลกับชีวิตพวกเขาอย่างไร และร่วมสร้างท่าเรือในอนาคตที่เป็นมิตรต่อสิ่งแวดล้อม

Portlantis สร้างขึ้นแทนที่ FutureLand ศูนย์เยี่ยมชมชั่วคราวเดิมที่เปิดบริการในปี 2009 จนถึง 2014 โดยที่ Portlantis ใหม่นี้ตั้งอยู่บนชายหาดของพื้นที่ถมทะเล Maasvlakte 2 ในจุดตะวันตกสุดของท่าเรือ Port of Rotterdam ไม่ได้เริ่มต้นโครงการด้วยการสรรหาสถาปนิกมาออกแบบอาคาร แต่กลับว่าจ้างสตูดิโอ Kossmanndejong สัญชาติเนเธอร์แลนด์ที่เชี่ยวชาญการออกแบบนิทรรศการ ให้มาวางเส้นเรื่องและประสบการณ์ของการเยี่ยมชมเสียก่อน แล้วถึงจัดการประกวดแบบหางานสถาปัตยกรรมที่สอดรับกับเส้นเรื่องนี้ ซึ่งเส้นเรื่องที่ Kossmanndejong วางไว้ ประกอบด้วยประวัติศาสตร์การพัฒนาท่าเรือตั้งแต่หลังสงครามโลกครั้งที่สอง ผลกระทบของท่าเรือต่อเศรษฐกิจและสิ่งแวดล้อมในภูมิภาค รวมไปถึงอนาคตของท่าเรือ

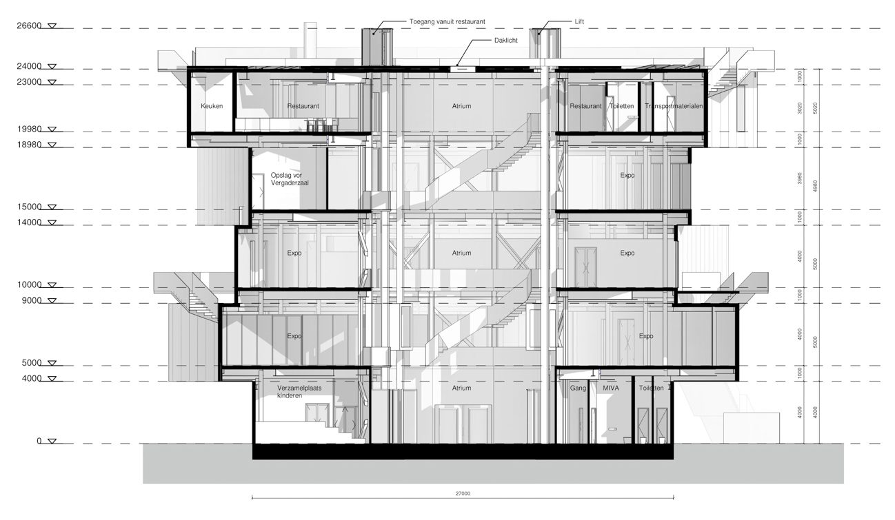
และ MVRDV เองก็ได้กลายมาเป็นผู้ชนะการประกวดแบบในครั้งนี้ ด้วยอาคารก้อนสี่เหลี่ยมห้าก้อนวางซ้อนหมุนเยื้องกัน ราวกับตู้คอนเทนเนอร์ไม่มีผิด พร้อมด้วยบันไดสีแดงที่พันร้อยโดยรอบ เป็นสถาปัตยกรรมที่มีรูปทรงโดดเด่น แฝงด้วยสีสันและองค์ประกอบสนุกสนาน ไม่ต่างจากงานออกแบบหลายๆ งานที่ผ่านมาของ MVRDV ผนังอาคารแต่ละชั้นจะมีบานหน้าต่างขนาดใหญ่ มุมหมุนของก้อนอาคารแต่ละชั้นที่ต่างกัน ช่วยให้บานหน้าต่างเปิดทิวทัศน์ออกไปหาองค์ประกอบในท่าเรือที่สอดคล้องกับเนื้อหานิทรรศการข้างใน

โครงสร้างของอาคารด้านในเช่นคานเหล็ก ท่อแอร์ ท้องพื้น ถูกเผยให้เห็นอย่างหมดจดในพื้นที่ภายใน เป็นฉากหลังให้องค์ประกอบสีสันสดใสที่เป็นส่วนหนึ่งของนิทรรศการ ในชั้นแรกของอาคารคือเอเทรียมกลางสูงกว่า 22 เมตรและประติมากรรมเด่นตรงกลางที่นำชิ้นส่วนจำลองของเรือมาย้อมสีเหลืองอ๋อย ชิ้นส่วนเคลื่อนตัวขึ้นลงเล่นไปมาอย่างสนุกสนาน สร้างผลลัพธ์ประติมากรรมที่แตกต่างกันไปแต่แต่ละช่วงเวลาของวัน ในชั้นเดียวกันยังเป็นคาเฟ่ ที่รับวิวเนินทรายอันใกล้ชิดด้านนอกแบบพาโนรามาผ่านบานกระจกใส

ชั้นสองถึงสี่ เป็นพื้นที่นิทรรศการที่ Kossmanndejong ออกแบบการจัดวางก้อนวัตถุเป็นกลุ่มในโถงโล่ง โอบล้อมด้วยสภาพแวดล้อมอาคารแบบดิบๆ นิทรรศการถ่ายทอดเนื้อหาผ่านเกม เวิร์กช็อป และประสบการณ์แบบ immersive ที่ย่อยง่าย เข้าถึงได้ทุกเพศทุกวัย ทั้งยังไม่มีการกำหนดเส้นทางเดิน เพื่อให้ทุกคนเรียนรู้ได้ตามความสนใจของตัวเอง ในขณะที่ชั้นสามพูดถึงเนื้อหาผลกระทบของท่าเรือต่อภูมิภาคในด้านต่างๆ บานหน้าต่างก็เปิดออกไปสู่ท่าเรือเห็นผู้คนที่ทำงานในนั้นแบบเรียลไทม์ ภูมิทัศน์ท่าเรือชั้นสี่ก็เสริมบริบทนิทรรศการที่สื่อสารประเด็นการเปลี่ยนผ่านพลังงานและการเปลี่ยนแปลงทางภูมิรัฐศาสตร์ให้ชัดเจนขึ้นเช่นกัน
ชั้นห้าของอาคารเป็นร้านอาหาร มีบานหน้าต่างรับทัศนียภาพพระอาทิตย์ตกดินเหนือทะเลเหนือและแสงไฟระยิบระยับของท่าเรือในยามค่ำคืน ก้อนอาคารที่วางเหลื่อมกัน ทำให้เกิดพื้นที่ชมทิวทัศน์ด้านนอก ซึ่งแต่ละชั้นร้อยเรียงเข้าด้วยกันด้วยบันไดสีแดงที่ทอดตัวไปถึงดาดฟ้า เปิดให้ผู้คนดื่มด่ำบรรยากาศของทะเลเหนือ และตกผลึกเนื้อหานิทรรศการผ่านภาพของจริงที่อยู่ตรงหน้า


วัสดุของอาคารเป็นวัสดุอุตสาหกรรมที่เรียบง่าย ตอบรับกับเป้าหมายด้านความยั่งยืนของท่าเรือ อาคารกรุด้วยแผ่น Sandwich Panel ที่ทนทานต่อสภาพอากาศริมทะเล สีเงินอันเจิดจ้ายังทำให้อาคารเปล่งประกายท่ามกลางชายหาดกว้างใหญ่เวิ้งว้าง แผ่น facade รวมถึงโครงสร้างสามารถถอดออกและนำไปใช้ใหม่ได้เมื่ออาคารรื้อถอนลง ระบบทำความร้อนและฉนวนที่มีประสิทธิภาพช่วยลดการใช้พลังงานภายใน เมื่อประกอบการติดตั้งกังหันลมและแผ่นโซลาร์เซลล์ 266 แผ่นเพิ่มเติม อาคารก็สามารถสร้างพลังงานได้มากกว่าที่ใช้ถึง 30%

Port of Rotterdam ตั้งเป้าว่าเป็นท่าเรือสีเขียวที่ปราศจากการใช้พลังงานฟอสซิลภายในปี 2050 ในวันนี้ ท่าเรือยังใช้พลังงานจากฟอสซิลราว 50% ของทั้งหมด การถ่ายทอดเรื่องราวท่าเรือให้ชาวเมือง Rotterdam เข้าใจ ร่วมบรรลุเป้าหมายและกำหนดอนาคตจึงเป็นเรื่องสำคัญ และเรื่องราวเหล่านั้น ก็ถูกบอกเล่าผ่านอาคารที่ออกแบบมาสอดประสานกับนิทรรศการภายในบริบทภายนอก เพื่อให้เป็น ‘a machine for storytelling’ ที่สมบูรณ์














