Cloud House บ้านที่ห่อหุ้มด้วย façade คอนกรีตหล่อสำเร็จทรงกระบอกจากฝีมือการออกแบบโดย Backyard Architect
TEXT: KARN PONKIRD
PHOTO: THANES PIAMNAMAI
(For English, press here)
จากโจทย์ของผู้ว่าจ้าง ซึ่งต้องการบ้านพักอาศัยในจังหวัดนครปฐมที่พร้อมรองรับสมาชิกในครอบครัว 3 เจเนอเรชั่น มีพื้นที่เพียงพอให้ลูกๆ ได้วิ่งเล่นและการมาเยี่ยมเยียนของคุณปู่และคุณย่า อีกทั้งยังต้องสามารถทำหน้าที่เป็น home office ได้อย่างไม่ติดขัดในกรณีต้อง work from home บ้าน ‘Cloud House’ จึงก่อร่างตัวเองเป็นบ้านพักอาศัยขนาด 1,200 ตารางเมตร ด้วยความเห็นที่ตรงกันของทั้งสถาปนิกและผู้ว่าจ้าง ในความต้องการที่จะ ‘ทดลอง’ การใช้งานวัสดุทางสถาปัตยกรรม

มีชัย เจริญพร สถาปนิกจาก Backyard Architect เล่าว่า การออกแบบเริ่มต้นจากการทั้งความชอบในบ้านทรงตัว U ของผู้ว่าจ้าง ควบคู่ไปกับการจัดเรียง zoning ของกิจกรรมลงไป ก่อนจะลำดับความเป็นส่วนตัวของแต่ละพื้นที่ การออกแบบให้พื้นที่ของทั้งชั้นสอง เป็นพื้นที่ส่วนตัวของครอบครัว การทำกิจกรรมหลักๆ และการพักผ่อนจะเกิดขึ้นในชั้นนี้ต้องสร้างความรู้สึกปลอดภัย นอกจากผู้อยู่อาศัยยังรู้สึกเหมือนได้รับการปกป้องแล้วยังต้องให้ความรู้สึกเบา ไม่ทึบตันจนอึดอัด การใช้ช่องเปิดเพื่อให้ยังเข้าถึงแสงธรรมชาติก็ยังเป็นสิ่งจำเป็น กระบวนการเหล่านี้ทำให้ mass ของบ้านค่อยๆ เห็นเป็นรูปเป็นร่าง ภายหลังจากสื่อสารเพื่อสร้างความเข้าใจต่อผู้ว่าจ้างด้วยการจัดวางบล็อกเลโก้อย่างไม่ซับซ้อน ไอเดียก็ถูกตอบรับอย่างดีและถูกนำไปพัฒนาต่อ โดยผู้ว่าจ้างก็ร่วมหยอดความต้องการเพิ่มเติมว่าอยากให้ตัวบ้านนั้นดูมีความ ‘พิเศษ’ กว่าบ้านทรงกล่องทั่วไป

มีชัยกล่าวเสริมว่า วัฒนธรรมการทำงานของ Backyard Architect ในทุกงาน นอกจากจะให้ความสำคัญกับการออกแบบตามความต้องการของลูกค้า คือได้สถาปัตยกรรมที่ requirement พึงมีครบครันตามมาตรฐานวิชาชีพแล้ว การที่ทีม ‘ได้อะไรกลับไป’ ในการทำงานนั้นๆ ก็สำคัญ การค่อยๆ สั่งสมความรู้ ความเข้าใจต่อการใช้งานวัสดุแต่ละประเภท ศึกษาผลที่ได้จากการทดลอง เรียนรู้ และพัฒนาต่อยอดความสามารถของทีมไปพร้อมกัน


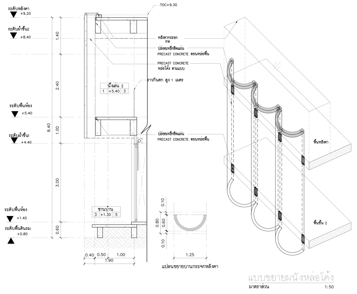
ด้วยความหลงใหลของมีชัยที่มีต่องานสถาปัตยกรรมคอนกรีตซึ่งถูกออกแบบจากเหล่าสถาปนิกชื่อดัง ไม่ว่าจะเป็น อมร ศรีวงศ์ หรือ รังสรรค์ ต่อสุวรรณ การทดลองออกแบบ façade ที่ห่อหุ้ม Cloud House จึงเป็นเสมือนการตั้งคำถามต่อความเป็นไปได้และขีดจำกัดของคอนกรีตในงานก่อสร้าง การพา façade ของบ้านให้ไปไกลกว่าบ้านกล่อง แต่ยังต้องคงความรู้สึกปลอดภัย การป้องกันความร้อน ผ่านการเลือกช่วงเวลาที่ต้องการให้เกิดปรากฏการณ์ของแสงที่จะกระทำต่อวัสดุ โดยมีข้อจำกัดที่เจ้าของบ้านไม่อยากให้บ้านมีอุณหภูมิที่สูงและรับแดดนานเกินไป จึงเกิดการสังเกตทิศทางการขึ้นลงของแดด และเพื่อให้แสงแดดลงมาตกกระทบเป็นเวลาที่ไม่นานมาก สถาปนิกได้เลือกใช้แสงจากด้านบน อย่างแสงในช่วงเวลา 11:00 – 12:00 น. ผ่านการเจาะช่องแสงเป็นทรงโค้ง โดยมีการทดลองผ่านโปรแกรมเพื่อเช็คทิศทางและขนาดของช่องเปิดเพื่อให้ได้แสงตกกระทบในรูปแบบและช่วงเวลาที่ต้องการ จึงเป็นที่มาของรูปทรงกระบอกที่ถูกเลือกมาห่อหุ้มพื้นที่พักผ่อนของครอบครัว

ด้วยประสบการณ์ของสถาปนิกที่เรียนรู้การทำงานกับคอนกรีตหล่อในที่มาเรื่อยๆ ตั้งแต่การใช้งานในสเกลเล็กๆ ไปจนถึงการหล่อผนังขนาดใหญ่ จึงทำให้ทราบดีว่า การหล่อคอนกรีตในที่ให้เป็นรูปทรงโค้ง เป็นงานที่ควบคุมคุณภาพหน้างานให้ออกมาเป็นอย่างที่ต้องการได้ยาก ทั้งตัวแปรเรื่องฝีมือแรงงาน สภาพอากาศ ข้อจำกัดทางวิศวกรรม รวมถึงเจ้าของบ้านต้องรับความเสี่ยงในกรณีที่ถอดแบบหล่อออกมาแล้ว รูปทรงและคุณภาพของผนังไม่เป็นตามต้องการ มีความจำเป็นที่จะต้องทุบแล้วหล่อใหม่ ซึ่งเป็นการสิ้นเปลืองงบประมาณมากเกินความจำเป็น สถาปนิกจึงมองว่านี่เป็นโอกาสอันดีที่จะได้ทดลองการทำงานกับคอนกรีตประเภทหล่อสำเร็จ (precast) ซึ่งจะมาช่วยแก้ปัญหาการควบคุมคุณภาพหน้างานที่กล่าวมาตอนต้นได้อย่างดี และยังสามารถให้การทำงานชิ้นนี้ ทีมได้เรียนรู้ทักษะการทำงานกับวัสดุที่คุ้นเคย (คอนกรีต) ในกระบวนการที่ไม่คุ้นเคย (precast) ได้อีกด้วย


สถาปนิกกล่าวว่า ก่อนหน้านี้ เมื่อพูดถึงงานผนัง precast มักจะนึกถึงงานในกลุ่มอาคารสูงและหมู่บ้านที่ต้องการทำซ้ำในจำนวนมาก การได้เลือกใช้ในครั้งนี้ทำให้ได้เรียนรู้ว่าหากออกแบบอย่างรัดกุมและมีการวางแผนที่ดี การใช้คอนกรีต precast ก็ทั้งประหยัดเวลาและเงินให้กับงานประเภทบ้านแนวราบได้เช่นกัน โดยทางสถาปนิกสามารถออกแบบรูปทรง และการยึดจับแผ่น precast เข้ากับโครงสร้างในลักษณะที่ต้องการ หลังจากนั้นก็ทำการแลกเปลี่ยน-ปรึกษาข้อมูลกับโรงงาน precast อย่างละเอียด เพื่อเตรียมขึ้นแบบจริง ในระหว่างนี้ก็จำเป็นที่จะต้องให้ทีมของโรงงาน precast เข้ามาวัดพื้นที่ติดตั้งหน้างาน เพื่อป้องกันความผิดพลาดที่อาจเกิดขึ้นเมื่อยกแผ่นมาติดตั้ง แต่ถึงอย่างนั้น ก็มีบางจุดที่ออกมาเหนือความคาดหมายไปบ้าง เช่นระยะความยาวของแผ่น precast ที่ไม่ครอบคลุมความสูงของทั้งชั้นสอง (รวม 5 เมตร) ซึ่งเพิ่มขึ้นจากการความต้องการของเจ้าของบ้านที่ขอเพิ่มระยะฝ้าในชั้นสอง โดย mold หล่อทำได้ยาวสุดที่ 4.8 เมตร และการเพิ่มความยาว mold ให้ยาวขึ้นในงานที่ volume ไม่มากก็ต้องเพิ่มต้นทุนอีกเท่าตัว การติดตั้งแผ่นผนังหน้างานจริงจึงเกิด gap ระหว่างบริเวณรอยต่อของ mass ชั้นหนึ่งและสอง ทำให้เกิด effect ที่เหมือนก้อน mass ชั้นสองดู ‘ลอยขึ้น’ และ ‘เบา’ อย่างแปลกตา


การแก้ปัญหาในระหว่างก่อสร้าง ซึ่งทำให้เกิดการเรียนรู้และประสบการณ์ที่ได้เพิ่มขึ้นมาในทุกวัน และความไม่ perfect ของวัสดุ ความเป็นธรรมชาติของวัสดุนั้นๆ ที่บางครั้งก็เกิดปัจจัยที่อาจคาดเดาไม่ได้เช่นร่องรอยบนผิวของคอนกรีต ดีเทลที่เพิ่มมาเหล่านี้เองที่มีส่วนให้สถาปัตยกรรมในแต่ละที่ทางที่ตัวมันตั้งอยู่มีความพิเศษ และเมื่อถูกคลี่คลายออกมาเป็นบ้านที่ผู้อยู่อาศัยพึงพอใจ ปัจจัยต่างๆ เหล่านั้นเองที่แปรเปลี่ยนให้สถาปัตยกรรมเหล่านั้นมีชีวิตขึ้นมา มีชัยกล่าวปิดท้าย






