การตีความใหม่ของ ‘MACHIYA’ และการเชื่อมต่อประวัติศาสตร์ 160 ปีใน UCHIDA SHOTEN HEAD OFFICE โดย SCHEMATA ARCHITECTS
TEXT: BHUMIBHAT PROMBOOT
PHOTO: JU YEON LEE
(For English, press here)
เมืองฟุจิซาวะ เมืองที่เป็นทั้งสถานที่พักแรม โรงน้ำชาและเป็นพื้นที่ค้าส่งที่เจริญรุ่งเรือง ที่รายล้อมไปด้วยพ่อค้า นักเดินทางต่างๆ ที่เข้ามาจับจ่ายใช้สอยและค้างแรมมาตั้งแต่สมัยยุคเอโดะ เมืองฟุจิซาวะเป็นเมืองลำดับที่ 6 จาก 53 แห่ง ที่อยู่บนเส้นทาง โทไคโด เส้นทางสายประวัติศาสตร์ที่เชื่อมต่อระหว่างเกียวโต เมืองหลวงเดิมกับเอโดะหรือกรุงโตเกียวในปัจจุบันเข้าไว้ด้วยกัน ซึ่งรูปแบบสถาปัตยกรรมบ้านแถวอันเป็นเอกลักษณ์ดั้งเดิมของเมืองฟุจิซาวะ ได้ถูกนำมานำเสนอใหม่ ผ่านผลงานปรับปรุงอาคารสำนักงานใหญ่ของบริษัท Uchida Shoten บริษัทผู้ผลิตฮาร์ดแวร์ ที่ก่อตั้งมาอย่างยาวนานถึง 160 ปี โดย Schemata Architects สำนักงานออกแบบสถาปัตยกรรมที่ก่อตั้งโดย Jo Nagasaka เป็นผู้ถ่ายทอดเรื่องราวและนำเสนอผลงานสถาปัตยกรรม ที่ตอบโจทย์ทั้งทางธุรกิจ ชุมชนและประวัติศาสตร์ของพื้นที่


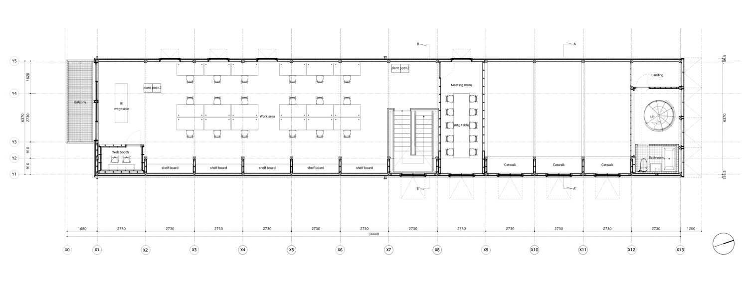
2nd floor plan

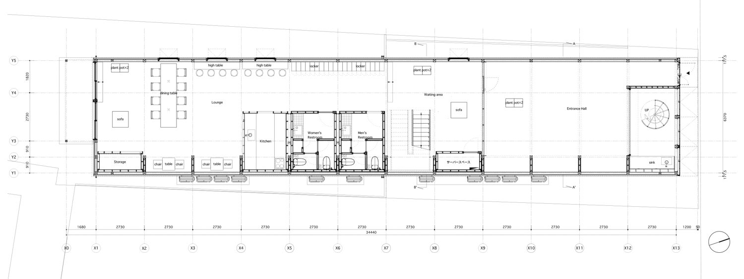
1st floor plan
พื้นที่ดินหน้าแคบและลึก คือภาพที่สะท้อนถึงแง่มุมทางประวัติศาสตร์ของพื้นที่และเวลาของเมือง ฟุจิซาวะ ตั้งแต่ยุคแรกเริ่ม ที่มีการจัดการการเก็บภาษีตามอัตราความกว้างของหน้าที่ดิน จึงทำให้รูปแบบอาคารในพื้นที่ดังกล่าวมีลักษณะเป็นเอกลักษณ์เฉพาะตัวโดยมีชื่อเรียกกันว่า ‘Machiya’ ซึ่งแปลตรงตัวก็คือ บ้านแถวหรือตึกแถวที่ทำด้วยไม้ที่ซึ่งเป็นอาคารที่เอาไว้ทั้งอยู่อาศัยและทำการค้าขายไปด้วยกัน โดยมีลักษณะรูปแบบอาคารที่เป็นเอกลักษณ์คือด้านหน้าจะแคบและส่วนใช้สอยจะลึกเข้าไปตามแปลงที่ดิน โดยที่หน้าบ้านจะถูกวางการใช้สอยเป็นร้านค้าหรือรับแขก ส่วนด้านหลังบ้านจะถูกทำเป็นที่เก็บสินค้าหรือโกดัง และส่วนชั้นสองของอาคารจะเป็นที่สำหรับพักผ่อนและทำกิจวัตรส่วนตัวต่างๆ ฉะนั้นรูปแบบอาคารและลักษณะพื้นที่ดินที่เป็นเอกลักษณ์นี้ ทำให้ทาง Schemata Architects ต้องการคงรักษาสัจจะบางส่วนของตัวอาคารเดิมเอาไว้ เช่น ตัวโครงสร้างอาคารและการจัดวางตำแหน่งพื้นที่ และอีกนัยหนึ่งก็เพื่อต้องการเชื่อมต่ออดีตกับปัจจุบันระหว่างอาคารสำนักงานแห่งใหม่กับบริบทแวดล้อมเดิม เพื่อสื่อสารถึงการเปลี่ยนแปลงทางสังคม วัฒนธรรม และเศรษฐกิจในเมืองฟุจิซาวะ



เพราะอาคารสำนักงานเดิมมีความทรุดโทรมตามกาลเวลาและผลกระทบที่เกิดจากแผ่นดินไหวบ่อยครั้ง ทำให้ทางบริษัท Uchida Shoten ต้องการปรับปรุงพื้นที่อาคารสำนักงานขึ้นมาใหม่ โดยที่ขนาดและสัดส่วนของอาคารสำนักงานใหม่นี้ สามารถคงขนาดและสัดส่วนของอาคารใกล้เคียงกับขนาดเดิมได้ เนื่องจากทางบริษัท Uchida Shoten ไม่ได้มีความต้องการที่จะเปลี่ยนแปลงขนาดบริษัทใหม่ ทั้งจำนวนพนักงานที่ไม่ได้มีการรับจำนวนเพิ่มหรือการที่ไม่ได้ต้องการส่วนต่อขยายใหม่เพื่อการขยับขยายกิจการอื่นๆ ในอนาคต จึงทำให้ทาง Schemata Architects สามารถใช้โครงสร้างและระยะของอาคารเดิมมาใช้อ้างอิงในการออกแบบภายในและภายนอกใหม่ได้ และเนื่องจากอัตราการมีพื้นที่คลุมดินที่เปลี่ยนแปลงไป ส่งผลให้ตัวอาคารเองสามารถเพิ่มพื้นที่ใช้สอยอื่นๆ นอกเหนือจากส่วนที่เป็นพื้นที่ออฟฟิศและโถงต้อนรับได้ โดยการมีห้องสำหรับกิจกรรมศิลปินพำนัก ที่อิงรูปแบบมาจาก ‘Nedoko’ พื้นที่ที่สามารถเป็นได้ทั้งการพักผ่อนหย่อนใจและเป็นที่พักอาศัยค้างแรมที่สามารถอยู่ร่วมกันในพื้นที่ที่เดียวกันได้ ผ่านการเชื่อมต่อพื้นที่ทั้งสองส่วนนี้ด้วยตัวบันไดวนที่วางอยู่ในตำแหน่งตรงกลางของห้องศิลปินพำนัก

การเชื่อมต่อกับชุมชน พื้นที่ทางประวัติศาสตร์และโลกภายนอก คือเป้าหมายหนึ่งของโครงการปรับปรุงอาคารสำนักงานของ Uchida Shoten ผ่านกิจกรรมศิลปินพำนักที่มีเปิดการต้อนรับนักออกแบบตั้งแต่วัยเรียนจนถึงวัยทำงานจากทั่วทุกมุมโลก เพื่อชักชวนให้ศิลปินที่สนใจในบริบททางวัฒนธรรมของจังหวัดฟุจิซาวะ ได้เข้ามามีบทบาทร่วมกันในการพัฒนาและสร้างองค์ความรู้ใหม่ๆ ให้แก่ชุมชน ในการผลิตผลงานและทำการจัดแสดงนิทรรศการที่มีความเกี่ยวข้องกับเมืองฟุจิซาวะ โดยพื้นที่ดังกล่าว ทางผู้ออกแบบได้จัดการแบ่งโซนส่วนศิลปินพำนักให้อยู่ส่วนหน้าสุดของอาคารเพื่อการเปิดพื้นที่ภายใน ที่ใกล้ชิดและเชื่อมต่อกับชุมชนใกล้เคียงได้ ผ่านการมีประตูทางเข้าและหน้าต่างกันสาดทางด้านหน้าอาคาร ที่ถูกปิดผิวภายนอกด้วยแผ่นลอนโลหะทั้งตัว ที่ได้ถูกจัดเรียงกันอย่างเรียบง่าย โดยทั้งตัวสัดส่วนและตัววัสดุแสดงถึงความจริงจัง และตรงไปตรงมา และยังสามารถตอบสนองการดูแลรักษาได้อย่างเข้าใจง่ายและมีประสิทธิภาพ ซึ่งเมื่อบานหน้าต่างกันสาดได้ถูกเปิดออก ก็จะเผยให้เห็นบรรยากาศและวัสดุภายในที่ดูอบอุ่นและเป็นกันเอง จากการปิดผิวจากวัสดุธรรมชาติอย่างไม้สนที่เข้ามาห่อหุ้มส่วนต่างๆ ทั้งในโซนของตัวออฟฟิศและในส่วนของโซนศิลปินพำนัก ผ่านการสร้างความขัดกันทางอารมณ์และความรู้สึก ระหว่างพื้นผิวภายในและพื้นผิวภายนอก


กล่องขนาดใบใหญ่ๆ ที่บรรจุพื้นที่แต่ละโซนอย่างเฉพาะเจาะจงและเป็นขั้นเป็นตอน มากกว่าที่จะเป็นการจัดแปลนนิ่งแบบเป็นอิสระ (open plan) ที่ทางผู้ออกแบบได้อ้างอิงหลักการจากการจัดโซนมาจากตัวอาคาร Machiya (wooden townhouse) ที่มีการจัดพื้นที่ใช้สอยเชิงกึ่งสาธารณะหรือกึ่งส่วนตัวในส่วนตรงด้านหน้าอาคาร โดยจะเป็นพื้นที่ส่วนของโถงต้อนรับและส่วนของศิลปินพำนัก และส่วนที่ต้องการความเป็นส่วนตัวจะเป็นของออฟฟิศ ซึ่งจะถูกจัดพื้นที่ไว้อยู่ทางด้านหลังของอาคาร การจัดวางผังการใช้สอยต่างๆโดยยึดตามรูปแบบ ‘Machiya’ นั้น เป็นความตั้งใจของ Schemata Architects ที่ต้องการแสดงความเคารพต่อประวัติศาสตร์พื้นที่ ความทรงจำและผู้คนต่างๆที่เคยมาอาศัย แวะเวียน ค้าขายและใช้ชีวิตอยู่ในพื้นที่เหล่านี้ ที่สะท้อนผ่านรูปแบบแปลงที่ดินและรูปแบบอาคารหน้าแคบและลึก ที่ผู้ออกแบบได้ค่อยๆ ขยับขยาย ปรับแต่ง ปิดผิวและเปิดเผยภาพประวัติศาสตร์ต่างๆ ผ่านองค์ประกอบทางสถาปัตยกรรมร่วมสมัย โดยที่ต้องไม่ไปรบกวนสัณฐานเดิมของอาคารหรือการพยายามที่จะลบภาพ ร่างของตัวอาคาร ‘Machiya’ ออกไป

อาคารใหม่ที่มีแนวลึกที่มากขึ้นหรืออาคารมีความสูงที่เพิ่มมากขึ้นจากสัดส่วนอาคารเดิมไม่มาก ได้สะท้อนถึงการเปลี่ยนแปลงและเปลี่ยนผ่านที่ไม่เร่งรีบของบริษัท Uchida Shoten ที่แม้จะบริบทภายนอกจะเปลี่ยนแปลงไปอย่างรวดเร็วแค่ไหน แต่การที่ผู้คน เศรษฐกิจ ชุมชนและสถาปัตยกรรม ได้มีการเชื่อมต่อและยึดโยงเข้าหากันเมื่อไหร่ การหน่วงเวลาในสังคมที่มีความซับซ้อนมากขึ้นเรื่อยๆ ก็เพียงพอจะช่วยประคับประคองระบบความสัมพันธ์ต่างๆ ให้สามารถวิวัฒน์ตัวเองได้ ตามกาละและเวลาอย่างมั่นคงและแข็งแรง









