Baan Vela บ้านที่ออกแบบจากการแก้ปัญหาพื้นที่ในเมืองที่หนาแน่น ด้วยการยืมทิวทัศน์ธรรมชาติและยกระดับคุณภาพชีวิต โดย PH/AD
TEXT: XAROJ PHRAWONG
PHOTO: DOF SKY|GROUND
(For English, press here)
สถาปนิกทุกมุมโลกนำเสนอถึงแนวทางการออกแบบบ้านในเมืองที่มีความหนาแน่นของเมืองใหญ่ไว้หลากหลายวิธี ทั้งแนวทางสร้างพื้นที่ส่วนตัวขึ้นภายใน แทนที่จะเปิดสู่พื้นที่ภายนอก หรือจะเป็นการตีความด้วยการดึงธรรมชาติเข้ามาสังสรรค์กับพื้นที่ภายใน ในยุคที่เทคโนโลยีก้าวหน้ามากขึ้นไปเรื่อยๆ เราอาจจะพบเจอการแก้ปัญหาที่ซับซ้อน หลากหลายมากขึ้น แต่ไม่ว่าจะเป็นการแก้ปัญหารูปแบบใดก็ตาม การเข้าใจถึงเรื่องพื้นฐานที่ใช้ในการออกแบบมาหลายศตวรรษก็ไม่อาจจะละทิ้งได้เลย

วิธีการสร้างสรรค์สถาปัตยกรรมบนพื้นที่จำกัดมากอย่างญี่ปุ่น มีเทคนิคที่เรียกว่า 借景 ‘ชัคเค’ คือการหยิบยืมทิวทัศน์ด้านหลังเข้ามาเป็นของตัวเอง แม้ว่าสถาปัตยกรรมจะมีขนาดเล็กบนพื้นที่จำกัด เทคนิคนี้จะใช้การเลือกที่จะเปิดด้วยระนาบกำแพงสูงเพียงตาที่สามารถปล่อยให้พื้นที่สวนขนาดเล็กในบ้านเชื่อมโยงกับทิวทัศน์ธรรมชาติข้างบ้านอย่างแนบเนียน เทคนิคนี้ช่วยแก้ปัญหาการเชื่อมโยงสถาปัตยกรรมเข้ากับธรรมชาติบนที่ดินแคบได้ดี

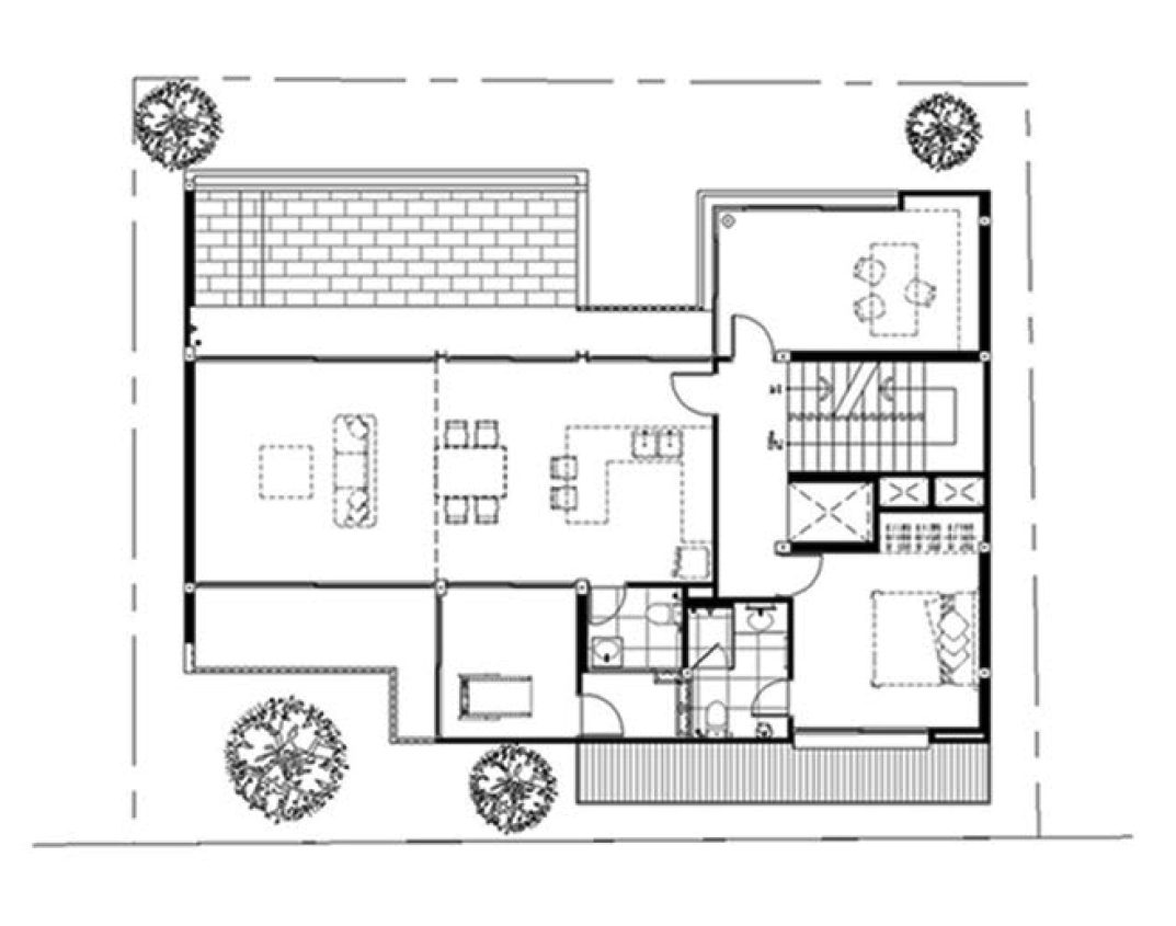
ในแนวคิดประเภทที่ใช้ประเด็นปัญหาเป็นสารตั้งต้นในการออกแบบสถาปัตยกรรม คือการใช้วิธีคิดแบบการตอบสนองและแก้ปัญหา (direct response and problem solving) เป็นการมองปัญหาของโจทย์ให้ออก จากนั้นสร้างกระบวนการแก้ปัญหาตามแต่ละบริบทที่สถาปัตยกรรมนั้นดำรงอยู่ เช่นเดียวกับ ‘บ้านเวลา’ ออกแบบสถาปัตยกรรมโดย PH/AD ที่ตั้งอยู่ในหมู่บ้านจัดสรรเดิมอายุหลายสิบปีย่านเสรีไทย ด้านหลังที่ดินติดกับสวนสาธารณะบึงกุ่ม เมื่อได้รับโจทย์ในการออกแบบ สถาปนิกได้ทำการสำรวจสภาพแวดล้อมโดยรอบด้วยการศึกษาที่ตั้งในมุมสูงจากบ้านข้างเคียง ทำให้เล็งเห็นถึงศักยภาพของทิวทัศน์ของสวนด้านหลัง
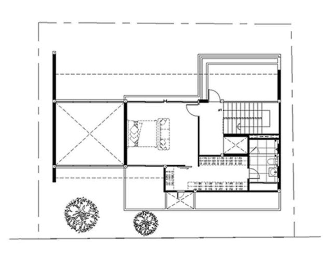
สถาปนิกนำเสนอถึงการแก้ปัญหาด้วยการดึงทิวทัศน์จากสวนด้านหลังที่มีโอกาสเปลี่ยนแปลงยากมาก ภาพที่เห็นคือเหนือระดับรั้วคือยอดไม้สูงราว 4 ชั้น จึงออกแบบให้พื้นที่ใช้สอยหลักของบ้านอยู่ที่ชั้นที่ 2-3 โดยให้ชั้นที่ 1 เป็นส่วนบริการ ห้องทำงาน ห้องแม่บ้าน งานระบบสระว่ายน้ำ การออกแบบบรรยากาศภายในบ้านเน้นผู้ใช้ให้พบปะกันเสมอ ห้องพักผ่อน สระน้ำ ถูกวางเป็นศูนย์กลางบ้านที่ชั้น 2 พื้นที่ส่วนนี้ออกแบบให้มีสเปซพิเศษแบบ double volume ผนังเป็นกระจกเปิดโล่งสูง 2 ชั้น ด้วยความสูงที่อยู่เลยรั้วบ้านด้านหลัง ทำให้ทิวทัศน์ของยอดไม้จากสวนสาธารณะบึงกุ่มถูกดึงเข้ามาเป็นส่วนหนึ่งของสเปซภายในบ้าน พร้อมกับยอดไม้เหล่านี้เป็นตัวกรองแสงแดดอันจัดจ้าจากทิศตะวันตกในยามบ่ายได้เป็นอย่างดี ภาพภายในห้องพักผ่อนหลักจึงเป็นคู่ตรงข้าม (positive and negative) ของภาพบ้านจัดสรรฝั่งตรงข้ามที่ตัดกับภาพธรรมชาติของสวน

แม้ว่าการดึงทิวทัศน์จากสวนข้างเคียงจะช่วยให้บ้านมีบรรยากาศที่ดี แต่เมื่อสำรวจไปยังตัวบ้าน เปลือกโดยรอบมีลักษณะทึบตัน เนื่องจากการออกแบบตามประโยชน์ใช้สอยจากส่วนที่เป็นห้องน้ำเพื่อความเป็นส่วนตัว แต่ห้องน้ำทุกห้องใช้วิธีแก้ปัญหาให้มีการระบายอากาศที่ดี พร้อมไปกับการรับแสงแดดเข้ายังภายในห้องน้ำเพื่อสุขอนามัยด้วยการสร้างคอร์ทขนาดเล็กแทรกระหว่างผนังภายนอกและผนังห้องน้ำ พร้อมกับเจาะช่องแสงห้องน้ำให้ระบายอากาศ รับแสงธรรมชาติ เปลือกอาคารจึงสะท้อนระบบการใช้สอย เมื่อต้องปิดเพื่อสร้างความส่วนตัว และเปิดหาท้องฟ้าเพื่อรับปรากฏการณ์ธรรมชาติ


ลักษณะการออกแบบบ้านนี้มีการแสดงถึงความชัดเจน ตรงไปตรงมาต่อการใช้สอยภายในสู่รูปทรงภายนอก ทำให้ส่งเสริมการเลือกใช้วัสดุจากธรรมชาติ จากการใช้หินวีเนียร์เป็นวัสดุหลักของบ้าน สถาปนิกใช้หินวีเนียร์ทั้งภายนอกสู่ภายในให้ลื่นไหลเป็นระบบเดียวกันทั้งบ้าน เมื่อมองจากภายในยังสามารถรู้สึกได้ถึงความต่อเนื่องของวัสดุ แต่เมื่อต้องการสื่อสารถึงการเปลี่ยนแปลงการใช้สอย จึงนำวัสดุอื่นเข้ามาแซมในแต่ละส่วนใช้สอย เช่นการใช้ไม้ผสมกับหินวีเนียร์ หรือการใช้กระเบื้องแต่ละชนิด กับห้องนอนต่างๆ กับหินวีเนียร์
หากการออกแบบคือการยกระดับให้ผู้คนมีคุณภาพชีวิตที่ดีขึ้นแล้ว เมื่อนั้นการออกแบบเป็นการแก้ปัญหามากไปว่าสไตล์ หรือการตกแต่งใดๆ







