Museum of Broken Relationships โดย STA Studio ที่เปลี่ยนอาคารเก่าในเชียงใหม่ให้กลายเป็นพื้นที่สะท้อนความเปราะบางของมนุษย์
TEXT: MONTHON PAOAROON
PHOTO CREDIT AS NOTED
(For English, press here)

Photo: Napat Pattrayanond
ถ้าใครมาเชียงใหม่และผ่านถนนท่าแพถนนเศรษฐกิจเก่าแก่ของเชียงใหม่เชื่อว่าคงคุ้นตากับอาคาร ‘หย่งเชียง’ อาคารอนุรักษ์ที่แต่เดิมถูกสร้างเพื่อเป็นร้านค้าและเก็บสินค้า ก่อนจะเปลี่ยนฟังก์ชันมาแล้วหลายรูปแบบทั้งธนาคารและ hostel จนผู้เช่ารายล่าสุดได้ปรับอาคารแห่งนี้เป็นพิพิธภัณฑ์ชื่อ Museum of Broken Relationships และเป็นสาขาที่ 2 ถัดจากสาขาแรกที่ประเทศโครเอเชีย

Photo: Napat Pattrayanond

Photo: Napat Pattrayanond
พิพิธภัณฑ์นี้ก่อตั้งโดย Olinka Vištica และ Drazen Grubisic ชาวโครเอเชีย หลังจากทั้งคู่เลิกรากันแล้วค้นพบว่ามีสิ่งของหลายอย่างในชีวิตที่เป็นสัญลักษณ์ของความรักที่จบลงไป และตั้งคำถามว่าจะทิ้งหรือจะทำอะไรกับสิ่งของเหล่านี้ดี? คงจะดีกว่าถ้าของเหล่านี้กลายเป็นงานศิลปะบอกเล่าเรื่องราวการสูญเสีย การเปลี่ยนแปลง หรือแม้แต่ความดีงามในชีวิต นั่นจึงเป็นจุดเริ่มต้นของแนวคิดในการเปิดรับบริจาคสิ่งของที่แฝงไปด้วยเรื่องราวของการจากลาจากหลายประเทศ ซึ่งของเหล่านั้นนอกเหนือจากเรื่องราวความสัมพันธ์ที่จบลง ยังเผยให้เห็นความหลากหลายของวิถีชีวิต การเมือง วัฒนธรรมและความเชื่อที่แตกต่างกันตามยุคสมัยและพื้นที่ของผู้คนที่มอบของเข้ามา โดยพิพิธภัณฑ์นี้เริ่มต้นในปี 2006 จากการเป็น traveling exhibition ก่อนจะมาตั้งเป็นอาคารถาวรในเมืองซาเกร็บ ประเทศโครเอเชียในปี 2010 ปัจจุบันกลายเป็นพิพิธภัณฑ์ที่มียอดผู้เข้าชมสูงสุดในเมืองซาเกร็บ และล่าสุดได้ขยายเปิดสาขาที่เชียงใหม่ปลายปี 2024 ที่ผ่านมา

Photo: Napat Pattrayanond
แต่อะไรเป็นจุดเริ่มต้นให้พิพิธภัณฑ์แห่งนี้เลือกเชียงใหม่เป็นที่ตั้งสาขาที่ 2? และการออกแบบปรับปรุงอาคารเก่าเพื่อให้ space ตอบรับกับแนวคิดเฉพาะตัวของพิพิธภัณฑ์มีที่มายังไง? เราได้นัดพูดคุยออนไลน์กับ อัศรินทร์ สงวนวงศ์วาน ตัวแทนจาก STA สำนักงานสถาปนิกที่ตั้งอยู่ที่ประเทศโครเอเชีย ร่วมกับภรรยา เพทรา ทิคุลิน ผู้รับผิดชอบออกแบบปรับปรุงอาคารและนิทรรศการ และ นุภาพ อัญญานุภาพ จาก Design Unit Studio ผู้รับผิดชอบงานกราฟิกที่จะมาพูดคุยถึงที่ไปและการออกแบบโครงการนี้กันแบบสบายๆ
จากซาเกร็บ สู่เชียงใหม่

Photo: Nuphap Aunyauphap
“จริงๆ มันเป็นเหตุบังเอิญมากๆ ตอนที่ผมเรียนต่อที่มิลานช่วงนั้นเดินทางไปๆ มาๆ ที่โครเอเชียด้วยเพราะ เพทราเป็นคนที่นี่และได้มีโอกาสไปดูพิพิธภัณฑ์นี้แล้วรู้สึกว่ามันเจ๋งดี เพราะของที่โชว์เป็นของธรรมดามากๆ แต่เรากลับใช้เวลาอยู่กับมันนานมาก เทียบกับพิพิธภัณฑ์ที่โชว์งาน art ทั่วไปที่บางครั้ง visual ของงานศิลปะชิ้นนั้นมันไม่ได้ดึงดูดเรา เราอาจจะเดินผ่านของสิ่งนั้นไปเลย แต่พอเป็นพิพิธภัณฑ์ที่ story ของแข็งแรงมากแม้ของที่โชว์จะเป็นแค่ปากกาหรือตุ๊กตาเรากลับใช้เวลากับมัน…เรา connect กับมัน นั่นเป็นจุดแรกที่เรารู้จักที่นี่”
อัศรินทร์เริ่มเล่าถึงที่มาที่ไปให้เราฟัง และบอกต่อว่าวันนึงไปทานอาหารที่ร้านอาหารไทยที่รู้จักกันและเจ้าของร้าน (คุณนุ้ย) ได้แนะนำให้รู้จักกับคุณ Olinka และคุณ Drazen เจ้าของพิพิธภัณฑ์ที่มาทานข้าวในวันนั้นพอดี และทางเจ้าของเล่าว่าเขาพึ่งกลับมาจากไปเที่ยวเชียงใหม่ เห็นแนวโน้มที่จะตั้งพิพิธภัณฑ์และเช่าอาคารไว้แล้วแต่ทางเขาไม่รู้จักใครเลยที่เชียงใหม่ พอจะแนะนำคนที่จะมาดูแลจัดการได้ไหม?

Photo: Nuphap Aunyauphap

Photo: Nuphap Aunyauphap
ตัวอัศรินทร์เคยมีประสบการณ์ออกแบบนิทรรศการมาบ้างที่ไทยจึงได้แนะนำคนรู้จักให้ ในตอนนั้นคิดเพียงแค่อยากจะช่วยเพราะชอบพิพิธภัณฑ์นี้และคงจะดีมากถ้าได้มาตั้งที่ไทย หลังจากนั้นทางเจ้าของเลยถามว่า “เห็นว่าคุณเป็นสถาปนิก อยากจะออกแบบโปรเจกต์นี้ไหม?” “ทำสิ! ทำไมจะไม่ล่ะ?” อัศรินทร์ตอบยิ้มๆ

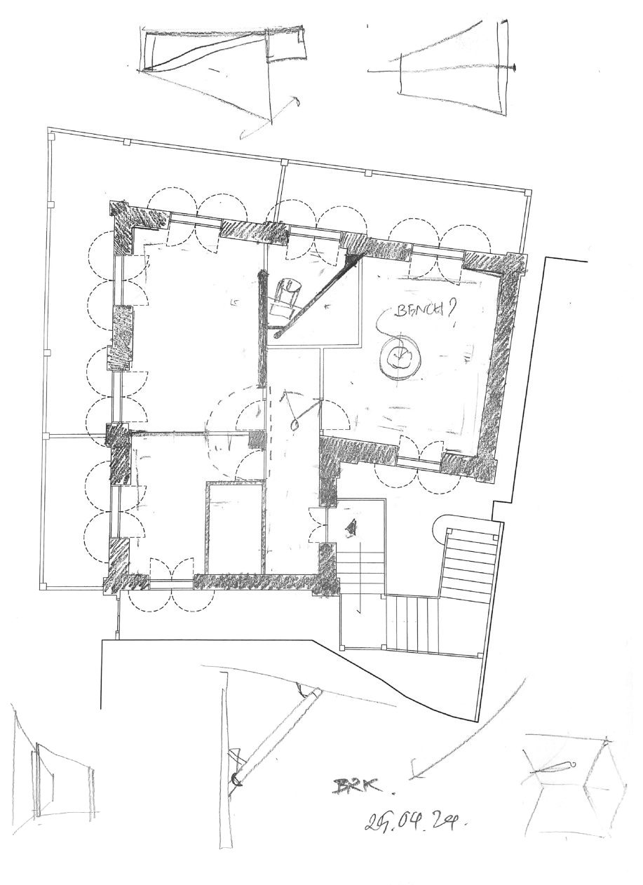
“ตอนที่เราได้ผังอาคารมา ผนังมันหนามาก 60 เซนติเมตร เหมือนเวลาผมออกแบบงานที่ยุโรป แต่เวลาเราทำโปรเจกต์ไทยผนังจะแค่ 10 เซนติเมตร และตัวอาคารเองก็เป็นเนื้อเดียวกับเนื้อเมืองยิ่งเหมือนการออกแบบอาคารในยุโรปเข้าไปอีก ซึ่งผมรู้สึกว่าสถานการณ์นี้มันเจ๋งดี การที่เขาเลือกอาคารที่มันดู institution มากๆ นั้นผมไม่เคยถามเขา (เจ้าของ) แต่ของเขาเป็นของที่มีความธรรมดาทั้ง casual และ personal ถ้าเอาของพวกนี้ไปจัดในสถานที่ที่ดูธรรมดามาก ความซีเรียสของมันจะหายไป เราก็เลยคิดว่ามันต้องอยู่ในตึกที่มันดูซีเรียสนะ เพราะที่ซาเกร็บเขาก็เช่าตึก classical มากๆ อยู่ในย่านราชการ พอคนเข้ามามันเลยดูจริงจังไม่ใช่ tourist trap” อัศรินทร์เสริม
สร้าง flow ของ space เพื่อให้ของทำงานกับคน

Photo: Nuphap Aunyauphap

Photo: Napat Pattrayanond
“เราดูว่าสิ่งไหนเป็นคาแร็กเตอร์ของอาคารนี้ที่ดูมีคุณค่า ซึ่งของที่เราเห็นประตูหน้าต่างลายประดับที่เป็นไม้สีเข้มตัดกับเนื้อปูนสีขาว ซึ่งเราคิดว่าถ้าใช้ใน interior ด้วยจะเป็นยังไง” อัศรินทร์ขยายประเด็นที่เขาเห็นว่าอาคารนี้สวยอยู่แล้วเลยไม่อยากไปแตะอะไรกับข้างนอกมาก
“ตอนที่รับบรีฟชั้น 1 เขาอยากได้ museum shop กับ lobby พอดูที่ตั้งอาคารเราอยู่ที่หัวมุมสามารถเข้าถึงได้จากถนนสองด้านเลยคิดว่ามันดีกว่าถ้า lobby สามารถเข้าได้สองทาง ในขณะเดียวกันก็ต้องมีวิธีการดีลกับ circulation ที่มันไม่ปกติ เพราะว่าถ้าเราเข้ามาตรงนี้ มันจะเข้ามาตรงมุมรูปตัว L ทำยังไงให้เราเข้านิทรรศการที่อยู่ที่ขาตัว L ทั้งสองด้านได้โดยไม่ต้องย้อนไปย้อนมาได้ เราคิดว่ามันน่าจะมีวิธีเล่นกับมุมตัวนี้โดยเปิดมุมสร้าง intervention อะไรสักอย่างเพื่อแสดงว่าในมุมตัวนี้มันจะเป็นทางเข้า” อัศรินทร์เล่าการแก้ปัญหาและสร้างโอกาสใหม่ให้กับ space

“พอเข้ามาในส่วนนิทรรศการเราจะเห็นผนังเอียงๆ ที่บิดองศาไปมา ซึ่งจริงๆ มันเป็นแนวคิดรวมๆ ของ STA เราพยายามจะสร้าง layer ให้กับตัวห้อง เพราะเวลาเข้ามาในห้องหนึ่งแล้วเรารู้ว่าผนังห้องมันจบตรงไหนแล้วเรารู้สึกว่าห้องมันเล็กจังเลย สิ่งที่เราพยายามจะทำคือทำผนังที่ลอยหรือมีองศานิดหนึ่ง หนึ่งคือเพื่อให้ความ rigid ของห้อง relax มากขึ้น สองคือทำให้เวลาเรามองไปที่ผนังที่ลอยอยู่จะเห็นว่าห้องมันไม่ได้จบตรงนั้น แต่มันมีอีก space นึงที่เราสามารถเข้าไปได้ และจินตนาการในหัวมันทำให้ห้องดูใหญ่กว่าปกติ”

Photo: Napat Pattrayanond
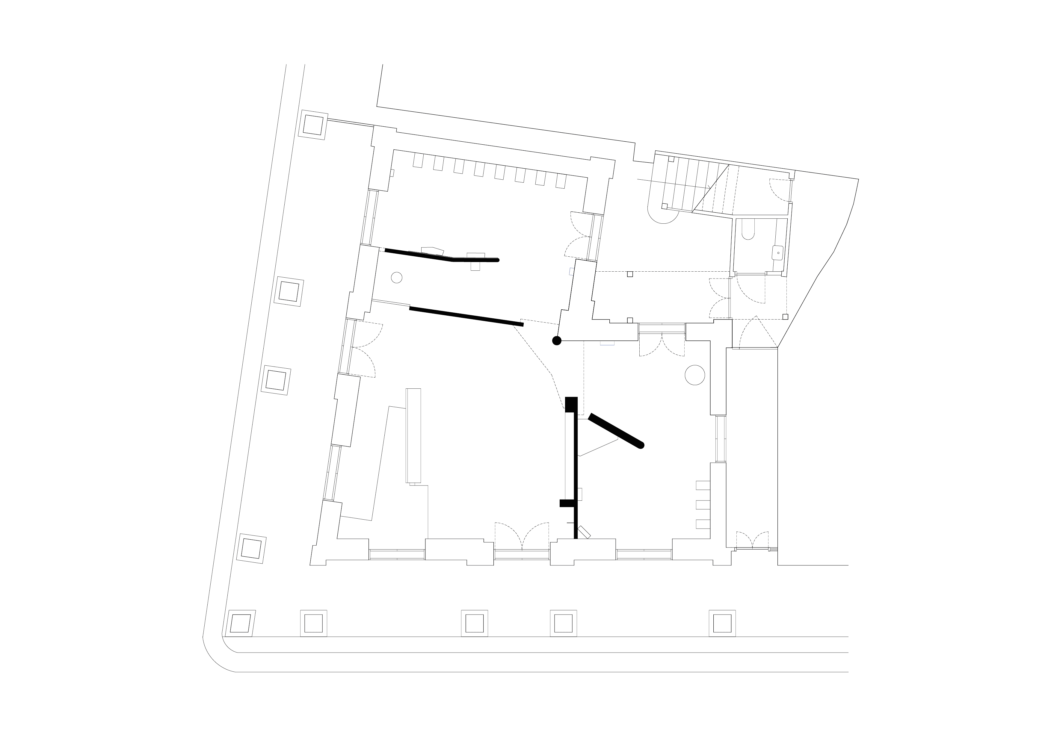
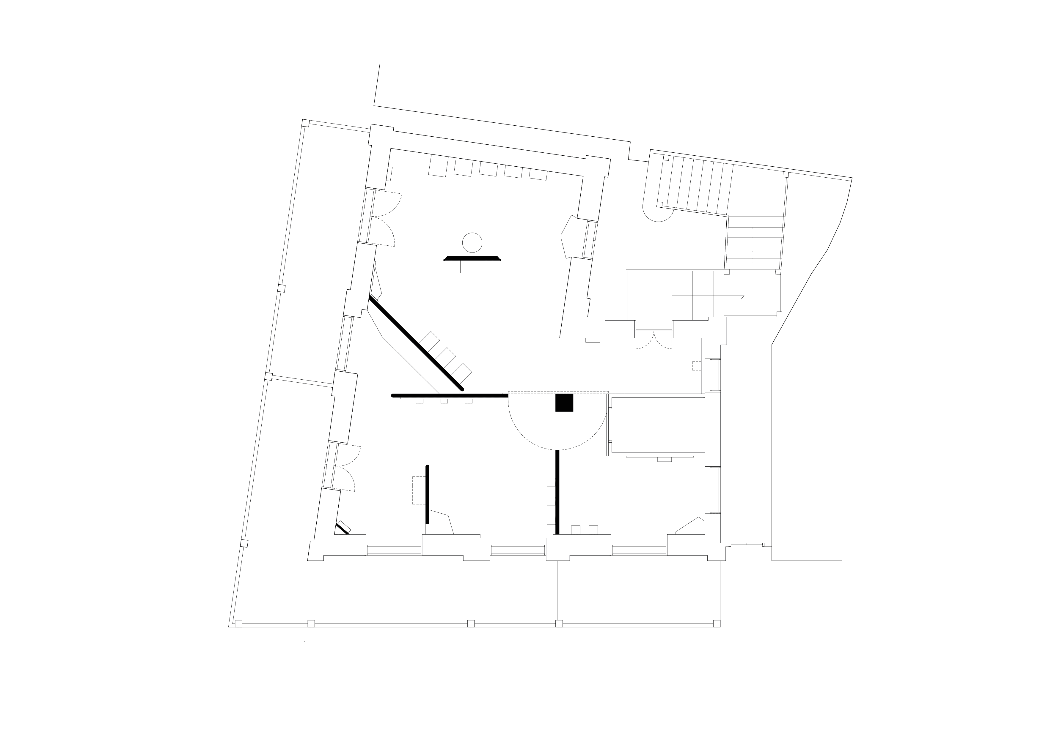
“ก่อนหน้าที่นี่เป็น hostel ห้องชั้น 2 ถูกแบ่งเท่าๆ กันเป็นห้องพัก เราเอาผนังออกเพื่อให้ห้องมีขนาดต่างกันเพื่อสร้างประสบการณ์ และใช้เทคนิคเดิมเหมือนชั้น 1 คือใช้ผนังที่ลอยอยู่กลาง space และเทคนิคการให้เข้าตรงมุมห้องเหมือนข้างล่าง แต่ตัวเชื่อมเราใช้ไม้แทน มันก็จะดูเข้ากับสภาพแวดล้อมของพื้นไม้ชั้น 2 และทำ form วงกลมให้ดูรู้เลยว่าอันนี้ของใหม่นะ”

Photo: Napat Pattrayanond
“เราเน้นเรื่องความ flow ของ space เพราะ space ค่อนข้างเล็กและข้อจำกัดของอาคารที่เป็นรูปตัว L ซึ่งเป็นไอเดียที่เราใช้ในทุกๆ โปรเจกต์ของ STA ยิ่งใน space ที่เล็กมันยิ่ง work โปรเจกต์นี้แสดงผลออกมาชัดเพราะมันเป็นการสร้าง space ที่ช่วยขับของทำให้เด่นขึ้น ปล่อยให้ emotional ของสิ่งของทำงานกับคน… ผมคิดว่าของเอาคนอยู่”
space & graphic สำหรับ ‘ของธรรมดา แต่เรื่องราวแข็งแรง’

Photo: Nuphap Aunyauphap
“ถ้าเป็นงาน object ศิลปะทั่วไปตัว tag ข้อมูลจะเรียบที่สุดหรืออยู่ในจุดที่เหมือนไม่มีตัวตนเพราะ object ควรจะเด่นซึ่งงานนี้ตัวเรื่องราวนั้นสำคัญทำให้ tag มันต้องเด่นขึ้นมา แต่ผมก็ไม่อยากให้กราฟิกมันตะโกน อยากให้มันสนับสนุนตัว space มากกว่า” นุภาพผู้รับผิดชอบงานกราฟิกอธิบายความเฉพาะตัวของโครงการ

Photo: Nuphap Aunyauphap

Photo: Nuphap Aunyauphap
“ตอนนั้นเราได้ทดลอง tag หลายแบบมากทั้งที่ถูกตัดถูกฉีก จนกระทั้งไปถึงจุดหนึ่งเราเห็นแสงเงาของ tag บนกำแพง แล้วจึงนึกถึงการใช้กระดาษสะท้อนแสงด้านหลัง tag ที่จะสะท้อนสีลงบนพื้นสีขาว แนวคิดนี้เรารู้สึกว่ามันลงตัวดีเพราะเนื้อหาทั้งหมดมันมีอารมณ์อยู่ในนั้น ของบางอย่างก็จบแฮปปี้ บางอย่างก็รุนแรงมาก สีต่างๆ เลยสื่ออารมณ์ออกมาเป็น visual ดี และไม่ตรงไปตรงมาเกินไปเทียบกับ visual ของการฉีกขาด”


Photo: Nuphap Aunyauphap
ส่วนงาน logo และป้าย banner หน้าอาคารนุภาพเล่าว่า “เราลองหลายแบบเหมือนกันแต่ตัวพิพิธภัณฑ์ของที่นั่น (ซาเกร็บ) identity มันแข็งแรงมาก เขาก็อยากจะให้ใช้รูปแบบเดียวกันปรับเปลี่ยนได้นิดหน่อย ส่วนสีหลักที่ใช้กับพิพิธภัณฑ์ที่โน่นเป็นสีม่วง จาก research ของเราก็ได้สีชมพูที่ถูกใช้ใน pop culture ของไทยและเป็นโทนสีที่ใกล้กับสีม่วง แล้วมันก็เข้าบริบทของที่ตั้งรอบๆ ตัวอาคารด้วยที่จะมีสีหลังคาวัดกับป้ายของอาคารอื่นที่ดูฉูดฉาด เราเคยเสนอ option ทำเป็นขาวๆ เรียบๆ แต่พอวางเทียบกับรอบๆ อาคารจะหายไปเลย การที่ป้าย banner สีชมพูหน้าอาคารมันทำให้อาคารนี้ดูมีชีวิตชีวาขึ้น”

Photo: Napat Pattrayanond

Photo: Nuphap Aunyauphap
ทั้งนุภาพและอัศรินทร์ ทิ้งท้ายว่าจากประสบการณ์ทำงานออกแบบนิทรรศการ content มักจะออกมาวินาทีสุดท้ายเสมอทำให้คุณภาพของกราฟิกนั้นคุมได้ยาก ซึ่งต้องขอบคุณข้อมูลจากเจ้าของที่มีไว้อยู่แล้วทำให้ทางทีมสถาปนิกและกราฟิกทำงานคู่ขนานกันแต่แรก แล้วการที่ทีมเราขอลองทำอะไรใหม่ๆ ไม่ใช้ format กราฟิกเดิมที่มีอยู่แล้วแบบที่ซาเกร็บ ทำให้ทางเจ้าของแฮปปี้มากจนตอนนี้ได้เอารูปแบบกราฟิกใหม่ของสาขาเชียงใหม่ไปปรับใช้กับพิพิธภัณฑ์ที่ซาเกร็บด้วย

Photo: Nuphap Aunyauphap
ผู้เขียนขอยืนยันว่าแค่อ่านหรือดูภาพไม่เท่าได้รับประสบการณ์จริง หวังว่าเรื่องราวที่พวกเรานั่งคุยกันในวันนี้จะชักชวนให้คุณลองหาโอกาสมาชม Museum of Broken Relationships ค่อยๆ เดินดูใช้เวลากับ space เสพเรื่องราวของแต่ละชิ้น ปล่อยให้เรื่องราวเหล่านั้นทำงานกับเราเพื่อรับประสบการณ์แปลกใหม่ด้วยตัวคุณดูสักครั้ง

Photo: Napat Pattrayanond 










