The Ground โปรเจกต์สถาปัตยกรรมที่ FATTSTUDIO ออกแบบให้แต่ละอาคารสะท้อนตัวตนเฉพาะ โดยไม่ต้องยึดติดกับคอนเซ็ปต์เดียวกัน
TEXT: NATHATAI TANGCHADAKORN
PHOTO: PANORAMIC STUDIO
(For English, press here)
The Ground เป็นโปรเจกต์ที่ตั้งอยู่บนถนนประดิษฐ์มนูธรรมในโซนที่คนทั่วไปรู้จักว่า ‘ย่านเลียบด่วน’ ภายในโปรเจกต์มีอาคารทั้งหมด 4 หลัง แยกตามฟังก์ชันของตัวเอง โดยด้านหน้าเป็นร้านอาหารขนาด 100 ที่นั่ง 2 ร้าน หนึ่งในนั้นพ่วงมาด้วยบาร์ขนาดกะทัดรัด ส่วนด้านในสุดเป็นคาเฟ่หลังน้อยที่มีพื้นที่ semi-outdoor ให้นั่งจิบกาแฟรับลมธรรมชาติ ซึ่งนอกจาก FATTSTUDIO จะมาเป็นผู้ออกแบบสถาปัตยกรรมแล้ว งานนี้ยังได้ Paradigm Shift + มาเสริมในส่วนของงานออกแบบภายใน รวมถึงมี Kernel Design เป็นผู้ออกแบบภูมิทัศน์ให้อีกด้วย


เมื่อมองจากภายนอก รูปลักษณ์ภายนอกของอาคารทั้ง 4 หลัง ใน The Ground นั้นเต็มไปด้วยจุดเด่นที่แตกต่างกัน ต่อมาพอมีโอกาสได้คุยกับ FATTSTUDIO แล้ว ผู้เขียนก็พบว่ามันต้องผ่านการ ‘ผจญภัย’ หน้างานมาไม่ใช่น้อย ซึ่งเป็นเรื่องทั่วไปในการประกอบวิชาชีพสายนี้นี่แหละ แต่จะประคองไปจบที่ตรงไหนก็แล้วแต่นักออกแบบ โดยความบันเทิงของโปรเจกต์ pet-friendly นี้คือแต่ละอาคารไม่ได้ถูกออกแบบพร้อมกันทั้งหมดภายใต้คอนเซ็ปต์เดียว
“ขอแค่ทำให้ The Ground ไม่กลายเป็นสวนสนุกได้ ผมก็ถือว่าโปรเจกต์นี้สำเร็จแล้ว” FATTSTUDIO กล่าวกับเราแบบทีเล่นทีจริง

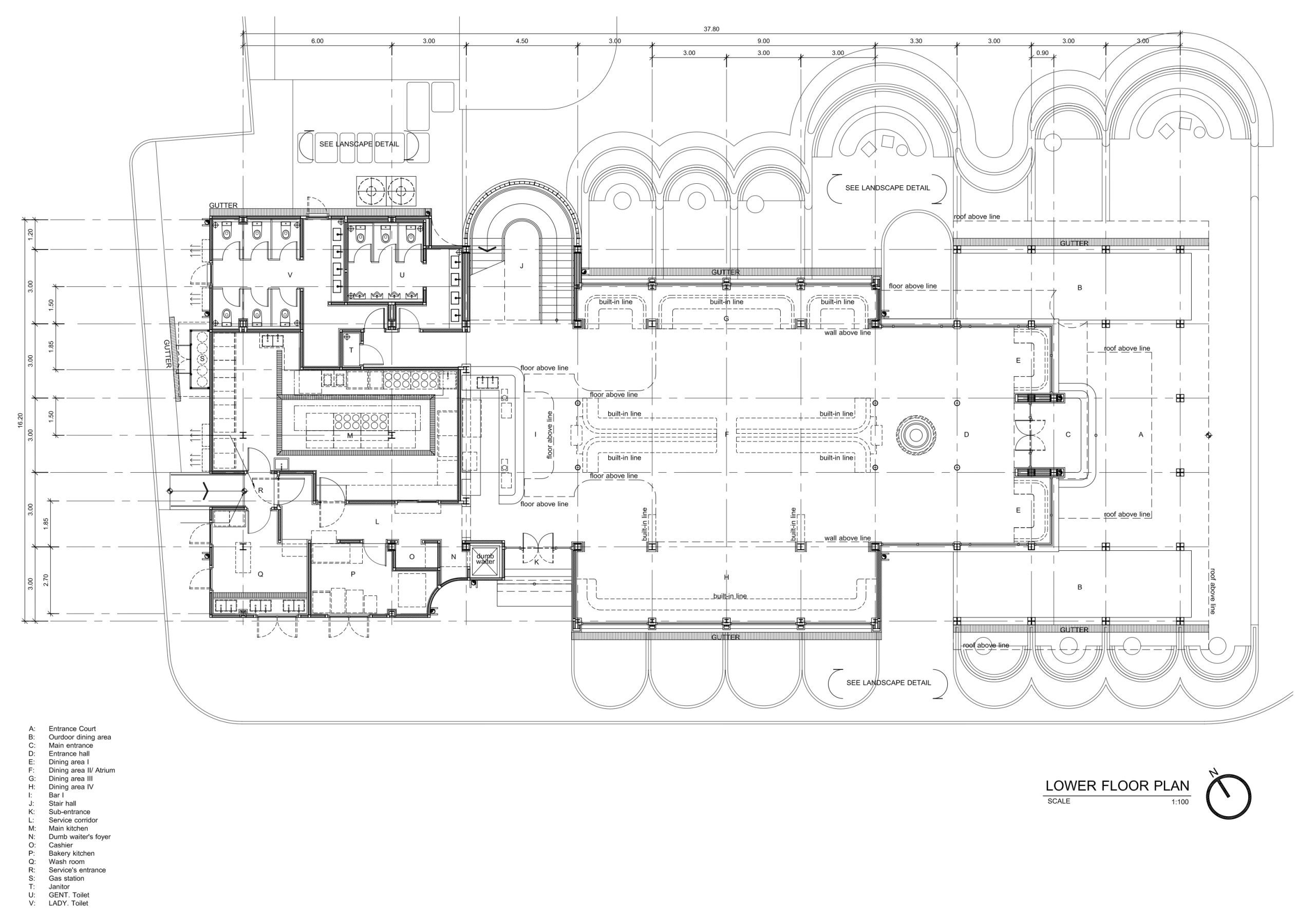
งานออกแบบได้เริ่มต้นขึ้นจาก 2 อาคารหลักซึ่งเป็นร้านอาหารที่เปิดให้บริการในช่วงกลางวัน ซ้ำยังมีขนาดใกล้เคียงกันทั้งคู่ อาคารที่วางตัวอยู่ด้านหน้าคือร้าน Cin Cin ที่เสิร์ฟอาหาร fusion สไตล์อิตาเลียน ถัดมาด้านในติดกับ drop-off หลักของโครงการคือร้าน Mawari ที่เน้นชาบูและปิ้งย่างสไตล์ญี่ปุ่น

drop-off หน้า Mawari เชื่อมต่อกับ Cin Cin
เจ้าของโครงการมีภาพในหัวเป็นทุนเดิม และตั้งโจทย์ให้ที่นี่เป็นจุดมุ่งหมายของคนในชุมชนซึ่งพร้อมพรักด้วยความ Instagrammable เพื่อดึงดูดขาจรไปในตัว ทีมออกแบบจึงต้องทำงานย้อนกลับด้วยการนำรูปลักษณ์ภายนอกมาตีความเป็นสาระของสถาปัตยกรรมให้ได้ ดังนั้นแม้ทั้งคู่จะมีสไตล์แตกต่างกันอย่างสิ้นเชิง แต่ก็ได้รับการไตร่ตรองบนหลักการเดียวกัน นั่นคือการคุยกันในทีมด้วยตัวเลข จังหวะหน้าต่างแบบนี้เป็นอย่างไร สัดส่วนนี้มีค่าเท่าไหร่ มากกว่าถกเถียงเรื่องความสวยงาม

Cin Cin เมื่อมองจากถนน
Cin Cin คอนเซ็ปต์แรกเป็นโถงใหญ่สำหรับนั่งรับประทานอาหารที่เปิดรับแสงธรรมชาติ ผู้ออกแบบจึงยึดคำว่า ‘โถง’ เป็นหลัก ผังสี่เหลี่ยมผืนผ้าเปิดส่วนที่นั่งรับประทานชั้นหนึ่งให้โปร่งโล่งทั้งหมด เมื่อเดินเข้าไปจนสุดทางจึงจะพบส่วนเซอร์วิสอย่างครัว ห้องน้ำ และบันไดซึ่งนำทางขึ้นไปสู่ชั้นสองที่ส่วนตัวมากกว่า กล่องสีขาวถูกเจาะ void เป็นซุ้มโค้งพลิกไปมา และเซาะร่องบนผนังเพื่อเพิ่มมิติให้อาคารอย่างสวยงามแม้แต่ด้านหลังเองก็ตาม

Image courtesy of FATTSTUDIO
ถึงผลลัพธ์จะไม่อาจแสดงประสิทธิภาพได้เต็มร้อย ทว่าแท้จริงแล้วการออกแบบ Cin Cin ถูกคิดถึงบริบทของเมืองร้อนด้วย ด้านยาวของอาคารหันรับแสงแดดทิศตะวันตกเฉียงใต้-ตะวันออกเฉียงเหนือเต็มๆ บนหลังคา flat slab นอกจากระบบ VRV แล้ว ในทีแรกจึงได้รับการออกแบบให้มีคอสองอีกชั้นเพื่อระบายอากาศร้อนออกไป ทว่าภายหลัง fin ระบายอากาศถูกเปลี่ยนเป็นแผ่น polycarbonate ส่วนนี้จึงกลายเป็นเพียง skylight ที่มอบแสงสว่างพร้อมความร้อนให้อาคาร และถึงจะเป็นกล่องไร้ชายคา หน้าต่างของอาคารล้วนถูก offset เข้ามาจากผนัง 1.2 เมตร เพื่อสร้างร่มเงาเท่าที่จะทำได้

ด้าน Mawari แสดงตัวด้วยหลังคาจั่วผืนใหญ่มหึมาเหมือนเอาคืนที่ Cin Cin ไม่อาจมี ชายคาทอดตัวลงมาเป็นกระโปรงรอบอาคาร โดยระยะยื่นกว่า 4 เมตรนั้นมีแนว ‘ตะเข็บ’ รับแสงที่ผู้ออกแบบได้แรงบันดาลใจมาจากตะเข็บชายแขนเสื้อแบบญี่ปุ่น ก่อนที่กระโปรงนั้นจะถูกยกขึ้นเป็นแนวโค้งตามไฮไลต์แต่ละด้านของอาคาร ได้แก่ ทางเข้าร้าน จุด drop-off และห้องทานอาหารแบบ private

Mawari

Mawari
จากบทสนทนากับ FATTSTUDIO ทั้งองค์ประกอบอย่างซุ้มโค้งและสัดส่วนของร้านนี้หยิบยกมาจากสถาปัตยกรรมประเภท ‘วัด’ ที่มีความโอ่โถงสอดคล้องกับขนาดของร้าน อาคารแนวยาวแบ่งออกเป็น 2 ฝั่ง ซึ่งเชื่อมด้วยส่วนเซอร์วิสตรงกลาง ฝั่งปิ้งย่างถูกยกพื้นขึ้นเพื่อติดตั้งงานระบบไว้ข้างใต้ เหนือศีรษะใช้โคมไฟแขวนเพดานปรับการรับรู้ของผู้มาใช้บริการให้ไม่ต้องพบเจอกับพื้นที่ว่างเปล่าสูงจรดเพดาน อีกด้านสำหรับนั่งรับประทานชาบูก็พลิกแพลงมาใช้อีกวิธี โดยด้านนี้มีครัวเปิดที่วางตัวอิงผนังเป็น main focus ทำหน้าที่คล้ายพระประธานในอุโบสถ ล้อไปกับลักษณะของสเปซ

Image courtesy of FATTSTUDIO
ย้อนกลับมาที่บาร์ลับซึ่งแอบเกาะอยู่ด้านหลัง Cin Cin กันบ้าง บาร์ Turaz นี้มีขนาดไม่ใหญ่นักและเน้นความเป็นส่วนตัว ในทีแรก FATTSTUDIO มองไปถึงภาพสเปซที่ปราศจากโครงสร้างรบกวน waffle slab จึงเป็นหลังคาที่พวกเขานำเสนอไปกับเสาสี่ต้น ก่อนจะถูกเปลี่ยนเป็น flat slab จนสุดท้ายมาจบงานที่ lean to หรือเพิงหมาแหงนที่เราคุ้นเคยกัน โดยมี fun fact เล็กน้อยว่า ตอนตัดสินใจเปลี่ยนหลังคามาเป็น lean to กระบวนการก่อสร้างก็ไปถึงการเทคอนกรีต flat slab แล้ว ผลลัพธ์ที่ได้คืออาคารแอบมี ‘กรอบ’ อยู่อีกชั้นใต้หลังคาตัวจริง


Turaz Bar

Turaz Bar
ข้างๆ กันที่ผู้ใช้งาน Turaz แวะเวียนมาแชร์พื้นที่ในยามค่ำคืนคือคาเฟ่ BEANS BOY ที่เข้ามาอยู่ในรายการออกแบบเป็นคิวสุดท้าย ร้านกาแฟซึ่งอยู่ลึกที่สุดนี้ตั้งอยู่ตรงจุดปลายแนวสายตาจาก drop-off พอดี ความสูงของร้านจึงต้องถีบตัวขึ้นไปพอๆ กับอาคารสองชั้น ไม่ให้ภาพรวมของโปรเจกต์เสียสมดุลหรือเว้าแหว่งไป โครง truss บนหลังคาแบกรับระยะยื่นรอบอาคารทั้ง 4 ทิศ เพื่อสร้างร่มเงาให้กับที่นั่งภายนอกซึ่งมีจำนวนพอๆ กับที่นั่งด้านใน
จุดเด่นทั้ง 2 จุดของคาเฟ่ที่ก่อร่างขึ้นมาจากก้อนอิฐเองก็เป็นหนึ่งในความปังเอิญของโปรเจกต์นี้ เดิมทีผนังโค้งถูกวางไว้เป็นพื้นที่นั่งภายนอก ส่วนปล่องอิฐที่สูงชะลูดขึ้นไปนั้นจะเป็นห้องน้ำ ทว่าหลังการปรับปรุงเปลี่ยนแปลงหลายครั้ง พวกมันก็กลับกลายมากเป็น featured element ของอาคารให้ผู้คนได้ถ่ายรูปกันอย่างสวยงามไปแทน


ในมุมของ masterplan โปรเจกต์นี้มีปัญหาหลายจุดทั้งด้านความสัมพันธ์และระยะห่าง เพราะแต่ละอาคารได้รับการคิดคนละช่วงเวลา และปัญหาก็ไม่ได้ขึ้นอยู่กับคนแค่สองคนเหมือนความสัมพันธ์ของมนุษย์ ช่องว่างระหว่าง Cin Cin และ Turaz ที่คาดหวังให้ผู้ใช้มายืนสูบบุหรี่อย่างเงียบสงบก็กลายเป็นทางเข้ารองของโครงการ ส่วนช่องว่างระหว่าง Turaz และ BEANS BOY ซึ่งควรจะเป็นห้องน้ำพนักงานหลังโครงการตามปกติ ก็ต้องถูกเสกให้กลายเป็นทางเข้าหลีกอีกทางหนึ่งด้วยการเพิ่มเติม façade แสนสวยเข้าไปไม่นานก่อนสร้างเสร็จ ภายในระยะเวลาที่ทีมงานทำงานราวกับเนรมิตเอา

(ซ้ายไปขวา) BEANS BOY, Turaz และห้องน้ำที่ได้รับการต่อเติม façade เป็นทางเข้ารอง
อย่างไรก็ตาม สุดท้ายแล้วคนที่จะตัดสินโปรเจกต์นี้ได้คงมีเพียงผู้ใช้งาน ทางเดินที่ลาดต่อเนื่องกันทั้งหมด เงาที่ร่มรื่น ฟังก์ชันที่สมเหตุสมผลจะแวะเวียนมาใช้จ่าย ล้วนเป็นองค์ประกอบของ The Ground ที่ทำงานร่วมกันเพื่อตอบโจทย์การใช้งานในฐานะ community space ได้สำเร็จลุล่วง และแม้ข้อจำกัดต่างๆ และความหลากหลายของร้านรวงในโครงการจะเต็มไปด้วยความท้าทายของการพาสถาปัตยกรรมไปในทิศทางเดียวกัน (คล้ายกับที่ผู้ออกแบบได้เล่าว่าจะออกมาคล้ายกับสวนสนุกที่มีแนวทางการออกแบบอันปนเปกันแบบ Eclectic Design) แต่มองในมุมหนึ่ง The Ground แห่งนี้ก็คล้ายกับบอกเล่าตัวเองในหลากหลายตัวตนที่แค่ตัวตนก็ได้หาจุดกึ่งกลางที่สถาปัตยกรรมแต่ละชิ้นจะได้เป็นตัวของตัวเองในพื้นที่และบริบทที่แบ่งกันร่วมกันในท้ายที่สุด












