เมื่อผ้าใบก่อสร้างเปลี่ยนพื้นที่วัดปราสาทให้กลายเป็นสภาวะศักดิ์สิทธิ์และสงบนิ่งระหว่างการบูรณะ หนี่งในกรณีศึกษาที่สองสถาปนิก เจอร์รี่ หง (Jenchieh Hung) และ กุลธิดา ทรงกิตติภักดี จาก HAS design and research ใช้ในการสำรวจมิติใหม่ของพื้นที่และความศรัทธาในบริบทไทย
TEXT: JENCHIEH HUNG & KULTHIDA SONGKITTIPAKDEE
PHOTO: HAS DESIGN AND RESEARCH
(For English, press here)
เจอร์รี่ หง (Jenchieh Hung) และ กุลธิดา ทรงกิตติภักดี จาก HAS design and research ได้นำเสนอตัวอย่างอันโดดเด่นของการวิวัฒน์ทางสถาปัตยกรรม ณ จุดที่ประเพณีและนวัตกรรมมาบรรจบกันอย่างงดงาม แม้การก่อสร้างจะยังดำเนินอยู่แต่การประกอบพิธีและความศรัทธายังคงดำเนินไปอย่างสงบ พื้นที่ศักดิ์สิทธิ์แห่งนี้จึงเป็นที่พึ่งทางใจท่ามกลางป่าคอนกรีตของเมืองใหญ่ ซึ่งแนวคิดนี้สอดคล้องกับเรื่องราวที่ทั้งคู่ได้ถ่ายทอดไว้ในหนังสือ Chameleon Architecture: Shifting / Adapting / Evolving
วัดปราสาท วัดเก่าแก่และโบราณสถานในจังหวัดนนทบุรี ซึ่งอยู่ไม่ไกลจากกรุงเทพฯ ถือเป็นจุดหมายสำคัญทางจิตวิญญาณและวัฒนธรรมที่มีทั้งชาวไทยและผู้มาเยือนจากต่างประเทศมาเยี่ยมชม วัดแห่งนี้ดึงดูดผู้แสวงบุญซึ่งมองหาการเชื่อมโยงกับสิ่งศักดิ์สิทธิ์และมรดกทางวัฒนธรรมอย่างลึกซึ้ง ขณะที่ในจังหวัดนนทบุรีเองเต็มไปด้วยวัดที่มีคุณค่าทางประวัติศาสตร์ ได้สร้างสภาพแวดล้อมอันอุดมสมบูรณ์สำหรับการสำรวจและไตร่ตรองทางจิตวิญญาณ โดยวัดปราสาทโดดเด่นด้วยความงดงามทางสถาปัตยกรรมที่ผสานเอกลักษณ์ไทยดั้งเดิมเข้ากับความสงบเงียบ อันชวนให้ผู้มาเยือนทั้งศรัทธาและใคร่รู้ดื่มด่ำในบรรยากาศแห่งการสำรวมใจ


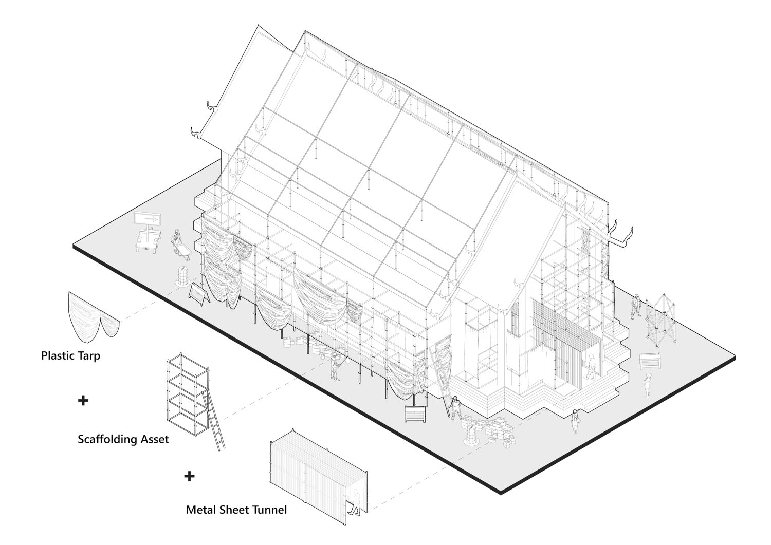
สามปีก่อน สองสถาปนิก เจอร์รี่ หง และ กุลธิดา ทรงกิตติภักดี แห่ง HAS design and research เดินทางไปยังวัดปราสาทเพื่อทำการศึกษาและบันทึกข้อมูล พวกเขาหลงใหลในสัดส่วนของพื้นที่ การออกแบบหลังคา และลวดลายบนผนังอาคารที่ประณีตงดงาม ซึ่งสะท้อนคุณค่าที่ไร้กาลเวลาและกลมกลืนกับสภาพแวดล้อม การบันทึกในครั้งนั้นเผยให้เห็นอาคารที่ไม่เพียงสะท้อนรูปทรงอันศักดิ์สิทธิ์แต่ยังเป็นมรดกทางวัฒนธรรมที่มีชีวิตอยู่คู่กับผู้คนมากว่า 400 ปี เมื่อทั้งสองกลับไปยังวัดอีกครั้งในอีกสามปีต่อมา พวกเขาก็พบว่าวัดกำลังอยู่ระหว่างการบูรณะ อาคารอันงดงามถูกล้อมด้วยนั่งร้านและคลุมด้วยผ้าใบสีดำและสีฟ้าขาว ในความรู้สึกนั้นวัดปราสาทเหมือนอยู่ในภาวะหยุดนิ่งราวกับถูกแช่แข็งกลางกระบวนการฟื้นฟู

ท่ามกลางความวุ่นวายที่เห็นได้ชัดกลับมีประสบการณ์ที่ไม่คาดคิดรอผู้มาเยือนอยู่ เมื่อเดินเลียบข้างอาคารจะพบทางเดินยาวทอดตัวจากภายในวัด พาดผ่านนั่งร้านและผ้าใบคลุมพื้นที่ ในแวบแรกอาจดูเหมือนพื้นที่ก่อสร้างแต่กลับให้ความรู้สึกคล้ายถ้ำธรรมชาติหรืออุโมงค์ศักดิ์สิทธิ์อย่างน่าประหลาด ทางเดินที่ทอดยาวนี้ชวนให้เกิดการสำรวมใจและไตร่ตรองทางจิตวิญญาณท่ามกลางความวุ่นวายของเมือง ภายในพื้นที่นั้นถูกเปลี่ยนแปลงอย่างละเอียดอ่อนแต่ทรงพลัง ผ้าใบก่อสร้างซึ่งปกติใช้ป้องกันฝุ่นระหว่างงานก่อสร้าง กลับถูกปรับจินตนาการให้กลายเป็นผนังที่ใช้งานได้และเต็มไปด้วยความศักดิ์สิทธิ์ แม้งานบูรณะยังดำเนินอยู่ผู้ประกอบพิธียังคงทำกิจกรรมของตนได้อย่างสงบ พื้นที่ศักดิ์สิทธิ์ชั่วคราวนี้สะท้อนให้เห็นว่า วัดปราสาทยังคงมีบทบาทสำคัญในภูมิทัศน์เมืองที่หนาแน่น มอบความสงบและเป็นที่พึ่งทางจิตใจแม้ในช่วงเวลาที่อาคารกำลังฟื้นฟูก็ตาม


การเปลี่ยนแปลงอันน่าทึ่งนี้สะท้อนให้เห็นว่าวัดปราสาทยังคงมีชีวิตทางจิตวิญญาณแม้ในช่วงเวลาที่ร่างกายทางกายภาพกำลังเปลี่ยนแปลง การใช้วัสดุง่ายๆ ที่หาได้ในท้องถิ่น เช่น ผ้าใบ เพื่อยังคงไว้ซึ่งการปฏิบัติทางศาสนา แสดงถึงสถาปัตยกรรมที่ปรับตัวตอบสนองทั้งความต้องการด้านการใช้งานและความศักดิ์สิทธิ์ได้อย่างสมดุล นอกจากนี้ยังสะท้อนถึงความอ่อนไหวต่อสังคมที่การแทรกแซงเพียงเล็กน้อยก็สามารถสร้างผลลัพธ์อันลึกซึ้งได้ สำหรับ หง และ ทรงกิตติภักดี (HAS) การวิวัฒนาการชั่วคราวนี้สะท้อนความสัมพันธ์ระหว่างมนุษย์และจิตวิญญาณได้อย่างชัดเจน คือการสร้างพื้นที่ที่มีความหมาย ปรับตัวได้ และเคารพอดีตที่พร้อมก้าวไปสู่อนาคต กระบวนการบูรณะวัดปราสาทจึงไม่ใช่เพียงการปรับปรุงโครงสร้างทางกายภาพแต่เป็นการวิวัฒน์ทางจิตวิญญาณ ท่ามกลางจุดบรรจบระหว่างความศักดิ์สิทธิ์และประวัติศาสตร์ วัดปราสาทยืนหยัดเป็นสัญลักษณ์สำหรับผู้แสวงหาที่พึ่งทางใจและความหมายในโลกที่เปลี่ยนแปลงอย่างรวดเร็ว ความสามารถของวัดในการรักษาแก่นแท้แห่งความศักดิ์สิทธิ์ท่ามกลางการเปลี่ยนแปลงจึงเป็นตัวอย่างอันทรงพลังที่สถาปัตยกรรมสามารถวิวัฒน์ก้าวต่อไปได้โดยไม่สูญเสียจิตวิญญาณของตน

เนื้อหาในบทความนี้เป็นส่วนหนึ่งจากหนังสือ Chameleon Architecture: Shifting / Adapting / Evolving เขียนโดย Jenchieh Hung & Kulthida Songkittipakdee จาก HAS design and research สามารถสั่งซื้อได้ที่: https://art4d.com/product/chameleon-architecture
facebook.com/hasdesignandresearch
instagram.com/has.design.and.research
















