ไม้ แสง และจังหวะของเวลา Muxiang Ninghua Flooring Experience Hall จากเมืองหูโจว ประเทศจีน พาเข้าใจวัสดุไม้ผ่านโชว์รูมทรงครึ่งวงกลม
TEXT: PHARIN OPASSEREPADUNG
PHOTO: HUA XUETAO AND MA YIZHOU
(For English, press here)
Muxiang Ninghua Flooring Experience Hall คือพื้นที่ที่ทำให้การเดินชมโชว์รูมไม้ ไม่ได้เป็นเพียงการดูสินค้า แต่กลายเป็นประสบการณ์ที่ค่อยๆ พาเราเดินเข้าสู่โลกของจังหวะ แสง และเรื่องราวของธรรมชาติ โดยมีวัสดุหลักอย่าง ‘ไม้’ เป็นตัวนำเรื่อง

โชว์รูมแห่งนี้ตั้งอยู่ในเขต Nanxun เมืองหูโจว มณฑลเจ้อเจียง ประเทศจีน และได้รับการออกแบบโดย PUSH DESIGN สตูดิโอออกแบบภายในจากหางโจว ที่ตั้งใจเปลี่ยนพื้นที่ขนาด 900 ตารางเมตรให้กลายเป็นพื้นที่เล่าเรื่องของ ‘ไม้’ ผ่านประสบการณ์ที่ทั้งสัมผัสได้ มองเห็นได้ และรู้สึกได้

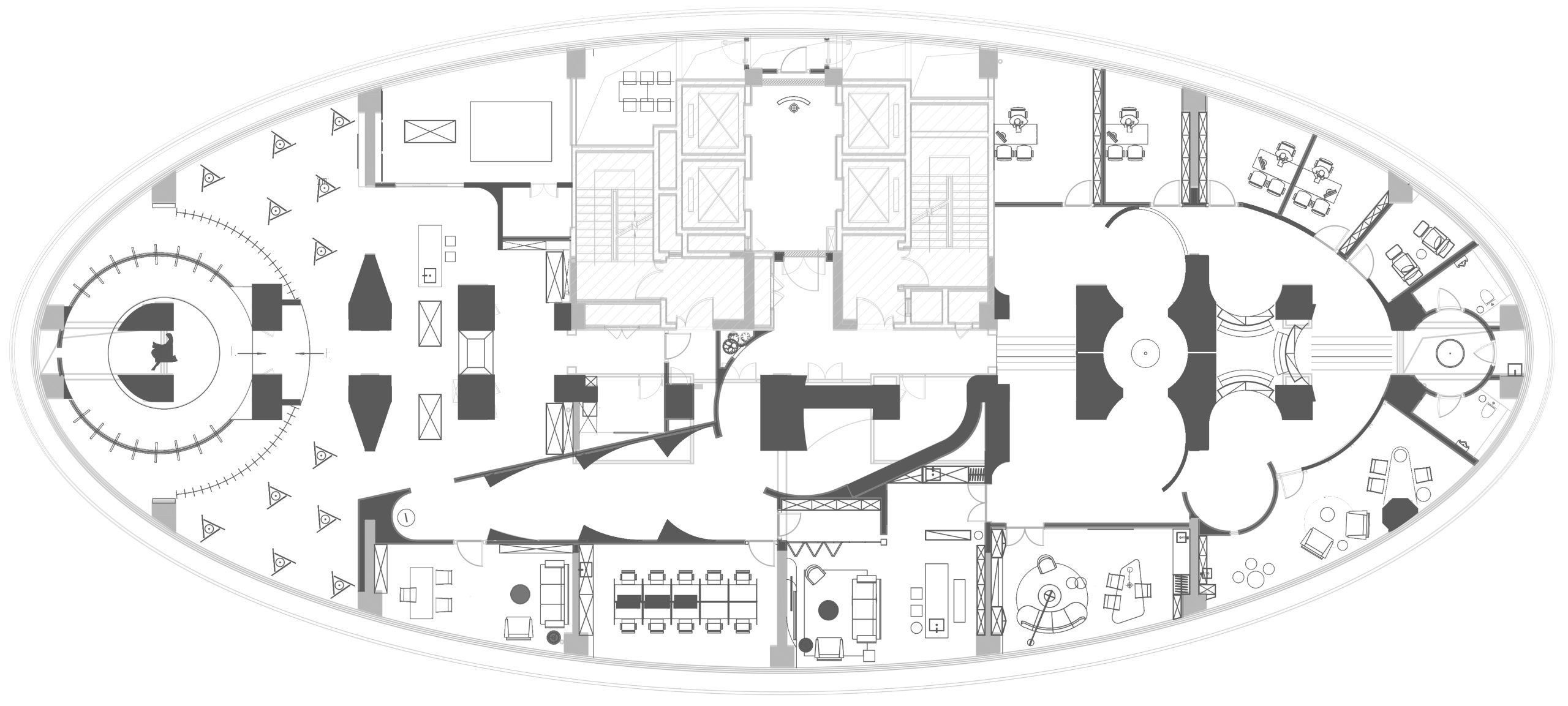
แทนที่จะออกแบบโชว์รูมในลักษณะเส้นตรงแบบที่คุ้นเคย PUSH DESIGN เลือกใช้การจัดผังแบบ complete elliptical circulation หรือเส้นทางการเดินรูปวงรี ที่พาผู้ชมไหลไปตามพื้นที่อย่างต่อเนื่อง ทำให้แปลนของอาคารถูกแบ่งออกเป็น 9 โซน ราวกับบทต่างๆ ของบทเพลงหนึ่งเพลง ตั้งแต่จุดเริ่มต้น ไปจนถึงช่วงผ่อนคลายตอนท้าย ทุกก้าวของการเดินจึงไม่ใช่แค่การเปลี่ยนพื้นที่ แต่เป็นการเปลี่ยนอารมณ์ ความรู้สึก และมุมมองต่อวัสดุอย่างไม้

เริ่มต้นขึ้นที่ Elevator Hall พื้นที่ต้อนรับด้านหน้า ซึ่งใช้ความต่างของวัสดุเป็นตัวเปิดเรื่อง ไอเย็นของพื้นหินตัดกับโทนอุ่นของไม้ เสริมบรรยากาศด้วยแสงที่ค่อยๆ เปลี่ยนไปตามมุมมอง พร้อมกับพื้นไม้สีแดงเข้มที่พาดยาวตลอดแนวช่วยสร้างจังหวะที่มั่นคง ขณะที่ผนังโทนแดงเข้มเพิ่มความรู้สึกลุ่มลึกและน่าค้นหา ก่อนจะเข้าสู่พื้นที่หลัก ผู้ชมจะผ่าน Rhythmic Transition Zone ที่มีเคาน์เตอร์ต้อนรับสเตนเลสดีไซน์เรียบเป็นจุดโฟกัส พื้นที่นี้เปรียบเสมือนจังหวะหยุดพัก ให้เราได้ชะลอการเคลื่อนไหว ซึมซับบรรยากาศ และค่อยๆ เปลี่ยนอารมณ์ก่อนก้าวเข้าสู่เรื่องราวบทถัดไป



ถัดมาที่บริเวณ Core Zone คือหัวใจของโชว์รูม ภายใต้แนวคิด ‘The River of Time’ พื้นที่รูปทรงโค้ง รายล้อมด้วยวัสดุธรรมชาติอย่างหินและไม้ เมื่อมองไปรอบห้องจึงพบกับพื้นที่จัดแสดงตัวอย่างวัสดุปูพื้นรูปแบบต่างๆ เรียงรายโอบล้อมเราไว้ ตั้งอยู่บนโครงสร้างแบบโมดูลาร์ที่น้ำหนักเบา เคลื่อนย้ายง่าย และไม่ใช่โครงสร้างถาวร ทำให้พื้นที่สามารถปรับเปลี่ยนไปพร้อมกับผลิตภัณฑ์และวิธีการจัดแสดงรูปแบบใหม่ๆ ในอนาคตได้ แนวคิดนี้ยังสะท้อนถึงความใส่ใจเรื่องความยั่งยืน ที่พื้นที่และวัสดุสามารถเติบโตไปด้วยกัน


เส้นทางพาเราเดินต่อมาจนถึง Time Corridor ทางเดินที่เล่าเรื่องของเวลาและการเติบโตของไม้ ผ่านลวดลายซีกไม้ วงปี และแสงที่ค่อยๆ ไล่ระดับไปตามผนัง เมื่อเดินผ่านพื้นที่นี้ ผู้ชมจะรู้สึกราวกับกำลังเดินอยู่ท่ามกลางร่องรอยของกาลเวลา ที่ทุกพื้นผิว ทุกลำแสง ต่างบอกเล่าเรื่องราวของชีวิตต้นไม้ในแบบของมันเอง พื้นที่ถูกออกแบบเป็นรูปทรงวงแหวนที่โค้งล้อมรอบกำแพง โดยสถาปนิกตั้งใจให้ผู้ชมได้สัมผัสเรื่องราวของไม้และการเปลี่ยนผ่านของเวลาไปพร้อมกัน ผ่านทุกคาน เสา และแสงที่ประกอบสร้างบรรยากาศของพื้นที่นี้

บริเวณ Transition Display Area คืออีกจังหวะให้เราได้พักก่อนจะเปลี่ยนไปสู่อีกห้องหนึ่ง พื้นที่นี้ค่อยๆ พาเราเปลี่ยนความรู้สึกด้วยการเปลี่ยนวัสดุปูพื้น ผนัง และไฟ จากไม้ดิบก็ปรับเปลี่ยนมาสู่ไม้ที่ได้รับการตกแต่งอย่างดี เพื่อพาเราไปเจอกับ Interactive Core คือพื้นที่ที่เปิดโอกาสให้ผู้ชมได้มีปฏิสัมพันธ์กับวัสดุไม้มากขึ้น ไม่ใช่แค่การมอง แต่รวมถึงการสัมผัส แสง เสียง และเทคโนโลยีที่ถูกนำมาใช้เป็นตัวกลาง ช่วยถ่ายทอดคุณค่าและความอบอุ่นของไม้ในรูปแบบที่เข้าถึงได้ง่ายและร่วมสมัย เพราะดีไซน์เนอร์มองว่านี่คือเวทีหลักของพื้นที่ จึงใส่ประสบการณ์ใหม่ๆ เข้าไปพาให้ผู้เข้าชมอินไปกับเรื่องราวมากขึ้นกว่าเดิม

ต่อเนื่องกันคือ Forest Element Zone พื้นที่ที่จำลองแสงธรรมชาติในช่วงเวลาต่างๆ ของวัน เพื่อให้เห็นว่าผิวไม้ตอบสนองต่อแสงอย่างไร ตั้งแต่แสงอ่อนในตอนเช้า ไปจนถึงโทนอุ่นในยามเย็น พื้นที่นี้เปรียบเสมือนช่วงพักของการเดินชม ที่เชื่อมโยงธรรมชาติและสถาปัตยกรรมเข้าด้วยกันอย่างนุ่มนวล เพื่อให้ผู้เข้าชมเข้าใจและเห็นภาพมากขึ้นว่าวัสดุไม้เหล่านี้จะทำงานร่วมกับพื้นที่อยู่อาศัยอย่างไร


นอกจากพื้นที่จัดแสดง โชว์รูมแห่งนี้ยังรวมพื้นที่สำนักงานและ VIP Lounge เข้าไว้ในเส้นทางเดียวกัน โดยยังคงใช้ภาษาเดียวกันของวัสดุไม้และเส้นโค้ง เพื่อสร้างบรรยากาศที่อบอุ่นและเป็นกันเอง ทั้งโชว์รูมหลัก ออฟฟิศและพื้นที่สำหรับ VIP สเปซจึงรายล้อมไปด้วยไม้และ curved enclosure สร้างบรรยากาศอบอุ่น สบายสำหรับการพูดคุย และมีการเลือกใช้วัสดุไม้ที่แตกต่างกัน เช่น ห้องทำงานของผู้บริหารเลือกใช้ไม้สีเข้มและหินอ่อนสีดำ สื่อถึงความนิ่งและสุขุม ขณะที่พื้นที่การเงินใช้โทนที่นุ่มนวลกว่า เพิ่มชีวิตชีวาด้วยโซฟาผ้ากำมะหยี่สีส้ม ส่วนห้องน้ำยังคงโทนวัสดุเดียวกับโถงลิฟต์ เพื่อรักษาความต่อเนื่องของประสบการณ์ตลอดทั้งอาคาร

การเดินเยี่ยมชมโชว์รูมคงจะไม่เหมือนเดิมอีกต่อไป เมื่อได้เข้ามาสัมผัส Muxiang Ninghua แห่งนี้ เพราะเป็นหนึ่งในงานออกแบบเน้นเรื่องราวของโปรดักท์เป็นตัวชูโรง การใช้วัสดุปูพื้นอย่างไม้ประเภทต่างๆ เป็นตัวกลางนำพาเรื่องราว ผสมผสานจังหวะต่างๆ เข้าด้วยกัน กลายเป็นพื้นที่นิทรรศการรูปแบบใหม่ๆ Muxiang Ninghua Flooring Experience Hall จึงไม่ใช่แค่โชว์รูม แต่เป็นพื้นที่ที่พาเราเข้าใจวัสดุไม้ผ่านเวลา แสง และการมีส่วนร่วม และทำให้การเดินชมพื้นที่หนึ่ง กลายเป็นประสบการณ์ที่น่าจดจำมากกว่าที่เคย

